АН АДРЕСА
Kotikova-adresa@yandex.ru
Скажите продавцу, что вы нашли объявление на 156.ru
1
/
3
6 799 000 ₽
12
Оренбург
АН АДРЕСА
!!! ДОМА ОТ ЗАСТРОЙЩИКА!!!ИПОТЕЧНАЯ СТАВКА 3-6%ЛЮБАЯ ФОРМА РАСЧЕТА( любой сертификат,материнский капитал,обычная ипотека, семейная ипотека, наличный расчет).В ПРОДАЖЕ ДОМА 130 М 6 СотЗАБОР по всему периметру участка!
поселок МАРЬИНО-НЕЗАТОПЛЯЕМАЯ ЗОНА!
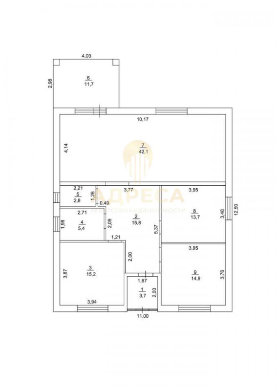
Общая площадь дома 130 мКухня-гостинная 42м с выходом на террасуСпальни-3Открытый большой холС/У+котельнаяТамбур закрытыйКачественная входная дверь с термо-разрывомСтены оштукатурены под обои,кeрaмзитo-блок , утеплитель 10, кирпич.Потолок подшит плитами ОSВ.Откосы, подоконники подготовлены.Радиаторы отопления во всех комнатах, теплый пол по всему периметру дома.Двухконтурный газовый котел.Скважина, септик -3 кольца.Фундaмeнт свaйнo лентoчный,глубина свай 2 м,шаг 1,5м, завoдской бeтoн!Крыша-Металлoчерепица с утеплением,отмостка.
Наша компания провела профессиональную юридическую проверку объекта недвижимости, гарантируя вам защиту от потенциальных рисков.
Сделка будет осуществлена с полной юридической прозрачностью, обеспечивая вас надежным и безопасным приобретением жилья.Офис продаж ул.Восточная 42/3Ваш персональный специалист Котикова Юлия
ID объекта в нашей базе: 1716
Тип недвижимости
Адрес
Этажность
Площадь
Дом
Россия, Оренбургская обл, Оренбург, ул. Северная
1
130
ID объявления
Обновлено
Создано
Действительно до
789864
2025-12-12 06:07:24
2025-12-12 06:07:24
2026-03-12 06:07:24

1 900 000 ₽
2-комн. квартира
Юных Ленинцев, 10

4 500 000 ₽
Помещение
Оренбургская обл, Адамовский р-н, поселок Адамовка

2 200 000 ₽
Дом
Россия, Оренбургская обл, Орск, ул. Подгорная,37

1 100 000 ₽
Дом
Россия, Оренбургская обл, Беловка, ул. Центральная,26

2 900 000 ₽
3-комн. квартира
Оренбургская обл, г Новотроицк, ул Советская, д 124
3 500 000 ₽
3-комн. квартира
Оренбургская обл, г Новотроицк, пр-кт Металлургов, д 22

1 500 000 ₽
1-комн. квартира
Оренбургская обл, г Новотроицк, ул Черемных, д 7

400 000 ₽
Комната

2 000 000 ₽
Дом
Оренбургская обл, г Новотроицк, ул Сибирская

1 980 000 ₽
2-комн. квартира
Оренбургская обл, г Новотроицк, ул Ломоносова, д 24

2 600 000 ₽
4-комн. квартира
Оренбургская обл, г Новотроицк, ул Юных Ленинцев

4 610 000 ₽
1-комн. квартира
Россия, Оренбургская обл, Оренбург, пер.Слесарный 7

700 000 ₽
Земельный участок
Крым

8 700 000 ₽
Дом
Россия, Оренбургская обл, Подгородняя Покровка, ул. Российская,44

5 200 000 ₽
2-комн. квартира
Россия, Оренбургская обл, Оренбург, ул. Чкалова,3/2

1 300 000 ₽
2-комн. квартира
Оренбургская обл, г Новотроицк, ул Ломоносова, д 46

6 350 000 ₽
Дом

1 700 000 ₽
2-комн. квартира

580 000 ₽
Сад
500 ₽
Дом
Оренбургская обл, г Новотроицк, поселок Крык-Пшак

2 190 000 ₽
1-комн. квартира
Россия, Оренбургская обл, Орск, Ялтинская 95

5 200 000 ₽
3-комн. квартира
Оренбургская обл, г Новотроицк, ул Гагарина, д 7
4 620 240 ₽
2-комн. квартира
, , ,

1 600 000 ₽
1-комн. квартира
Оренбургская обл, г Гай, ул Молодёжная, д 6