АН АДРЕСА
Hohlova-adresa@yandex.ru
Скажите продавцу, что вы нашли объявление на 156.ru
1
/
3
8 700 000 ₽
8
Подгородняя Покровка
АН АДРЕСА
Семейная ипотека 6%
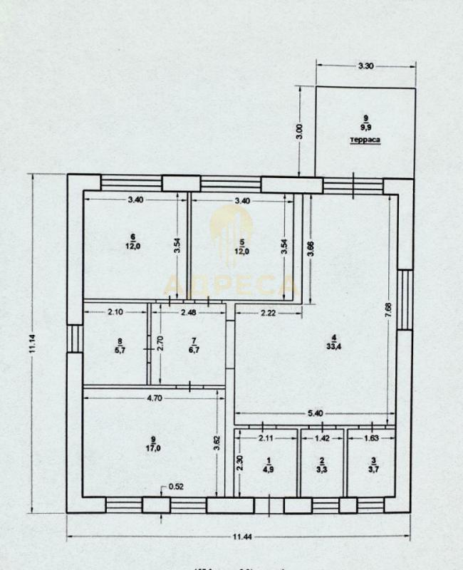
Ипотека под строительство Жилой дом 129 кв.м. Подгородняя Покровка Планировка продумана до мелочей.
-Кухня гостиная 33,4 кв.м. с выходом на террасу; -Два санузла, отдельная котельная; - Три изолированные комнаты 12 кв.м, 12 кв. м., 17 кв. м; О доме: - фундамент свайно-ростверковый; -крыша: металлочерепица; -материал стен: керамзитоблок; -терасса залита;- входная дверь с терморазрывом.Инфраструктура: - в шаговой доступности школа и детский сад; -магазины;-автошкола;-Оренбургский аграрный колледж; -Асфальтированные дороги; -Удобный выезд из поселка.Альтернативные направления: Ленина, Заречье, Соловьи, Марьино, Нежинка, Ростоши, Пригородный, Ивановка, Приуралье
ID объекта в нашей базе: 1579
Тип недвижимости
Адрес
Этажность
Площадь
Дом
Россия, Оренбургская обл, Подгородняя Покровка, ул. Российская,44
1
129
ID объявления
Обновлено
Создано
Действительно до
789790
2025-12-12 05:55:09
2025-12-12 05:55:09
2026-03-12 05:55:09

2 500 000 ₽
2-комн. квартира
Оренбургская обл, г Новотроицк, ул Уральская, д 2А

2 100 000 ₽
2-комн. квартира
Оренбургская обл, г Новотроицк, ул Пушкина, д 46А

4 500 000 ₽
Помещение
Оренбургская обл, Адамовский р-н, поселок Адамовка

5 000 000 ₽
3-комн. квартира

3 650 000 ₽
3-комн. квартира
Россия, Оренбургская обл, Орск, ул. Новосибирская,18

1 850 000 ₽
2-комн. квартира
Оренбургская обл, г Новотроицк, ул Уральская, д 10
500 ₽
Дом
Оренбургская обл, г Новотроицк, поселок Крык-Пшак

3 000 000 ₽
2-комн. квартира
Россия, Оренбургская обл, Орск, пер. Заводской,5

2 200 000 ₽
2-комн. квартира
Россия, Оренбургская обл, Орск, пер. Нежинский,3а

2 200 000 ₽
2-комн. квартира
Оренбургская обл, г Новотроицк, ул Советская, д 65Б

500 000 ₽
Земельный участок
Россия, Оренбургская обл, Орск, ул. Тихорецкая

1 550 000 ₽
1-комн. квартира
Оренбургская обл, г Новотроицк, ул Уметбаева, д 5А
2 000 000 ₽
1-комн. квартира
Оренбургская обл, г Гай

3 650 000 ₽
3-комн. квартира
Оренбургская обл, г Новотроицк, ул Марии Корецкой, д 24

2 500 000 ₽
3-комн. квартира
Оренбургская обл, г Новотроицк, Комсомольский пр-кт, д 26

8 900 000 ₽
Помещение
Оренбургская обл, г Новотроицк, ул Советская, д 40

2 100 000 ₽
2-комн. квартира
Оренбургская обл, г Новотроицк, ул Зеленая, д 37

1 550 000 ₽
Дом
Оренбургская обл, г Новотроицк, поселок Аккермановка

2 650 000 ₽
2-комн. квартира
Оренбургская обл, г Новотроицк, ул Марии Корецкой д 11, д 61
1 500 000 ₽
2-комн. квартира
Оренбургская обл, г Новотроицк, ул Пушкина, д 42

7 200 000 ₽
2-комн. квартира
Россия, Оренбургская обл, Оренбург, пр-кт. Победы,149/1

1 550 000 ₽
3-комн. квартира
Оренбургская обл, г Новотроицк, ул Пушкина, д 15

5 700 000 ₽
Дом
Россия, Оренбургская обл, Оренбург, ул. Заречная

900 000 ₽
Дом
Россия, Оренбургская обл, Никольское, ул. Дорожная,4