Сергей Сергеевич
boltow@mail.ru
Скажите продавцу, что вы нашли объявление на 156.ru
1
/
3
25 750 000 ₽
14
Орск
Сергей Сергеевич
Продам нежилое помещение в котором расположен банкетные залы «Товиус», город Орск, ул. Чекасина/пер.Клубный д.30/16.
Банкетные залы «Товиус» — это действующий бизнес по предоставлению услуг общественного питания, проведения любых видов мероприятий от свадеб, юбилеев, корпоративов, поминальных обедов. Объект расположен на первом этаже многоквартирного жилого дома. Общая площадь первого этажа 560 кв.м. Имеется вся разрешительная документация.
В помещении 3 действующих банкетных зала с отдельными входами. Банкетные залы полностью оснащены и оборудованы всем необходимым для проведения любого рода мероприятий, при этом мероприятия могут проводится одновременно без визуального контакта посетителей. Вместимость банкетных залов составляет 25, 40, 100 человек. Имеется возможность приготовления блюд с огромным ассортиментом. Имеется достаточный штат поваров и обслуживающего персонала.
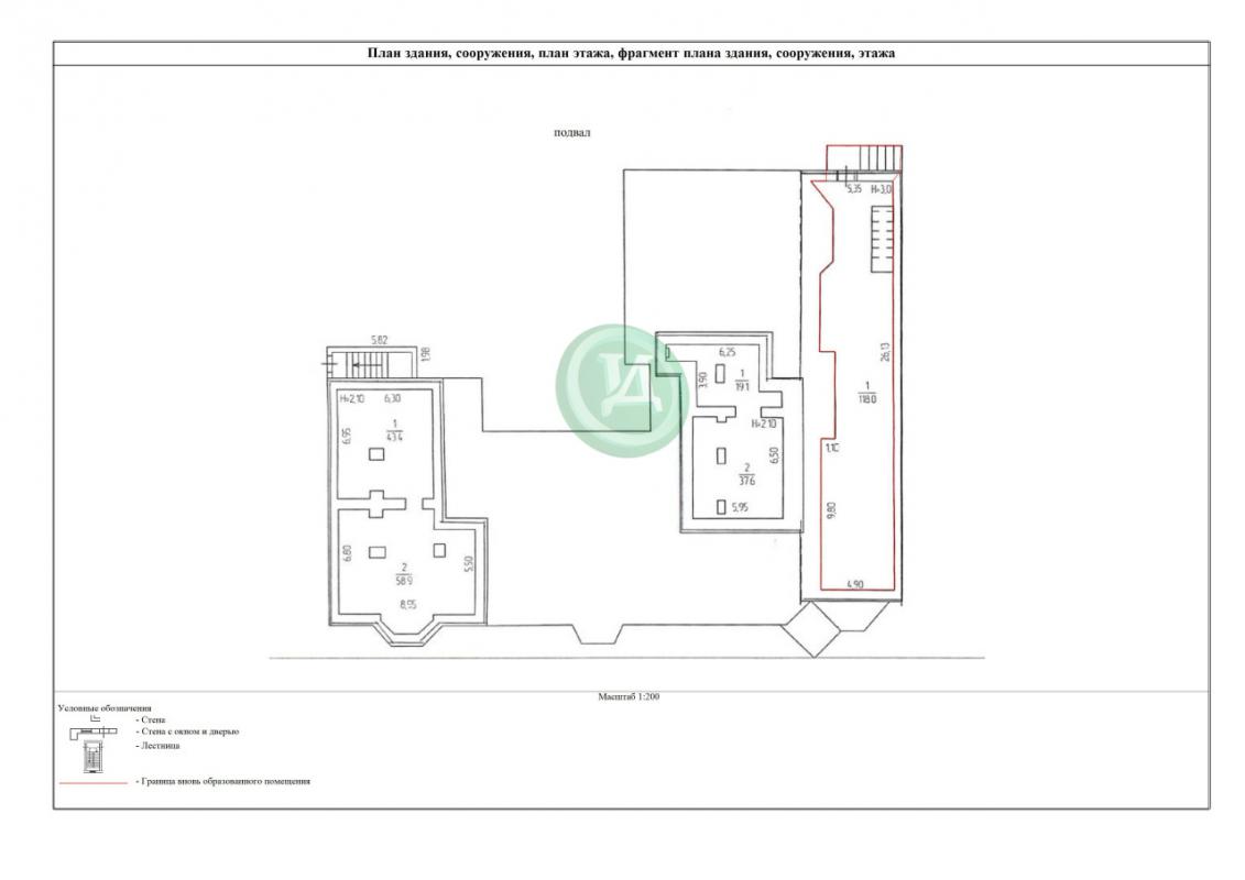
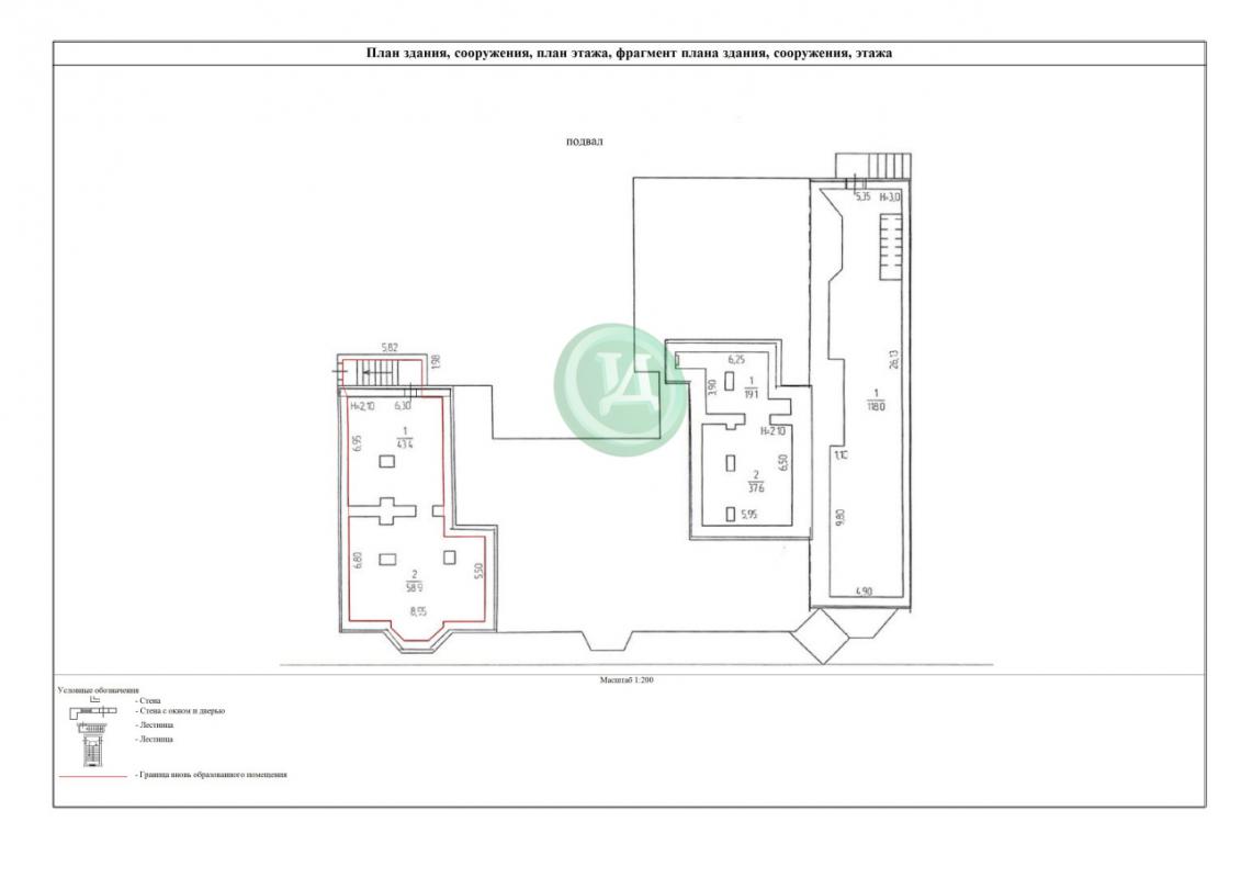
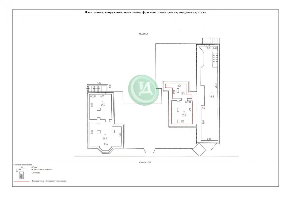
Помимо банкетных залов в помещении имеются 3 подвала площадью 118, 102, 69,3 кв. м. с отдельными входами, каждый из подвалов является отдельным изолированным помещением.
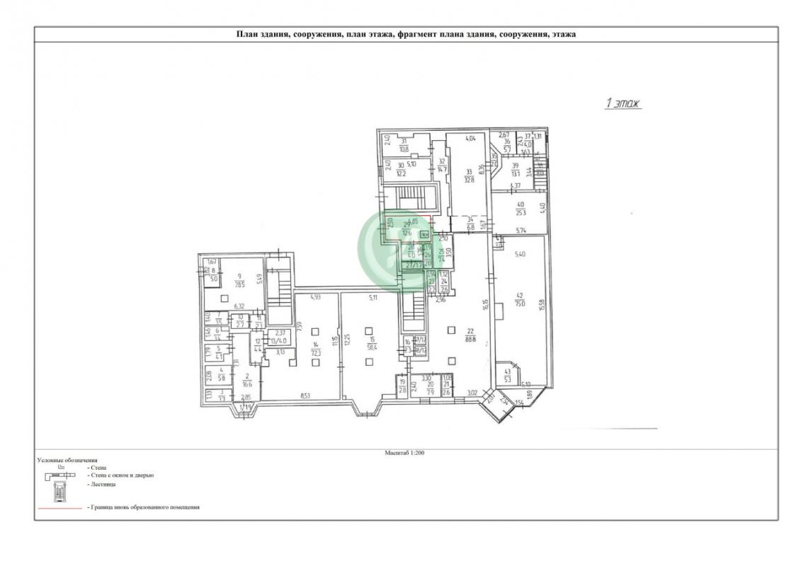
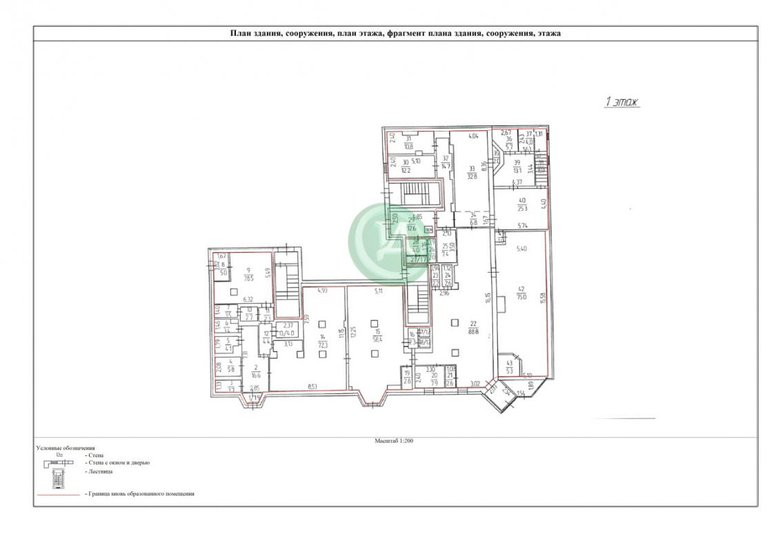
Также на 1 этаже имеется помещение магазина с отдельным входом, площадью 28,5 кв.м.
Передача в собственность помещения возможна без нарушения процесса оказания услуг, с передачей клиентов и всей необходимой информации. В настоящее время все банкетные залы забронированы для проведения мероприятий на несколько месяцев вперед.
Приобретая данный объект, вы приобретете отлично настроенный бизнес с хорошим доходом и прибылью.
Характеристики объекта:
- дом 1941 года постройки;
- общая площадь всех помещений с подвалами 849,6 кв.м.;
- нежилое помещение 1 этаж общая площадь 560 кв.м.;
- банкетные залы: № 1– 75 кв.м., банкетный зал № 2 – 58,4 кв.м., банкетный зал № 3 – 72,3 кв.м.;
- подвалы: № 1 – 118 кв.м., № 2 – 102 кв.м., № 3 – 69,3 кв.м.;
- кухонный узел -71,2 кв.м.;
- складские помещения – 12,2, 12,6, 10,8 кв.м.;
- кабинет, 7,9 кв.м.;
- электричество – 380 Вт.
- сан.узлы – 5 шт.;
- кондиционеры с рассчитанной под каждый зал мощностью;
- круглосуточная охрана, плюс тревожная кнопка;
- 4 отдельных входа;
- центральное отопление;
- водоснабжение – центральное;
- канализация – центральная;
- вытяжка принудительная;
- сигнализация охранно-пожарная;
- система видеонаблюдения;
- пластиковые окна;
- парковочные места;
- остается вся мебель и оборудование;
Документы полностью готовы к продаже. Полное бесплатное юридическое сопровождение сделки. Успей воспользоваться предложением.
ID объекта в нашей базе: 1229
Тип недвижимости
Адрес
Этажность
Этаж
Площадь
Помещение
Россия, Оренбургская обл, Орск, Оренбургская область, г. Орск ул.Чекасина/пер.Клубный д.30/26
2
1
560
ID объявления
Обновлено
Создано
Действительно до
871127
2026-04-28 06:23:30
2026-04-28 06:23:30
2026-07-27 06:23:30

1 250 000 ₽
1-комн. квартира
Оренбургская обл, г Новотроицк, ул Мира, д 24

1 750 000 ₽
Комната
Оренбургская обл, г Гай, ул Ленина, д 56

5 300 000 ₽
2-комн. квартира
Оренбургская обл, г Новотроицк, ул Зеленая, д 12А

10 000 000 ₽
Дом
Оренбургская обл, г Гай, ул Степная
99 000 ₽
Гараж
г Новотроицк, ул Советская, д. 25
1 450 000 ₽
1-комн. квартира
Оренбургская обл, г Новотроицк, ул Советская, д 78

3 200 000 ₽
Дом
Оренбургская обл, г Новотроицк, ул Грибоедова

2 400 000 ₽
2-комн. квартира
Оренбургская обл, г Гай, ул Войченко

3 650 000 ₽
3-комн. квартира
Оренбургская обл, г Новотроицк, ул Винокурова, д 12ак

4 200 000 ₽
3-комн. квартира
Россия, Оренбургская обл, Орск, пер. Театральный,1

1 900 000 ₽
2-комн. квартира
Оренбургская обл, г Новотроицк, ул Орская, д 8

1 200 000 ₽
1-комн. квартира
Оренбургская обл, г Новотроицк, ул Советская, д 70

4 980 000 ₽
Дом
Оренбургская обл, г Новотроицк, поселок Аккермановка

29 000 000 ₽
Помещение
Оренбургская обл, г Новотроицк, ул Ломоносова, д 44

3 480 000 ₽
Комната
Оренбургская обл, г Новотроицк, ул Уметбаева, д 5А

2 600 000 ₽
Дом
Оренбургская обл, г Новотроицк, ул 1 Мая

3 650 000 ₽
3-комн. квартира
Оренбургская обл, г Новотроицк, ул Марии Корецкой, д 24

100 000 ₽
Сад

1 900 000 ₽
2-комн. квартира
Оренбургская обл, г Новотроицк, ул Библиотечная, д 4А

2 300 000 ₽
2-комн. квартира
Оренбургская обл, г Гай, ул Ленина, д 52
1 599 000 ₽
Земельный участок
Россия, Оренбургская обл, Зауральный, ул. Мирная,2

370 000 ₽
Комната
Россия, Оренбургская обл, Орск, Станиславского 71а

2 080 000 ₽
2-комн. квартира
Оренбургская обл, г Новотроицк, ул Зеленая, д 55А

9 000 000 ₽
Дом
Оренбургская обл, г Гай, ул Мира, д 9