Юлия
juliya-056@mail.ru
Скажите продавцу, что вы нашли объявление на 156.ru
1
/
3
4 000 000 ₽
29
Оренбург
Юлия
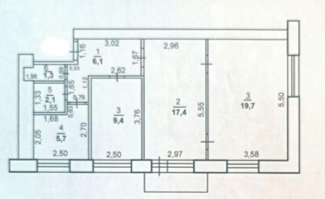
Продам трехкомнатную квартиру в центре города. Кирпичный дом, второй этаж.Комнаты смежно-изолированные. Совмещённый санузел.Погреб во дворе дома будет приятным бонусом новому собственнику. Один взрослый собственник. Долгов и обременений нет.Остановка в трёх минутах ходьбы;Детский сад №109;Школы №39 и 46;Спортивная школа олимпийского резерва №1 им. Н.С. Гейтца;Стрелково-спортивный клуб;Медицинский университет;Корпус № 5 педагогического университета;Оренбургский институт путей и сообщения;Магнит, аптека, оптика, Альфа-страхование - расположены в этом доме;Три парка - Тополя, Перовского, Ленина;Рынок "Локомотив".Квартира свободна от проживающих.Если Вам понравился этот объект, но Ваша недвижимость не продана, окажем помощь в реализации.
Юридическое сопровождение и помощь в одобрение ипотеки при покупке данного объекта бесплатно.
Просмотр по предварительной договоренности.
ID объекта в нашей базе: 132
Тип недвижимости
Адрес
Этажность
Этаж
Площадь
3-комн. квартира
Россия, Оренбургская обл, Оренбург, проезд. Коммунаров,24
5
2
60.7
ID объявления
Обновлено
Создано
Действительно до
866656
2026-04-21 10:43:06
2026-04-21 10:43:06
2026-07-20 10:43:06

8 000 000 ₽
Дом
Оренбургская обл, г Новотроицк, ул Луговая

1 450 000 ₽
2-комн. квартира
Оренбургская обл, г Новотроицк, ул Марии Корецкой, д 3

4 500 000 ₽
Дом
Россия, Оренбургская обл, Орск, Орск переулок тихий д 8

17 000 000 ₽
Земельный участок
Россия, Оренбургская обл, Орск, ул. Ферганская
250 000 ₽
Земельный участок
Россия, Оренбургская обл, Чебеньки, ул. Луговая 3-я
500 000 ₽
Сад

2 500 000 ₽
4-комн. квартира
Оренбургская обл, г Гай, ул Челябинская, д 124

8 750 000 ₽
Дом
Россия, Оренбургская обл, Подгородняя Покровка, пер. Ажурный-2,18а

10 000 000 ₽
Дом
Оренбургская обл, г Гай, ул Степная

2 100 000 ₽
3-комн. квартира
Оренбургская обл, г Новотроицк, ул Мира, д 4

900 000 ₽
1-комн. квартира
Оренбургская обл, г Новотроицк, ул Ситкина, д 13

1 850 000 ₽
2-комн. квартира
Оренбургская обл, г Новотроицк, ул Железнодорожная, д 3

6 500 000 ₽
Дом
Россия, Оренбургская обл, Оренбург, Array

3 450 000 ₽
2-комн. квартира

1 500 000 ₽
Дом
Россия, Оренбургская обл, Красный Коммунар, ул. Монтажников,29

договорная

1 750 000 ₽
2-комн. квартира

2 700 000 ₽
2-комн. квартира
Оренбургская обл, г Новотроицк, ул Комарова, д 4

12 900 000 ₽
Дом
Россия, Оренбургская обл, Южный Урал, ул. Пушкина, 9

1 700 000 ₽
2-комн. квартира
Оренбургская обл, г Новотроицк, ул Мичурина, д 8

1 450 000 ₽
1-комн. квартира
Оренбургская обл, г Гай, ул Ленина, д 28

8 000 000 ₽
Дом
Россия, Оренбургская обл, Приуральский, с. Ивановка, ул.Ломоносова
70 000 ₽
Сад
2 300 000 ₽
2-комн. квартира
Оренбургская обл, г Гай, ул Коммунистическая, д 6