АН АДРЕСА
Kotikova-adresa@yandex.ru
Скажите продавцу, что вы нашли объявление на 156.ru
1
/
3
6 799 000 ₽
15
Оренбург
АН АДРЕСА
!!! ДОМА ОТ ЗАСТРОЙЩИКА!!!ИПОТЕЧНАЯ СТАВКА:СЕМЕЙНАЯ ИПОТЕКА 6%СЕЛЬСКАЯ ИПОТЕКА 3%ЛЮБАЯ ФОРМА РАСЧЕТА( любой сертификат,материнский капитал,обычная ипотека, семейная ипотека, наличный расчет).В ПРОДАЖЕ ДОМА 130 М 6 СотЗАБОР по всему периметру участка!
поселок МАРЬИНО-НЕЗАТОПЛЯЕМАЯ ЗОНА!
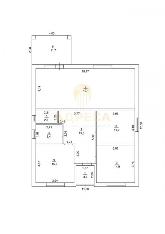
Общая площадь дома 130 мКухня-гостинная 42м с выходом на террасуСпальни-3Открытый большой холС/У+котельнаяТамбур закрытыйКачественная входная дверь с термо-разрывомСтены оштукатурены под обои,кeрaмзитo-блок , утеплитель 10, кирпич.Потолок подшит плитами ОSВ.Откосы, подоконники подготовлены.Радиаторы отопления во всех комнатах, теплый пол по всему периметру дома.Двухконтурный газовый котел.Скважина, септик -3 кольца.Фундaмeнт свaйнo лентoчный,глубина свай 2 м,шаг 1,5м, завoдской бeтoн!Крыша-Металлoчерепица с утеплением,отмостка.
Наша компания провела профессиональную юридическую проверку объекта недвижимости, гарантируя вам защиту от потенциальных рисков.
Сделка будет осуществлена с полной юридической прозрачностью, обеспечивая вас надежным и безопасным приобретением жилья.Офис продаж ул.Восточная 42/3Ваш персональный специалист Котикова Юлия
ID объекта в нашей базе: 1716
Тип недвижимости
Адрес
Этажность
Площадь
Дом
Россия, Оренбургская обл, Оренбург, ул. Северная
1
130
ID объявления
Обновлено
Создано
Действительно до
854962
2026-04-02 05:37:00
2026-04-02 05:37:00
2026-07-01 05:37:00

1 150 000 ₽
1-комн. квартира
Оренбургская обл, г Новотроицк, ул Зеленая

2 200 000 ₽
Дом
Россия, Оренбургская обл, Орск, пер. 1-й Узкий

1 850 000 ₽
2-комн. квартира
Оренбургская обл, г Новотроицк, ул Уральская, д 10

6 799 000 ₽
Дом
Россия, Оренбургская обл, Оренбург, ул. Северная

4 799 000 ₽
2-комн. квартира
Россия, Оренбургская обл, Оренбург, ул. Чкалова,3/2
110 ₽
Гараж
г Новотроицк, ул Советская, д. 25

4 300 000 ₽
Дом
Россия, Оренбургская обл, Орск, ул. Красногвардейская

2 100 000 ₽
2-комн. квартира
Оренбургская обл, г Новотроицк, ул Винокурова, д 8

4 300 000 ₽
3-комн. квартира
Оренбургская обл, г Новотроицк, Студенческий пер, д 6

2 750 000 ₽
Дом
Россия, Оренбургская обл, Сакмара, ул. Луговая,3

3 300 000 ₽
3-комн. квартира
Оренбургская обл, г Новотроицк, ул Уральская, д 3

договорная

2 500 000 ₽
2-комн. квартира
Оренбургская обл, г Новотроицк

1 850 000 ₽
Дом
Россия, Оренбургская обл, Оренбург, ул. Фрунзе 40

2 500 ₽
2-комн. квартира

2 100 000 ₽
1-комн. квартира
1 700 000 ₽
Комната
Оренбургская обл, г Гай, ул Молодёжная, д 65

3 000 000 ₽
2-комн. квартира
Россия, Оренбургская обл, Орск, ул. Шелухина,8

1 690 000 ₽
2-комн. квартира
Оренбургская обл, г Новотроицк, ул Зеленая, д 57А

2 100 000 ₽
2-комн. квартира

550 000 ₽
Комната
Россия, Оренбургская обл, Орск, ул. Светлая,4

договорная
300 000 ₽

1 350 000 ₽
2-комн. квартира
Оренбургская обл, г Новотроицк, ул Железнодорожная, д 81