АН АДРЕСА
a.borisova-adresa@yandex.ru
Скажите продавцу, что вы нашли объявление на 156.ru
1
/
3
9 161 690 ₽
19
Оренбург
АН АДРЕСА
Документы готовы, быстрый выход на сделку!!!!ДоступностьСемейная ипотека 6 %, сельская ипотека 3 %
Наши дома подходят под субсидированные ипотечные программы, военной ипотекой, различными жилищными сертификатами и материнским капиталом. Все это делает покупку максимально удобной и комфортной для наших клиентов, а самое главное выгодной!
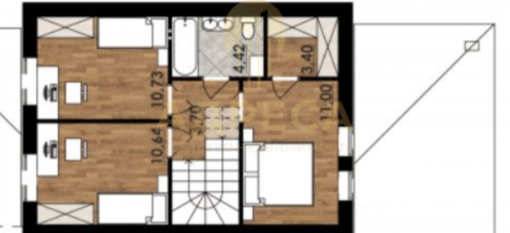
Материал стен: газоблоки
Терраса или веранда: покрыты керамогранитом
Лестница: металлический каркас
Санузел: на 1 и 2 этажах
Коммуникации: электричество, газ, отопление, канализация
Ремонт: улучшенная предчистовая отделка
Интернет и ТВ: Wi-Fi, телевидение
Парковка: парковочное место
Транспортная доступность: асфальтированная дорога, остановка общественного транспорта
Инфраструктура: магазин, аптека, детский сад, школа
Расстояние до центра города: 12 км
В подарок: территория участка огорожена забором, смонтированы въездные ворота под автомобиль и калитка с электромеханическим замком, уличное освещение, установлен почтовый ящик. Вокруг дома залита бетонная отмостка, бетонная дорожка и площадка под автомобиль, выполнено уличное освещение.
Внутренная отделка
стены оштукатурены по маякам, отшпатлеваны под обои
полы – утепленная армированная бетонная стяжка с последующим устройством наливного пола
установлена пластиковая подоконная доска, дверные и оконные откосы облагорожены
Качество
Наши дома построены из заводского газобетонного блока КОТТЕДЖ, а фасад облицован керамическим кирпичом. Установлены качественные ПВХ окна с двойным мультифункциональным стеклопакетом и надежная металлическая дверь с терморазрывом. В качестве кровельного покрытия выбрана двухслойная гибкая черепица Shinglas от компании ТЕХНОНИКОЛЬ, карниз подшит металлическими софитами, смонтирована водосточная система производства ТЕХНОНИКОЛЬ.
Инфраструктура
Поселок имеет развитую инфраструктуру, в шаговой доступности школа, детский сад, сетевые магазины, аптеки и ФАП. Поселок имеет хорошую транспортную доступность, ходит общественный транспорт. Сельская прописка и тарифы гарантируют вам экономию бюджета на обслуживание дома.
ОТ НАС: помощь в одобрении ипотеки ,полное юридическое сопровождение, помощь в продаже вашей недвижимости, работа с сертификатами.ПРОСМОТР В УДОБНОЕ ДЛЯ ВАС ВРЕМЯ, ПО ПРЕДВАРИТЕЛЬНОЙ ДОГОВОРЕННОСТИ!
ID объекта в нашей базе: 1537
Адрес
Этажность
Площадь
Россия, Оренбургская обл, Оренбург, 41 а
2
102
ID объявления
Обновлено
Создано
Действительно до
854331
2026-04-01 05:30:58
2026-04-01 05:30:58
2026-06-30 05:30:58
2 700 000 ₽
2-комн. квартира
Оренбургская обл, г Новотроицк, ул Пушкина, д 46А

2 350 000 ₽
2-комн. квартира
Оренбургская обл, г Новотроицк, ул Марии Корецкой, д 24
50 000 ₽
Сад
Оренбургская обл, г Новотроицк

2 400 000 ₽
3-комн. квартира
Оренбургская обл, г Новотроицк, ул Железнодорожная, д 65

12 000 000 ₽
3-комн. квартира
Россия, Оренбургская обл, Оренбург, ул. Цвиллинга,68

3 650 000 ₽
3-комн. квартира
Оренбургская обл, г Новотроицк, ул Советская, д 62А

5 800 000 ₽
3-комн. квартира
Россия, Оренбургская обл, Орск, ул. Докучаева,17

2 600 000 ₽
Дом
Оренбургская обл, г Новотроицк, ул 1 Мая

7 900 000 ₽
Дом
Россия, Оренбургская обл, Ивановка, ул. Дальнереченская, 47

5 703 710 ₽
3-комн. квартира
Россия, Оренбургская обл, Нежинка, ул. Фестивальная,21/1

1 800 000 ₽
2-комн. квартира
Оренбургская обл, г Новотроицк, ул Ситкина, д 15

1 000 000 ₽
Дом
Оренбургская обл, г Новотроицк, поселок Аккермановка, ул Садовая

3 300 000 ₽
2-комн. квартира

1 000 000 ₽
1-комн. квартира
Россия, Оренбургская обл, Орск, Ул. Братская д. 52А

договорная

5 150 000 ₽
Дом
Россия, Оренбургская обл, Оренбург, ул. Степана Разина,65

1 500 000 ₽
2-комн. квартира
Оренбургская обл, г Новотроицк, ул Зеленая, д 19А

900 000 ₽
1-комн. квартира
Оренбургская обл, г Новотроицк, ул Ситкина, д 13

3 000 000 ₽
2-комн. квартира
Оренбургская обл, г Новотроицк, ул Гагарина, д 6

3 900 000 ₽
3-комн. квартира
Оренбургская обл, г Гай, ул Орская, д 109

2 200 000 ₽
2-комн. квартира
Оренбургская обл, г Новотроицк, Комсомольский пр-кт, д 20

8 600 000 ₽
Дом
Россия, Оренбургская обл, Ивановка, ул. Новороссийская, 19

500 000 ₽
Земельный участок
Россия, Оренбургская обл, Орск, ул. Тихорецкая

2 250 000 ₽
1-комн. квартира
Россия, Оренбургская обл, Орск, ул. Олимпийская,28