АН АДРЕСА
anufriev-adresa@yandex.ru
Скажите продавцу, что вы нашли объявление на 156.ru
1
/
3
7 870 000 ₽
17
Оренбург
АН АДРЕСА
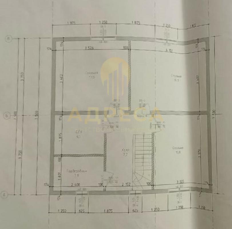
Продается дом в ЭЛИТНОЙ части поселка Кушкуль, по адресу: улица Земская 19.Площадь дома 104 м.кв.Площадь участка 10сот.Газоснабжение: центральное.Водоснабжение: скважина 14м, в доме (есть возможность подключения к центральному)Водоотведение: локальное 4кольца по 1,5м (есть возможность подключения к центральному)Материалы постройки: СИП-панели короед.Фундамент: сваи.Электрика вся по госту, доступ ко всем коробкам.Также максимально доступ ко всем коммуникациям водоотвода.Отопление газ.Состояние ремонта на фото, но лучше посмотреть в живую.Инфраструктура: Школа № 21,так-же имеются сетевые магазины.Возникли вопросы звоните, отвечу.Обременений нет.Просмотр по договоренности в удобное время.
✅ Предоставление консультаций по вопросам, связанным с покупкой недвижимости, в том числе с использованием кредитных средств, жилищных сертификатов, материнского (семейного) капитала.
✅ Помощь в формировании пакета документов (для каждого объекта индивидуально), необходимых для оформления сделки купли-продажи.
✅ Подбор индивидуальной программы кредитования, согласование в банках ипотечной заявки и объекта, на наиболее выгодных для заемщика условиях.
✅ ЭКСКЛЮЗИВНО: ипотека без справок и подтверждения дохода; одобрение ипотеки при отсутствии первоначального взноса (трейд-ин); доступна опция понижения ставки по ипотеке, применение скидки от нашего агентства; проведение сделки дистанционно.
✅ Наш офис ул. Восточная 42/3 АН АДРЕСА
ID объекта в нашей базе: 1114
Тип недвижимости
Адрес
Этажность
Площадь
Дом
Россия, Оренбургская обл, Оренбург, Земская 19
2
104
ID объявления
Обновлено
Создано
Действительно до
853097
2026-03-30 05:21:28
2026-03-30 05:21:28
2026-06-28 05:21:28

1 500 000 ₽
1-комн. квартира
Оренбургская обл, г Новотроицк, ул Гагарина, д 14

2 500 000 ₽
2-комн. квартира
Ул Пушкино/Льва Толстого/25/9

6 500 000 ₽
Дом
Россия, Оренбургская обл, Оренбург, Благословенка Ул. Целенная

2 300 000 ₽
1-комн. квартира
Оренбургская обл, г Орск, ул Олимпийская, д 24

2 780 000 ₽
4-комн. квартира
Оренбургская обл, г Новотроицк, ул Советская, д 114

4 500 000 ₽
3-комн. квартира

3 750 000 ₽
3-комн. квартира
Россия, Оренбургская обл, Орск, Просвещения 51

1 500 000 ₽
1-комн. квартира
Оренбургская обл, г Новотроицк

3 249 000 ₽
2-комн. квартира

1 350 000 ₽
1-комн. квартира
ул Советская, д 96

3 299 999 ₽
Дом
Россия, Оренбургская обл, Красный Коммунар, ул. Первомайская,5

3 954 600 ₽
2-комн. квартира
Россия, Оренбургская обл, Оренбург, ул. Юркина,6

5 ₽
Сад

20 000 000 ₽
Дом
Россия, Оренбургская обл, Приютово, ул. Полевая

1 300 000 ₽
1-комн. квартира
Оренбургская обл, г Новотроицк, ул Комарова, д 8А

4 100 000 ₽
2-комн. квартира

4 600 000 ₽
3-комн. квартира
Россия, Оренбургская обл, Оренбург, пер. Ярославский,5
1 800 000 ₽
Дом
Оренбургская обл, Гайский р-н, село Камейкино, ул Целинная, д 21/2
2 300 000 ₽
2-комн. квартира
Оренбургская обл, г Гай, ул Коммунистическая, д 6

2 700 000 ₽
2-комн. квартира
Оренбургская обл, г Новотроицк, ул Комарова, д 4
6 000 000 ₽
Помещение
ул. Советская, д.46, помещение №1

3 650 000 ₽
3-комн. квартира
Оренбургская обл, г Новотроицк, ул Советская, д 62А

13 200 000 ₽
Дом
Оренбургская обл, г Орск, ул Донецкая

2 600 000 ₽
3-комн. квартира
Оренбургская обл, г Новотроицк, ул Мира, д 24А