АН АДРЕСА
abbasova-adresa@yandex.ru
Скажите продавцу, что вы нашли объявление на 156.ru
1
/
3
12 900 000 ₽
12
Южный Урал
АН АДРЕСА
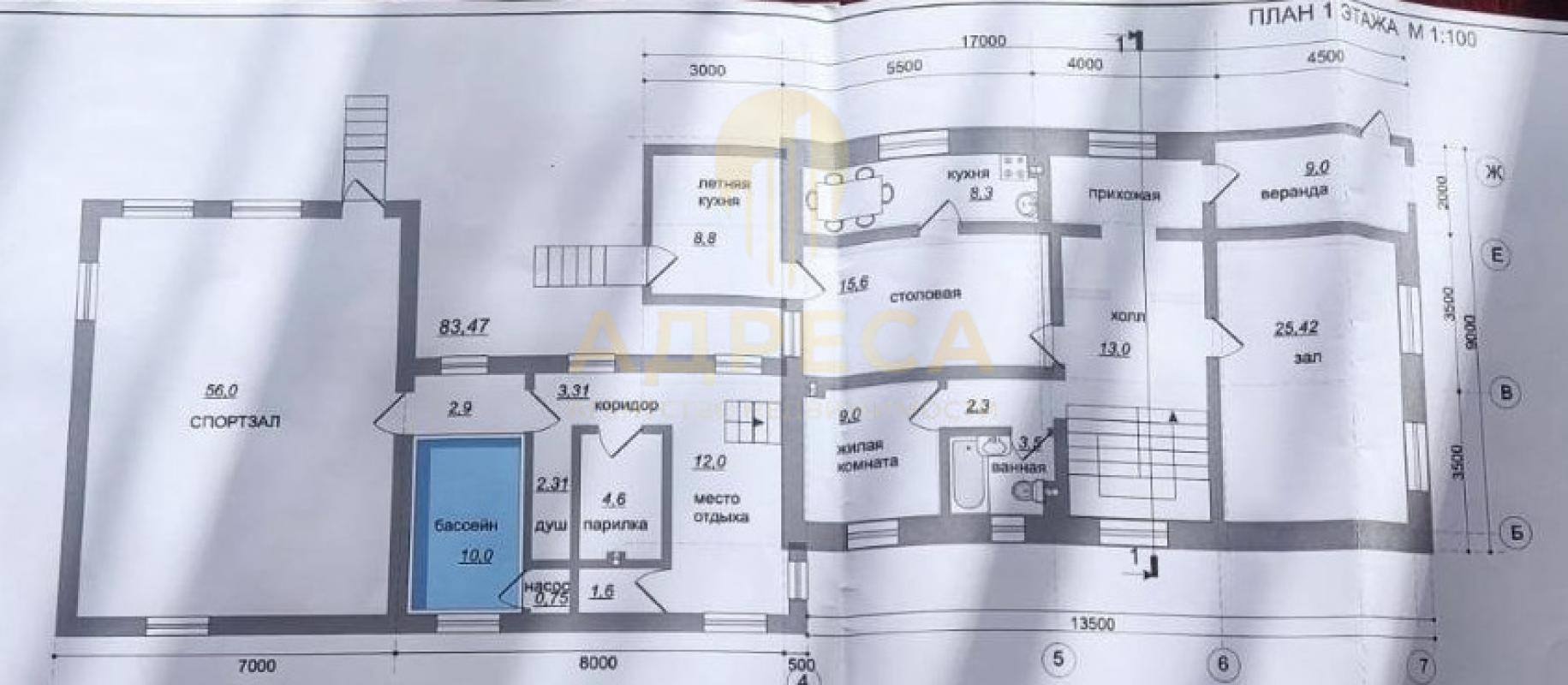
▎Ваш идеальный дом в поселке "Южный Урал"! Мечтаете о тихой и спокойной жизни за городом, но с городским комфортом? Этот просторный двухэтажный дом в поселке "Южный Урал" – идеальный вариант для вас!
▎Описание дома:
Двухэтажный дом с полуподвальным помещением:
Первый этаж:
Гостиная: Просторная и уютная, идеально подходит для теплых семейных вечеров.
Кухня-столовая: Удобное место с большим столом для праздничных обедов и душевных посиделок.
Дополнительная комната или гардеробная: Возможность адаптации под ваши нужды.
Санузел: Удобное размещение на первом и втором этажах.
Коридор: Простой и просторный, создающий атмосферу уюта.
Полуподвальное помещение: Две комнаты для развлечений, кладовая и котельная с выходом в банный комплекс – все для комфортного проживания вашей семьи.
Внутренний двор: Удобный выход из кухни, гостиной и банного комплекса для приятных прогулок и семейных посиделок в уютной беседке.
Второй этаж: Четыре комнаты:
– Детские комнаты: Созданы для счастливого детства ваших детей.
– Взрослая спальня: Место для спокойного и комфортного отдыха.
Банный комплекс: Состоит из комнаты отдыха, парной на дровах, душевой и большого бассейна.
Отдельно стоящий гараж:
На 2 автомобиля, с установленными рольставнями для защиты от непогоды.
Дополнительные преимущества:
Теплый пол по всему периметру первого этажа.
Готовность к проживанию: Дом укомплектован всей необходимой мебелью, техникой и четырьмя сплит-системами.
• Автономная канализация переливного типа: Три септика, позволяющие забыть о проблемах с отводом сточных вод.
Земельный участок: 12.5 соток, предоставляющий простор для реализации ваших идей, включая уютный сад с различными насаждениями.
Удобное расположение: Поселок "Южный Урал" находится всего в 10 км от центра города, обеспечивая легкий доступ ко всей городской инфраструктуре.
Этот шикарный дом — ваш шанс на жизнь в гармонии с природой, не отказываясь от удобств городской жизни. Не упустите возможность стать его владельцем!
ID объекта в нашей базе: 1811
Тип недвижимости
Адрес
Этажность
Площадь
Дом
Россия, Оренбургская обл, Южный Урал, ул. Пушкина, 9
2
235
ID объявления
Обновлено
Создано
Действительно до
847959
2026-03-21 05:45:30
2026-03-21 05:45:30
2026-06-19 05:45:30

2 990 000 ₽
1-комн. квартира
Россия, Оренбургская обл, Оренбург, ул. Лабужского,20

2 000 000 ₽
1-комн. квартира
Оренбургская обл, г Гай, ул Ленина, д 40

5 000 000 ₽
3-комн. квартира
Оренбургская обл, г Новотроицк, ул Уральская, д 32

5 703 710 ₽
3-комн. квартира
Россия, Оренбургская обл, Нежинка, ул. Фестивальная,21/1

2 600 000 ₽
2-комн. квартира
Оренбургская обл, г Новотроицк, ул Строителей, д 6

7 200 000 ₽
Дом
Россия, Оренбургская обл, Благословенка, ул. Солнечная,88

350 000 ₽
Сад

8 699 000 ₽
Дом
Россия, Оренбургская обл, Оренбург, ул. Чебеньковская,24

550 000 ₽
Земельный участок
Россия, Оренбургская обл, Приютово, Оренбургский муниципальный район, сельское поселение Сергиевский сельсовет, с. Приютово, ул. Успешная, 19

5 150 000 ₽
3-комн. квартира

1 000 000 ₽
1-комн. квартира
Оренбургская обл, г Новотроицк, пр-кт Металлургов, д 17

2 950 000 ₽
Помещение
Оренбургская обл, г Новотроицк, ул Советская, д 5

950 000 ₽
1-комн. квартира
Оренбургская обл, г Новотроицк, ул Губина, д 6

2 820 000 ₽
3-комн. квартира
Оренбургская обл, г Новотроицк, ул Советская, д 61

3 650 000 ₽
3-комн. квартира

5 500 000 ₽
Помещение

договорная

2 600 000 ₽
2-комн. квартира
Оренбургская обл, г Новотроицк, ул Советская, д 72

4 700 000 ₽
Дом
Оренбургская обл, г Новотроицк, ул 1 Мая

3 400 000 ₽
3-комн. квартира
Оренбургская обл, г Новотроицк, ул Мира, д 2

3 500 000 ₽
3-комн. квартира
Россия, Оренбургская обл, Орск, пр-кт. Ленина,95

1 750 000 ₽
2-комн. квартира
Оренбургская обл, г Новотроицк, ул Советская, д 136

2 800 000 ₽
2-комн. квартира

7 518 240 ₽
3-комн. квартира
Россия, Оренбургская обл, Оренбург, ул. Котова,34