АН АДРЕСА
anufriev-adresa@yandex.ru
Скажите продавцу, что вы нашли объявление на 156.ru
1
/
3
7 870 000 ₽
27
Оренбург
АН АДРЕСА
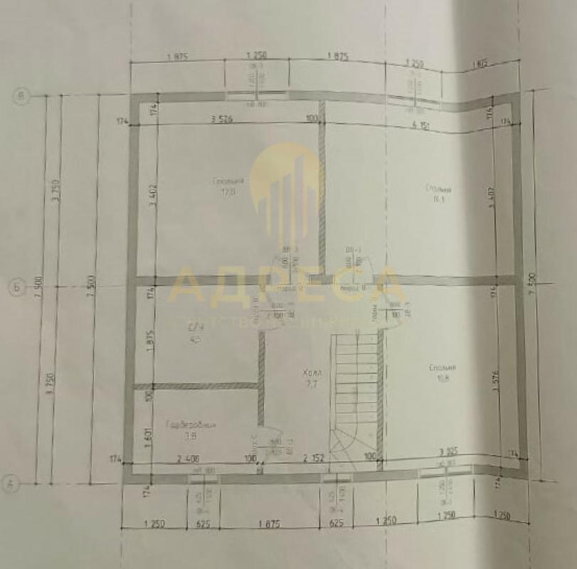
Продается дом в ЭЛИТНОЙ части поселка Кушкуль, по адресу: улица Земская 19.Площадь дома 104 м.кв.Площадь участка 10сот.Газоснабжение: центральное.Водоснабжение: скважина 14м, в доме (есть возможность подключения к центральному)Водоотведение: локальное 4кольца по 1,5м (есть возможность подключения к центральному)Материалы постройки: СИП-панели короед.Фундамент: сваи.Электрика вся по госту, доступ ко всем коробкам.Также максимально доступ ко всем коммуникациям водоотвода.Отопление газ.Состояние ремонта на фото, но лучше посмотреть в живую.Инфраструктура: Школа № 21,так-же имеются сетевые магазины.Возникли вопросы звоните, отвечу.Обременений нет.Просмотр по договоренности в удобное время.
✅ Предоставление консультаций по вопросам, связанным с покупкой недвижимости, в том числе с использованием кредитных средств, жилищных сертификатов, материнского (семейного) капитала.
✅ Помощь в формировании пакета документов (для каждого объекта индивидуально), необходимых для оформления сделки купли-продажи.
✅ Подбор индивидуальной программы кредитования, согласование в банках ипотечной заявки и объекта, на наиболее выгодных для заемщика условиях.
✅ ЭКСКЛЮЗИВНО: ипотека без справок и подтверждения дохода; одобрение ипотеки при отсутствии первоначального взноса (трейд-ин); доступна опция понижения ставки по ипотеке, применение скидки от нашего агентства; проведение сделки дистанционно.
✅ Наш офис ул. Восточная 42/3 АН АДРЕСА
ID объекта в нашей базе: 1114
Тип недвижимости
Адрес
Этажность
Площадь
Дом
Россия, Оренбургская обл, Оренбург, Земская 19
2
104
ID объявления
Обновлено
Создано
Действительно до
838414
2026-03-04 05:21:05
2026-03-04 05:21:05
2026-06-02 05:21:05

5 600 000 ₽
2-комн. квартира
Россия, Оренбургская обл, Орск, ул. Краматорская,48

6 990 000 ₽
2-комн. квартира
Россия, Оренбургская обл, Оренбург, ул. Мало-Ленинская,167/2

2 820 000 ₽
3-комн. квартира
Оренбургская обл, г Новотроицк, ул Советская, д 61

3 000 000 ₽
3-комн. квартира
Оренбургская обл, г Новотроицк, ул Гагарина, д 12

6 300 000 ₽
Дом
Оренбургская обл, г Новотроицк, село Хабарное, ул Молодежная

1 880 000 ₽
2-комн. квартира
Оренбургская обл, г Новотроицк, ул Советская, д 124

250 000 ₽
Дом
Россия, Оренбургская обл, Оренбург, ул. 13 Линия,105

1 650 000 ₽
2-комн. квартира
Оренбургская обл, г Новотроицк, ул Советская, д 2

1 100 000 ₽
1-комн. квартира
Россия, Оренбургская обл, Орск, пер. Косой,5

4 500 000 ₽
3-комн. квартира
Оренбургская обл, г Новотроицк, ул Марии Корецкой, д 15А

29 000 000 ₽
Помещение
Оренбургская обл, г Новотроицк, ул Ломоносова, д 44

2 800 000 ₽
Сад

17 100 000 ₽
Помещение
Россия, Оренбургская обл, Сакмара, ул. Советская,44

2 270 000 ₽
2-комн. квартира
Оренбургская обл, г Новотроицк, ул Советская, д 115
850 000 ₽
2-комн. квартира

1 630 000 ₽
1-комн. квартира

2 800 000 ₽
2-комн. квартира
Оренбургская обл, г Новотроицк, ул Есенкова, д 10

1 200 000 ₽
1-комн. квартира
Оренбургская обл, г Новотроицк, пр-кт Металлургов, д 38

2 149 000 ₽
1-комн. квартира
Россия, Оренбургская обл, Оренбург, ул. Конституции СССР,24/1 к 1

3 890 000 ₽
3-комн. квартира
Оренбургская обл, г Новотроицк, ул Железнодорожная, д 59А

3 900 000 ₽
2-комн. квартира

16 900 000 ₽
Дом
Россия, Оренбургская обл, Южный Урал, ул. Сурикова,3

15 000 000 ₽
Помещение

1 570 000 ₽
3-комн. квартира
Оренбургская обл, г Новотроицк, ул Гагарина, д 13