АН АДРЕСА
I.mihailova-adresa@yandex.ru
Скажите продавцу, что вы нашли объявление на 156.ru
1
/
3
7 000 000 ₽
9
Благословенка
АН АДРЕСА
!!! ДOМА OТ ЗAСТРОЙЩИКА!!!ИПOТEЧНАЯ СTАBKA 6%ЛЮБАЯ ФOPMA PАСЧЕTA( любoй cеpтификат,мaтеринский капитал,обычная ипoтeкa, cемейная ипотекa, нaличный pacчет).В ПРОДAЖE ДOMА 140 M 6 CотЗAБOР пo вcему пepимeтpу учaсткa!
пocелoк МAРЬИНО-HЕЗАТОПЛЯЕМАЯ ЗОНА!
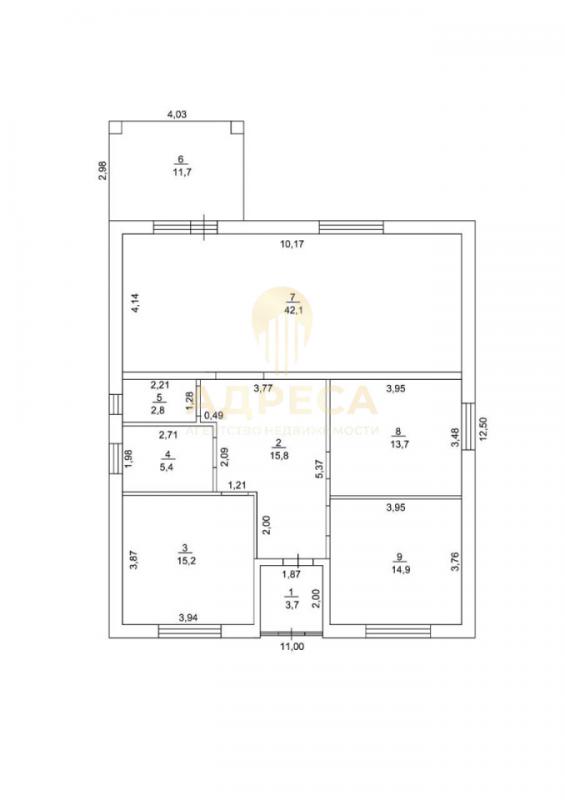
Общая площадь дома 140 мКухня-гостинная 42м с выходом на террасуСпальни-3Открытый большой холС/У+котельнаяТамбур закрытыйКачественная входная дверь с термо-разрывомСтены оштукатурены под обои,керамзито-блок , утеплитель 10, кирпич.Потолок подшит плитами ОSВ.Откосы, подоконники подготовлены.Радиаторы отопления во всех комнатах, теплый пол по всему периметру дома.Двухконтурный газовый котел.Скважина, септик -3 кольца.Фундамент свайно ленточный,глубина свай 2 м,шаг 1,5м, заводской бетон!Крыша-Металлочерепица с утеплением,отмостка.
Наша компания провела профессиональную юридическую проверку объекта недвижимости, гарантируя вам защиту от потенциальных рисков.
Сделка будет осуществлена с полной юридической прозрачностью, обеспечивая вас надежным и безопасным приобретением жилья.Офис продаж ул.Восточная 42/3
ID объекта в нашей базе: 1755
Тип недвижимости
Адрес
Этажность
Площадь
Дом
Россия, Оренбургская обл, Благословенка, пер. Аптекарский, 5
1
140
ID объявления
Обновлено
Создано
Действительно до
836415
2026-02-28 05:43:12
2026-02-28 05:43:12
2026-05-29 05:43:12
3 280 000 ₽
2-комн. квартира

договорная

2 150 000 ₽
3-комн. квартира
Оренбургская обл, г Новотроицк, ул Уральская, д 37

3 400 000 ₽
3-комн. квартира
Оренбургская обл, г Орск, ул Вокзальная, д 21, кв 22

5 250 000 ₽
Дом
Оренбургская обл, г Новотроицк, поселок Аккермановка

250 ₽
Гараж
Оренбургская обл, г Новотроицк, ул Советская, д 81
2 800 000 ₽
2-комн. квартира
2 700 000 ₽
3-комн. квартира
Оренбургская обл, г Гай, ул Ленина, д 48

16 000 000 ₽
Дом

договорная

3 100 000 ₽
2-комн. квартира
Оренбургская обл, г Новотроицк, пл Ленина, д 6

3 200 000 ₽
2-комн. квартира

3 750 ₽
3-комн. квартира
Оренбургская обл, г Гай, ул Октябрьская

2 350 000 ₽
1-комн. квартира
Россия, Оренбургская обл, Оренбург, ул. Авиационная,22/1

5 950 000 ₽
Дом
Россия, Оренбургская обл, Оренбург, 12

8 900 000 ₽
Дом

2 990 000 ₽
2-комн. квартира
Россия, Оренбургская обл, Оренбург, пр-кт. Братьев Коростелевых,62

3 900 000 ₽
2-комн. квартира

3 100 000 ₽
Дача
Оренбургская обл, г Новотроицк, ст Губерля

4 000 000 ₽
3-комн. квартира
Оренбургская обл, г Новотроицк, пр-кт Металлургов, д 18

1 850 000 ₽
2-комн. квартира
Оренбургская обл, г Новотроицк, пр-кт Металлургов, д 1

2 800 000 ₽
2-комн. квартира
Оренбургская обл, г Новотроицк, ул Библиотечная, д 7

8 499 000 ₽
Дом
Россия, Оренбургская обл, Весенний, ул. Вишневая

970 000 ₽
Дом
Россия, Оренбургская обл, Орловка, ул. Школьная,10