Юлия
juliya-056@mail.ru
Скажите продавцу, что вы нашли объявление на 156.ru
1
/
3
4 000 000 ₽
26
Оренбург
Юлия
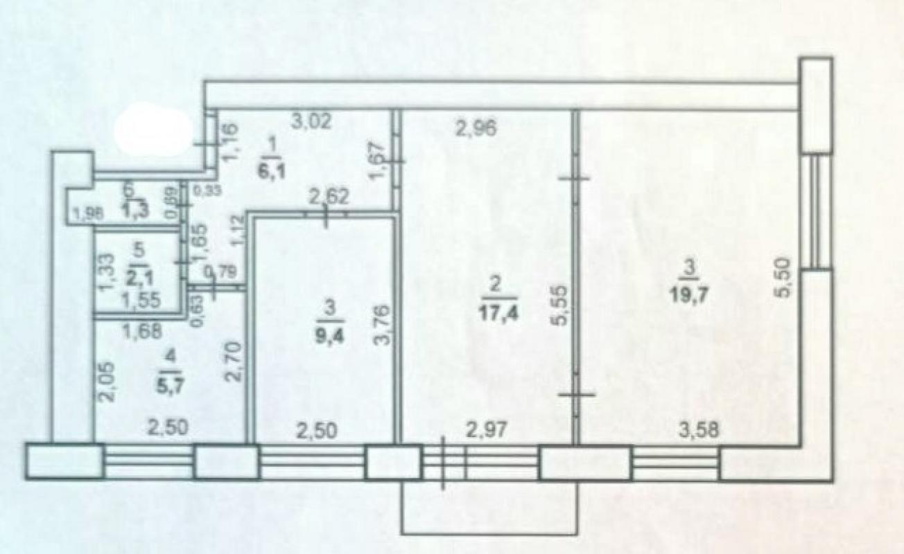
Продам трехкомнатную квартиру в центре города. Кирпичный дом, второй этаж.Комнаты смежно-изолированные. Совмещённый санузел.Погреб во дворе дома будет приятным бонусом новому собственнику. Один взрослый собственник. Долгов и обременений нет.Остановка в трёх минутах ходьбы;Детский сад №109;Школы №39 и 46;Спортивная школа олимпийского резерва №1 им. Н.С. Гейтца;Стрелково-спортивный клуб;Медицинский университет;Корпус № 5 педагогического университета;Оренбургский институт путей и сообщения;Магнит, аптека, оптика, Альфа-страхование - расположены в этом доме;Три парка - Тополя, Перовского, Ленина;Рынок "Локомотив".Квартира свободна от проживающих.Если Вам понравился этот объект, но Ваша недвижимость не продана, окажем помощь в реализации.
Юридическое сопровождение и помощь в одобрение ипотеки при покупке данного объекта бесплатно.
Просмотр по предварительной договоренности.
ID объекта в нашей базе: 132
Тип недвижимости
Адрес
Этажность
Этаж
Площадь
3-комн. квартира
Россия, Оренбургская обл, Оренбург, проезд. Коммунаров,24
5
2
60.7
ID объявления
Обновлено
Создано
Действительно до
828222
2026-02-13 05:59:53
2026-02-13 05:59:53
2026-05-14 05:59:53

5 500 000 ₽
Помещение
Гай

2 600 000 ₽
2-комн. квартира
Оренбургская обл, г Новотроицк, ул Фрунзе, д 22/2

1 560 000 ₽
2-комн. квартира
Оренбургская обл, г Новотроицк, ул Зеленая, д 49
615 ₽
Комната
Оренбургская обл, г Новотроицк, ул Пушкина, д 59

3 550 000 ₽
4-комн. квартира
Оренбургская обл, г Новотроицк, ул Зеленая, д 65А

2 200 000 ₽
2-комн. квартира

7 599 000 ₽
2-комн. квартира
Россия, Оренбургская обл, Оренбург, ул. Салмышская,67

3 200 000 ₽
Помещение

2 900 000 ₽
2-комн. квартира
Россия, Оренбургская обл, Орск, ул. Машиностроителей,16А

370 000 ₽
Земельный участок
Россия, Оренбургская обл, Орск, п. Джанаталап

9 500 000 ₽
Россия, Оренбургская обл, Орск, ул. Просвещения,55

2 100 000 ₽
3-комн. квартира
Оренбургская обл, г Новотроицк, ул Мира, д 4

6 300 000 ₽
3-комн. квартира
Россия, Оренбургская обл, Орск, ул. Докучаева,17

6 000 000 ₽
3-комн. квартира
Россия, Оренбургская обл, Оренбург, ул. Юркина,2

1 700 000 ₽
Дом
Россия, Оренбургская обл, Новопокровка, ул. Зеленая,8

6 200 000 ₽
Дом
Россия, Оренбургская обл, Оренбург, ул. Луговая

3 250 000 ₽
3-комн. квартира
Оренбургская обл, г Новотроицк, ул Советская, д 19

900 000 ₽
Дом
Россия, Оренбургская обл, Никольское, ул. Дорожная,4

2 300 000 ₽
Гараж
Россия, Оренбургская обл, Оренбург, ул. Просторная,8

6 350 000 ₽
Дом

10 000 000 ₽
Дом
Россия, Оренбургская обл, Орск, Переулок Нагорный дом 4

6 200 000 ₽
Дом
Россия, Оренбургская обл, Приуральский, Новоросийская

6 000 000 ₽
Дом
Россия, Оренбургская обл, Красный Коммунар, ул. Березка,3

9 161 690 ₽
Россия, Оренбургская обл, Оренбург, 41 а