АН АДРЕСА
Lilia.k-adresa@yandex.ru
Скажите продавцу, что вы нашли объявление на 156.ru
1
/
3
12 900 000 ₽
3
Южный Урал
АН АДРЕСА
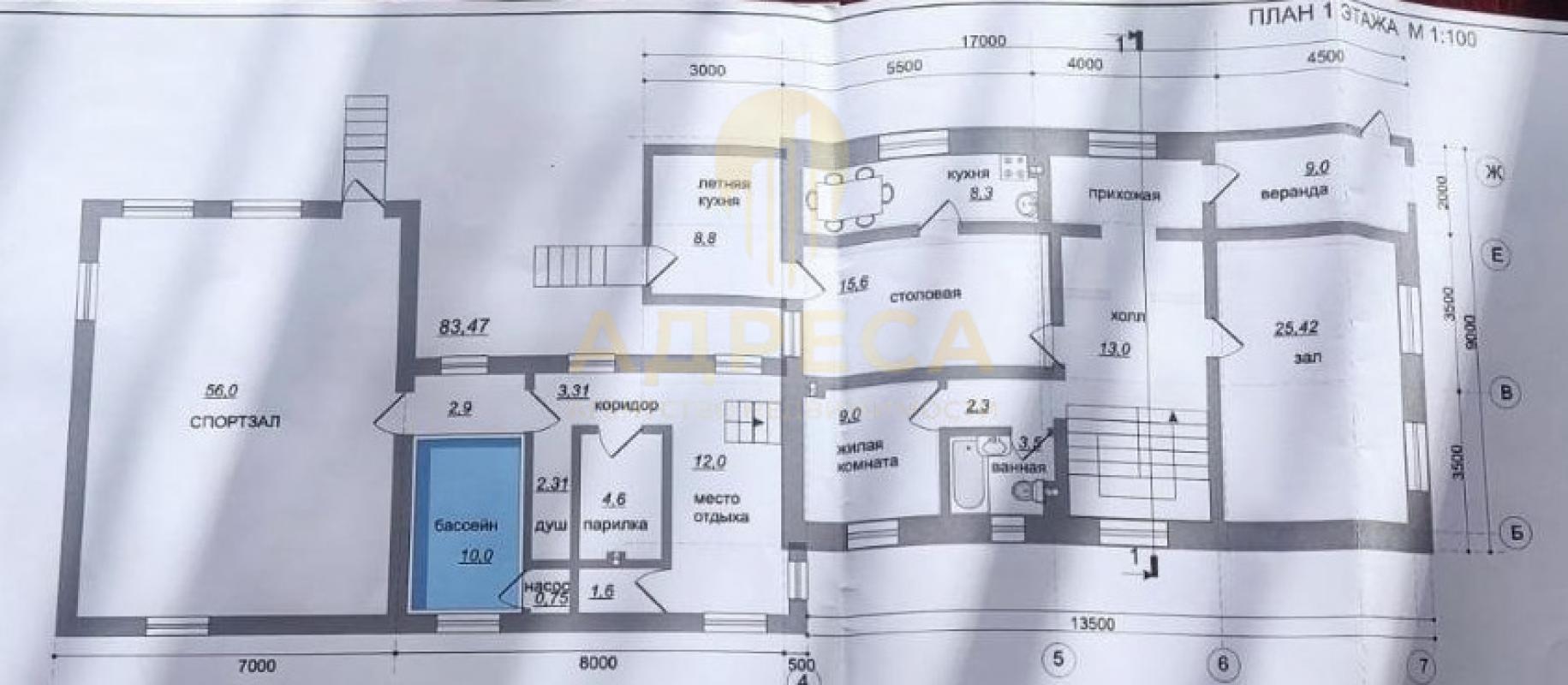
▎Ваш идеальный дом в поселке "Южный Урал"! Мечтаете о тихой и спокойной жизни за городом, но с городским комфортом? Этот просторный двухэтажный дом в поселке "Южный Урал" – идеальный вариант для вас!
▎Описание дома:
Двухэтажный дом с полуподвальным помещением:
Первый этаж:
Гостиная: Просторная и уютная, идеально подходит для теплых семейных вечеров.
Кухня-столовая: Удобное место с большим столом для праздничных обедов и душевных посиделок.
Дополнительная комната или гардеробная: Возможность адаптации под ваши нужды.
Санузел: Удобное размещение на первом и втором этажах.
Коридор: Простой и просторный, создающий атмосферу уюта.
Полуподвальное помещение: Две комнаты для развлечений, кладовая и котельная с выходом в банный комплекс – все для комфортного проживания вашей семьи.
Внутренний двор: Удобный выход из кухни, гостиной и банного комплекса для приятных прогулок и семейных посиделок в уютной беседке.
Второй этаж: Четыре комнаты:
– Детские комнаты: Созданы для счастливого детства ваших детей.
– Взрослая спальня: Место для спокойного и комфортного отдыха.
Банный комплекс: Состоит из комнаты отдыха, парной на дровах, душевой и большого бассейна.
Отдельно стоящий гараж:
На 2 автомобиля, с установленными рольставнями для защиты от непогоды.
Дополнительные преимущества:
Теплый пол по всему периметру первого этажа.
Готовность к проживанию: Дом укомплектован всей необходимой мебелью, техникой и четырьмя сплит-системами.
• Автономная канализация переливного типа: Три септика, позволяющие забыть о проблемах с отводом сточных вод.
Земельный участок: 12.5 соток, предоставляющий простор для реализации ваших идей, включая уютный сад с различными насаждениями.
Удобное расположение: Поселок "Южный Урал" находится всего в 10 км от центра города, обеспечивая легкий доступ ко всей городской инфраструктуре.
Этот шикарный дом — ваш шанс на жизнь в гармонии с природой, не отказываясь от удобств городской жизни. Не упустите возможность стать его владельцем!
ID объекта в нашей базе: 1811
Тип недвижимости
Адрес
Этажность
Площадь
Дом
Россия, Оренбургская обл, Южный Урал, ул. Пушкина, 9
2
235
ID объявления
Обновлено
Создано
Действительно до
819456
2026-01-28 05:51:06
2026-01-28 05:51:06
2026-04-28 05:51:06

6 330 000 ₽
3-комн. квартира
Россия, Оренбургская обл, Оренбург, пер. Неплюева,4

6 500 000 ₽
Дом
Россия, Оренбургская обл, Оренбург, Array

15 000 000 ₽
Помещение

1 680 000 ₽
1-комн. квартира
Оренбургская обл, г Новотроицк, ул Винокурова, д 10А

3 990 000 ₽
2-комн. квартира
Оренбургская обл, г Новотроицк, ул Советская, д 2
1 500 000 ₽
3-комн. квартира
Оренбургская обл, Новоорский р-н, поселок Энергетик, мкр 2

600 000 ₽
Земельный участок
Оренбургская обл, г Новотроицк, поселок Аккермановка

13 860 000 ₽
3-комн. квартира
Россия, Оренбургская обл, Оренбург, ул. Цвиллинга,68

1 750 000 ₽
1-комн. квартира

1 800 000 ₽
1-комн. квартира
Россия, Оренбургская обл, Орск, пер. Нежинский,13
1 150 000 ₽
1-комн. квартира
Оренбургская обл, г Новотроицк, ул Уметбаева, д 3

2 000 000 ₽
2-комн. квартира
Оренбургская обл, г Новотроицк, ул Мира, д 5

8 900 000 ₽
Дом

12 360 000 ₽
Дом
Оренбургская обл, г Новотроицк, село Хабарное, ул Садовая, влд 34

850 000 ₽
Земельный участок
Россия, Оренбургская обл, Оренбург, Оренбургская область, г. Оренбург, С/Т Калина Красная, 380

5 200 000 ₽
3-комн. квартира
Оренбургская обл, г Новотроицк, ул Гагарина, д 7

3 300 000 ₽
3-комн. квартира
Оренбургская обл, г Новотроицк, пер 8 Марта, д 4

1 800 000 ₽
2-комн. квартира
Оренбургская обл, г Новотроицк, ул Гагарина, д 13

4 800 000 ₽
3-комн. квартира
Оренбургская обл, г Новотроицк, ул Родимцева, д 2

договорная

250 000 ₽
Дом
Россия, Оренбургская обл, Оренбург, ул. 13 Линия,105

1 300 000 ₽
Сад

договорная

3 200 000 ₽
3-комн. квартира