АН АДРЕСА
Lilia.k-adresa@yandex.ru
Скажите продавцу, что вы нашли объявление на 156.ru
1
/
3
3 850 000 ₽
18
Оренбург
АН АДРЕСА
ПРЕДЛАГАЕМ ВАШЕМУ ВНИМАНИЮ ПРОСТОРНУЮ И УЮТНУЮ ДВУХКОМНАТНУЮ КВАРТИРУ!
КВАРТИРА С НОВЫМ ОТЛИЧНЫМ РЕМОНТОМ, ЧТО ПОЗВОЛЯЕТ ЗАЕХАТЬ и ЖИТЬ!
О КВАРТИРЕ:
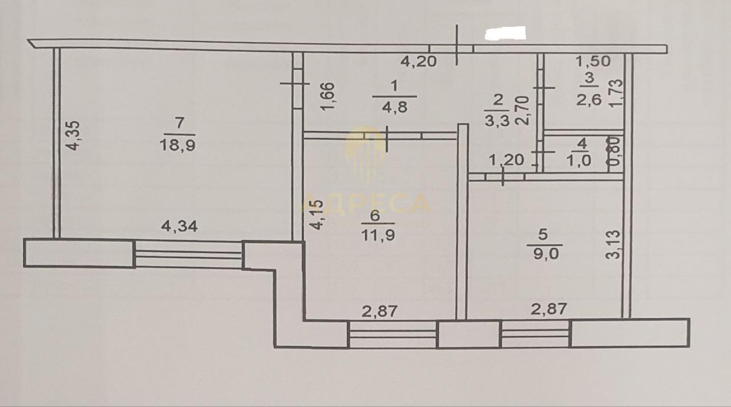
Общая площадь квартиры – 51.5 кв.м Очень хорошая планировка – квадратный просторный зал площадью 18.9 кв.м,, светлая спальня 11,9 кв.м., и уютная кухня 9 кв.м. В квартире выполнен качественный ремонт. Во всех комнатах пластиковые окна. С/У раздельный в кафеле. Качественные деревянные двери. Полы с подогревом! Из мебели остается вместительный угловой кухонный гарнитур. Сплит система. Коммуникации все центральные. Квартира очень теплая. Соседи очень хорошие и дружные.
ИНФРАСТРУКТУРА:
—д/с 106.
—СОШ №11
—Магазины Пятерочка, Магнит, Красное/белое, аптеки и др.;
Остановка общественного транспорта в шаговой доступности: маршруты: 78Н (62), 23.Рассмотрим все формы расчета: ипотека, сертификаты, наличный и безналичный расчет.
- Поможем купить в ипотеку! Узнавайте по телефону подробные условия.
Юридическое сопровождение сделки.
Если вам понравился этот вариант, но у вас ещё не продана своя недвижимость, предложите нам, возможно у нас прямо сейчас есть на неё покупатель.
ID объекта в нашей базе: 1394
Тип недвижимости
Адрес
Этажность
Этаж
Площадь
2-комн. квартира
Россия, Оренбургская обл, Оренбург, ул. Авиационная,20
5
1
51.5
ID объявления
Обновлено
Создано
Действительно до
801497
2025-12-30 05:33:53
2025-12-30 05:33:53
2026-03-30 05:33:53

2 300 000 ₽
Гараж
Россия, Оренбургская обл, Оренбург, ул. Просторная,8

250 000 ₽
Гараж

7 500 000 ₽
Дом
Россия, Оренбургская обл, Оренбург, ул. Ломоносова

1 800 000 ₽
1-комн. квартира
Россия, Оренбургская обл, Орск, пер. Нежинский,13
1 880 000 ₽
2-комн. квартира
Оренбургская обл, г Новотроицк, ул Советская, д 124

2 080 000 ₽
2-комн. квартира
Оренбургская обл, г Новотроицк, ул Зеленая, д 55А

1 750 000 ₽
3-комн. квартира
Оренбургская обл, г Новотроицк, ул Железнодорожная, д 83

7 300 000 ₽
3-комн. квартира

4 399 000 ₽
Дом
Россия, Оренбургская обл, Оренбург, г.Оренбург, мк-р Солнечный, ул.Ивановская, 3А
4 620 240 ₽
2-комн. квартира
, , ,

1 500 000 ₽
2-комн. квартира
Оренбургская обл, г Новотроицк, ул Гагарина, д 16

2 400 000 ₽
2-комн. квартира
Оренбургская обл, г Новотроицк, ул Советская, д 124
3 040 000 ₽
Помещение
Оренбургская обл, Тоцкий р-н, поселок Пристанционный, ул Элеваторная, зд 2А

5 999 000 ₽
Дом
Россия, Оренбургская обл, Оренбург, 40

2 100 000 ₽
3-комн. квартира
Оренбургская обл, г Новотроицк, ул Мира, д 4

1 000 000 ₽
1-комн. квартира
г Оренбург, ул Декабристов, д 1

2 250 000 ₽
1-комн. квартира
Россия, Оренбургская обл, Орск, ул. Домбаровская,30
1 750 000 ₽
3-комн. квартира
Оренбургская обл, г Новотроицк, ул Советская

500 000 ₽
Сад

1 850 000 ₽
3-комн. квартира
Оренбургская обл, г Новотроицк, ул Пушкина, д 44

2 150 000 ₽
3-комн. квартира
Оренбургская обл, г Новотроицк, ул Советская, д 76А

1 450 000 ₽
2-комн. квартира
Оренбургская обл, г Новотроицк, ул Жукова, д 9

5 703 710 ₽
3-комн. квартира
Россия, Оренбургская обл, Нежинка, ул. Фестивальная,21/1
3 700 000 ₽
Дача
Оренбургская обл, г Новотроицк, тер. СНТ Утес № 31