АН АДРЕСА
Lilia.k-adresa@yandex.ru
Скажите продавцу, что вы нашли объявление на 156.ru
1
/
3
3 850 000 ₽
25
Оренбург
АН АДРЕСА
ПРЕДЛАГАЕМ ВАШЕМУ ВНИМАНИЮ ПРОСТОРНУЮ И УЮТНУЮ ДВУХКОМНАТНУЮ КВАРТИРУ!
КВАРТИРА С НОВЫМ ОТЛИЧНЫМ РЕМОНТОМ, ЧТО ПОЗВОЛЯЕТ ЗАЕХАТЬ и ЖИТЬ!
О КВАРТИРЕ:
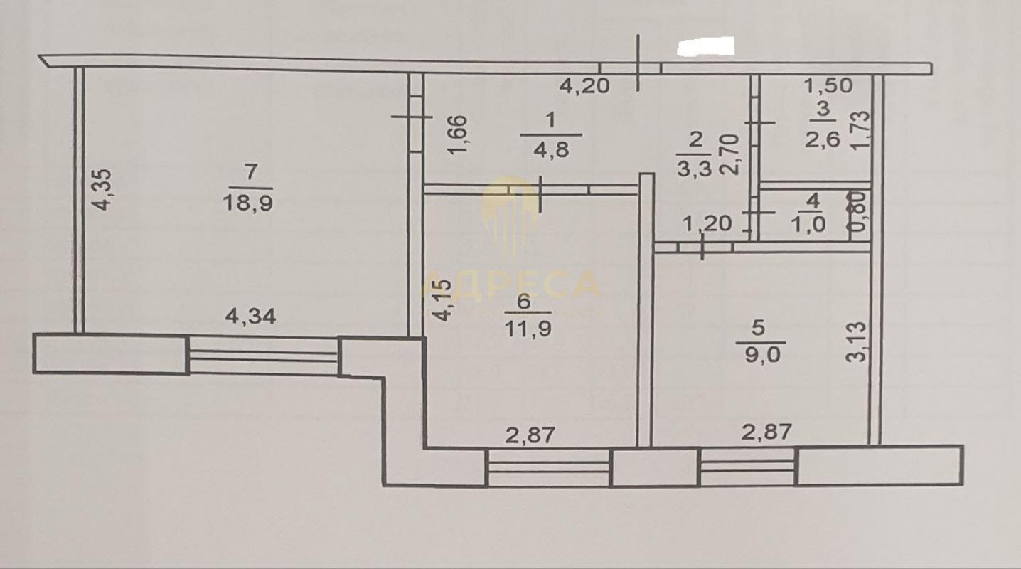
Общая площадь квартиры – 51.5 кв.м Очень хорошая планировка – квадратный просторный зал площадью 18.9 кв.м,, светлая спальня 11,9 кв.м., и уютная кухня 9 кв.м. В квартире выполнен качественный ремонт. Во всех комнатах пластиковые окна. С/У раздельный в кафеле. Качественные деревянные двери. Полы с подогревом! Из мебели остается вместительный угловой кухонный гарнитур. Сплит система. Коммуникации все центральные. Квартира очень теплая. Соседи очень хорошие и дружные.
ИНФРАСТРУКТУРА:
—д/с 106.
—СОШ №11
—Магазины Пятерочка, Магнит, Красное/белое, аптеки и др.;
Остановка общественного транспорта в шаговой доступности: маршруты: 78Н (62), 23.Рассмотрим все формы расчета: ипотека, сертификаты, наличный и безналичный расчет.
- Поможем купить в ипотеку! Узнавайте по телефону подробные условия.
Юридическое сопровождение сделки.
Если вам понравился этот вариант, но у вас ещё не продана своя недвижимость, предложите нам, возможно у нас прямо сейчас есть на неё покупатель.
ID объекта в нашей базе: 1394
Тип недвижимости
Адрес
Этажность
Этаж
Площадь
2-комн. квартира
Россия, Оренбургская обл, Оренбург, ул. Авиационная,20
5
1
51.5
ID объявления
Обновлено
Создано
Действительно до
800904
2025-12-29 05:33:07
2025-12-29 05:33:07
2026-03-29 05:33:07

2 200 000 ₽
2-комн. квартира
Россия, Оренбургская обл, Орск, пер. Нежинский,3а

600 000 ₽
Земельный участок
Россия, Оренбургская обл, Ора, проезд. Сиреневый,1

4 520 000 ₽
3-комн. квартира
Россия, Оренбургская обл, Оренбург, ул. Салмышская,3

4 500 000 ₽
3-комн. квартира

3 100 000 ₽
4-комн. квартира
Оренбургская обл, г Новотроицк, ул Гагарина, д 19

3 700 000 ₽
1-комн. квартира
Россия, Оренбургская обл, Оренбург, ул. Народная,36

3 550 000 ₽
4-комн. квартира
Оренбургская обл, г Новотроицк, ул Зеленая, д 65А

2 100 000 ₽
2-комн. квартира
Оренбургская обл, г Новотроицк, ул Советская, д 125

6 920 000 ₽
Дом
Россия, Оренбургская обл, Ивановка, ул. Татищева,52

4 100 000 ₽
3-комн. квартира
Россия, Оренбургская обл, Орск, ул. Просвещения,56А

2 300 000 ₽
3-комн. квартира
Оренбургская обл, г Новотроицк, ул Советская, д 102

4 500 000 ₽
4-комн. квартира
Оренбургская обл, г Орск, ул Славянская, д 13

2 600 000 ₽
4-комн. квартира
Оренбургская обл, г Новотроицк, ул Юных Ленинцев, д 12

2 590 000 ₽
3-комн. квартира
1 600 000 ₽
2-комн. квартира
Оренбургская обл, г Новотроицк, ул Марии Корецкой, д 5

2 600 000 ₽
4-комн. квартира
Оренбургская обл, г Новотроицк, ул Юных Ленинцев

7 000 000 ₽
Дом
Россия, Оренбургская обл, Орск, ул. Сальская
3 500 000 ₽
3-комн. квартира
Оренбургская обл, г Новотроицк, пр-кт Металлургов, д 22

2 920 000 ₽
3-комн. квартира
Оренбургская обл, г Новотроицк, ул Советская, д 61
150 000 ₽
Гараж
Оренбургская обл, г Новотроицк

4 300 000 ₽
Дом
Россия, Оренбургская обл, Оренбург, СНТ Строитель, ул. Сиреневая

2 600 000 ₽
3-комн. квартира
Оренбургская обл, г Новотроицк, Студенческий пер, д 8

2 100 000 ₽
3-комн. квартира
Оренбургская обл, г Новотроицк, ул Зеленая, д 43

12 900 000 ₽
Дом
Россия, Оренбургская обл, Южный Урал, ул. Пушкина, 9