АН АДРЕСА
a.borisova-adresa@yandex.ru
Скажите продавцу, что вы нашли объявление на 156.ru
1
/
3
9 161 690 ₽
12
Оренбург
АН АДРЕСА
Документы готовы, быстрый выход на сделку!!!!ДоступностьСемейная ипотека 6 %, сельская ипотека 3 %
Наши дома подходят под субсидированные ипотечные программы, военной ипотекой, различными жилищными сертификатами и материнским капиталом. Все это делает покупку максимально удобной и комфортной для наших клиентов, а самое главное выгодной!
Материал стен: газоблоки
Терраса или веранда: покрыты керамогранитом
Лестница: металлический каркас
Санузел: на 1 и 2 этажах
Коммуникации: электричество, газ, отопление, канализация
Ремонт: улучшенная предчистовая отделка
Интернет и ТВ: Wi-Fi, телевидение
Парковка: парковочное место
Транспортная доступность: асфальтированная дорога, остановка общественного транспорта
Инфраструктура: магазин, аптека, детский сад, школа
Расстояние до центра города: 12 км
В подарок: территория участка огорожена забором, смонтированы въездные ворота под автомобиль и калитка с электромеханическим замком, уличное освещение, установлен почтовый ящик. Вокруг дома залита бетонная отмостка, бетонная дорожка и площадка под автомобиль, выполнено уличное освещение.
Внутренная отделка
стены оштукатурены по маякам, отшпатлеваны под обои
полы – утепленная армированная бетонная стяжка с последующим устройством наливного пола
установлена пластиковая подоконная доска, дверные и оконные откосы облагорожены
Качество
Наши дома построены из заводского газобетонного блока КОТТЕДЖ, а фасад облицован керамическим кирпичом. Установлены качественные ПВХ окна с двойным мультифункциональным стеклопакетом и надежная металлическая дверь с терморазрывом. В качестве кровельного покрытия выбрана двухслойная гибкая черепица Shinglas от компании ТЕХНОНИКОЛЬ, карниз подшит металлическими софитами, смонтирована водосточная система производства ТЕХНОНИКОЛЬ.
Инфраструктура
Поселок имеет развитую инфраструктуру, в шаговой доступности школа, детский сад, сетевые магазины, аптеки и ФАП. Поселок имеет хорошую транспортную доступность, ходит общественный транспорт. Сельская прописка и тарифы гарантируют вам экономию бюджета на обслуживание дома.
ОТ НАС: помощь в одобрении ипотеки ,полное юридическое сопровождение, помощь в продаже вашей недвижимости, работа с сертификатами.ПРОСМОТР В УДОБНОЕ ДЛЯ ВАС ВРЕМЯ, ПО ПРЕДВАРИТЕЛЬНОЙ ДОГОВОРЕННОСТИ!
ID объекта в нашей базе: 1537
Адрес
Этажность
Площадь
Россия, Оренбургская обл, Оренбург, 41 а
2
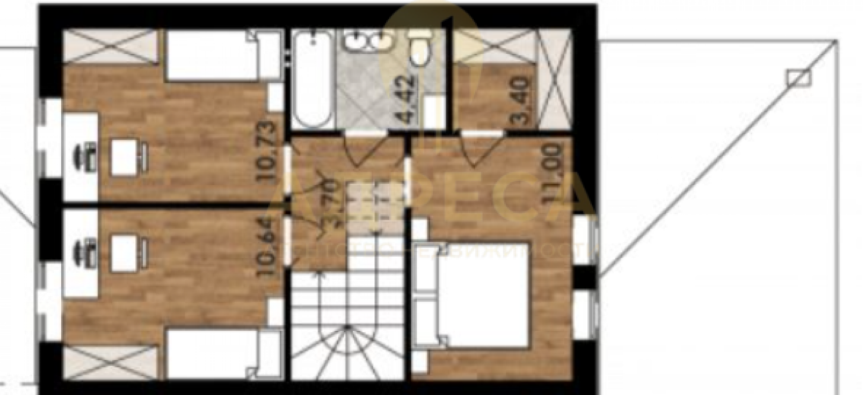
102
ID объявления
Обновлено
Создано
Действительно до
789775
2025-12-12 05:51:03
2025-12-12 05:51:03
2026-03-12 05:51:03

5 700 000 ₽
Дом
Оренбургская обл, г Новотроицк, ул Севастопольская

2 400 000 ₽
2-комн. квартира
Оренбургская обл, г Новотроицк, ул Свистунова, д 9А

3 400 000 ₽
3-комн. квартира
Россия, Оренбургская обл, Орск, ул. Братская,56 А

1 500 000 ₽
2-комн. квартира
Оренбургская обл, г Новотроицк, ул Марии Корецкой, д 1а

3 600 000 ₽
Дом

5 500 000 ₽
2-комн. квартира
Оренбургская обл, г Новотроицк, ул Советская, д 85

3 850 000 ₽
2-комн. квартира
Россия, Оренбургская обл, Оренбург, ул. Авиационная,20

1 940 000 ₽
1-комн. квартира
Россия, Оренбургская обл, Орск, ул. Давыдова,3

1 500 000 ₽
Дом
Россия, Оренбургская обл, Оренбург, Оренбургская обл., г. Оренбург, г. Оренбург СНТ "Гидропресс-Госматрезервы-станция" 1-сиреневая 46

4 500 000 ₽

3 950 000 ₽
3-комн. квартира
г Новотроицк ул Советская 103

9 161 690 ₽
Россия, Оренбургская обл, Оренбург, 41 а

1 400 000 ₽
Гараж
Россия, Оренбургская обл, Орск, Крайняя 2А

2 600 000 ₽
4-комн. квартира
Оренбургская обл, г Новотроицк, ул Юных Ленинцев

6 250 000 ₽
Помещение
Россия, Оренбургская обл, Адамовка, ул. Советская, 97
1 140 000 ₽
Земельный участок
Россия, Оренбургская обл, Орск, ул. В.Сарычева,7

2 250 000 ₽
2-комн. квартира
Оренбургская обл, г Новотроицк, ул Советская, д 5

2 550 000 ₽
1-комн. квартира
Россия, Оренбургская обл, Орск, пр-кт. Ленина,60

2 000 000 ₽
2-комн. квартира

2 800 000 ₽
2-комн. квартира
1 300 000 ₽
2-комн. квартира
Оренбургская обл, г Новотроицк

40 000 000 ₽
Помещение
Россия, Оренбургская обл, Орск, ул. Гарина,2

2 400 000 ₽
Дом
Оренбургская обл, г Новотроицк, ул 1 Мая, д 47 к а

4 650 000 ₽
1-комн. квартира
Россия, Оренбургская обл, Оренбург, пер. Слесарный.7