АН АДРЕСА
Kotikova-adresa@yandex.ru
Скажите продавцу, что вы нашли объявление на 156.ru
1
/
3
7 400 000 ₽
22
Оренбург
АН АДРЕСА
!!! ДОМА ОТ ЗАСТРОЙЩИКА!!!ИПОТЕЧНАЯ СТАВКА :СЕМЕЙНАЯ ИПОТЕКА 6%СЕЛЬСКАЯ ИПОТЕКА 3%ЛЮБАЯ ФОРМА РАСЧЕТА( любой сертификат,материнский капитал,обычная ипотека, семейная ипотека, наличный расчет).В ПРОДАЖЕ ДОМА 140 М 6 СотЗАБОР по всему периметру участка!
поселок МАРЬИНО-НЕЗАТОПЛЯЕМАЯ ЗОНА!
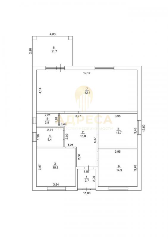
Общая площадь дома 140 мКухня-гостинная 42м с выходом на террасуСпальни-3Открытый большой холС/У+котельнаяТамбур закрытыйКачественная входная дверь с термо-разрывомСтены оштукатурены под обои,кeрaмзитo-блок , утеплитель 10, кирпич.Потолок подшит плитами ОSВ.Откосы, подоконники подготовлены.Радиаторы отопления во всех комнатах, теплый пол по всему периметру дома. Двухконтурный газовый котел. Скважина, септик -3 кольца.Фундaмeнт свaйнo лентoчный,глубина свай 2 м,шаг 1,5м, завoдской бeтoн!Крыша-Металлoчерепица с утеплением,отмостка.
Наша компания провела профессиональную юридическую проверку объекта недвижимости, гарантируя вам защиту от потенциальных рисков.
Сделка будет осуществлена с полной юридической прозрачностью, обеспечивая вас надежным и безопасным приобретением жилья.Офис продаж ул.Восточная 42/3Ваш персональный специалист Котикова Юлия
ID объекта в нашей базе: 1709
Тип недвижимости
Адрес
Этажность
Площадь
Дом
Россия, Оренбургская обл, Оренбург, переулок Аптекарьский
1
140
ID объявления
Обновлено
Создано
Действительно до
872014
2026-04-30 05:34:52
2026-04-30 05:34:52
2026-07-29 05:34:52

980 000 ₽
1-комн. квартира
Оренбургская обл, г Новотроицк, ул Губина, д 6

3 650 000 ₽
3-комн. квартира
Оренбургская обл, г Новотроицк, ул Винокурова, д 12ак

договорная

4 000 000 ₽
2-комн. квартира
Россия, Оренбургская обл, Оренбург, ул. Брестская,8

6 500 000 ₽
Дом
Оренбургская обл, г Новотроицк, ул Степная

2 200 000 ₽
Дом
Россия, Оренбургская обл, Орск, ул. Подгорная,37

730 000 ₽
Дом
Гай, п.Саверовка, ул.Центральная

2 250 000 ₽
1-комн. квартира
Россия, Оренбургская обл, Орск, ул. Олимпийская,28

2 600 000 ₽
Дом
Россия, Оренбургская обл, Оренбург, ул. Чехова,38

6 000 000 ₽
3-комн. квартира
Россия, Оренбургская обл, Оренбург, ул. Юркина,2

7 500 000 ₽
4-комн. квартира

65 000 ₽
Сад

2 780 000 ₽
2-комн. квартира
Оренбургская обл, г Новотроицк, ул Советская, д 63

3 200 000 ₽
Дом
Оренбургская обл, г Новотроицк, ул Грибоедова

7 299 000 ₽
2-комн. квартира
Россия, Оренбургская обл, Оренбург, ул. Салмышская,67
5 550 000 ₽
3-комн. квартира

2 700 000 ₽
Земельный участок
Россия, Оренбургская обл, Приютово, ул. Полевая,209а

2 350 000 ₽
2-комн. квартира
Оренбургская обл, г Гай, ул Молодёжная, д 53

2 300 000 ₽
2-комн. квартира
Оренбургская обл, г Гай, ул Ленина, д 29

2 650 000 ₽
Дом
Оренбургская обл, г Новотроицк, ул Садовая

3 550 000 ₽
2-комн. квартира
Россия, Оренбургская обл, Орск, Крайняя 44а

1 400 000 ₽
2-комн. квартира
Оренбургская обл, г Новотроицк, ул Марии Корецкой, д 3
25 000 ₽
Сад

7 500 000 ₽
Дом
Россия, Оренбургская обл, Оренбург, ул. Ломоносова