АН АДРЕСА
a.borisova-adresa@yandex.ru
Скажите продавцу, что вы нашли объявление на 156.ru
1
/
3
9 161 690 ₽
15
Оренбург
АН АДРЕСА
Документы готовы, быстрый выход на сделку!!!!ДоступностьСемейная ипотека 6 %, сельская ипотека 3 %
Наши дома подходят под субсидированные ипотечные программы, военной ипотекой, различными жилищными сертификатами и материнским капиталом. Все это делает покупку максимально удобной и комфортной для наших клиентов, а самое главное выгодной!
Материал стен: газоблоки
Терраса или веранда: покрыты керамогранитом
Лестница: металлический каркас
Санузел: на 1 и 2 этажах
Коммуникации: электричество, газ, отопление, канализация
Ремонт: улучшенная предчистовая отделка
Интернет и ТВ: Wi-Fi, телевидение
Парковка: парковочное место
Транспортная доступность: асфальтированная дорога, остановка общественного транспорта
Инфраструктура: магазин, аптека, детский сад, школа
Расстояние до центра города: 12 км
В подарок: территория участка огорожена забором, смонтированы въездные ворота под автомобиль и калитка с электромеханическим замком, уличное освещение, установлен почтовый ящик. Вокруг дома залита бетонная отмостка, бетонная дорожка и площадка под автомобиль, выполнено уличное освещение.
Внутренная отделка
стены оштукатурены по маякам, отшпатлеваны под обои
полы – утепленная армированная бетонная стяжка с последующим устройством наливного пола
установлена пластиковая подоконная доска, дверные и оконные откосы облагорожены
Качество
Наши дома построены из заводского газобетонного блока КОТТЕДЖ, а фасад облицован керамическим кирпичом. Установлены качественные ПВХ окна с двойным мультифункциональным стеклопакетом и надежная металлическая дверь с терморазрывом. В качестве кровельного покрытия выбрана двухслойная гибкая черепица Shinglas от компании ТЕХНОНИКОЛЬ, карниз подшит металлическими софитами, смонтирована водосточная система производства ТЕХНОНИКОЛЬ.
Инфраструктура
Поселок имеет развитую инфраструктуру, в шаговой доступности школа, детский сад, сетевые магазины, аптеки и ФАП. Поселок имеет хорошую транспортную доступность, ходит общественный транспорт. Сельская прописка и тарифы гарантируют вам экономию бюджета на обслуживание дома.
ОТ НАС: помощь в одобрении ипотеки ,полное юридическое сопровождение, помощь в продаже вашей недвижимости, работа с сертификатами.ПРОСМОТР В УДОБНОЕ ДЛЯ ВАС ВРЕМЯ, ПО ПРЕДВАРИТЕЛЬНОЙ ДОГОВОРЕННОСТИ!
ID объекта в нашей базе: 1537
Адрес
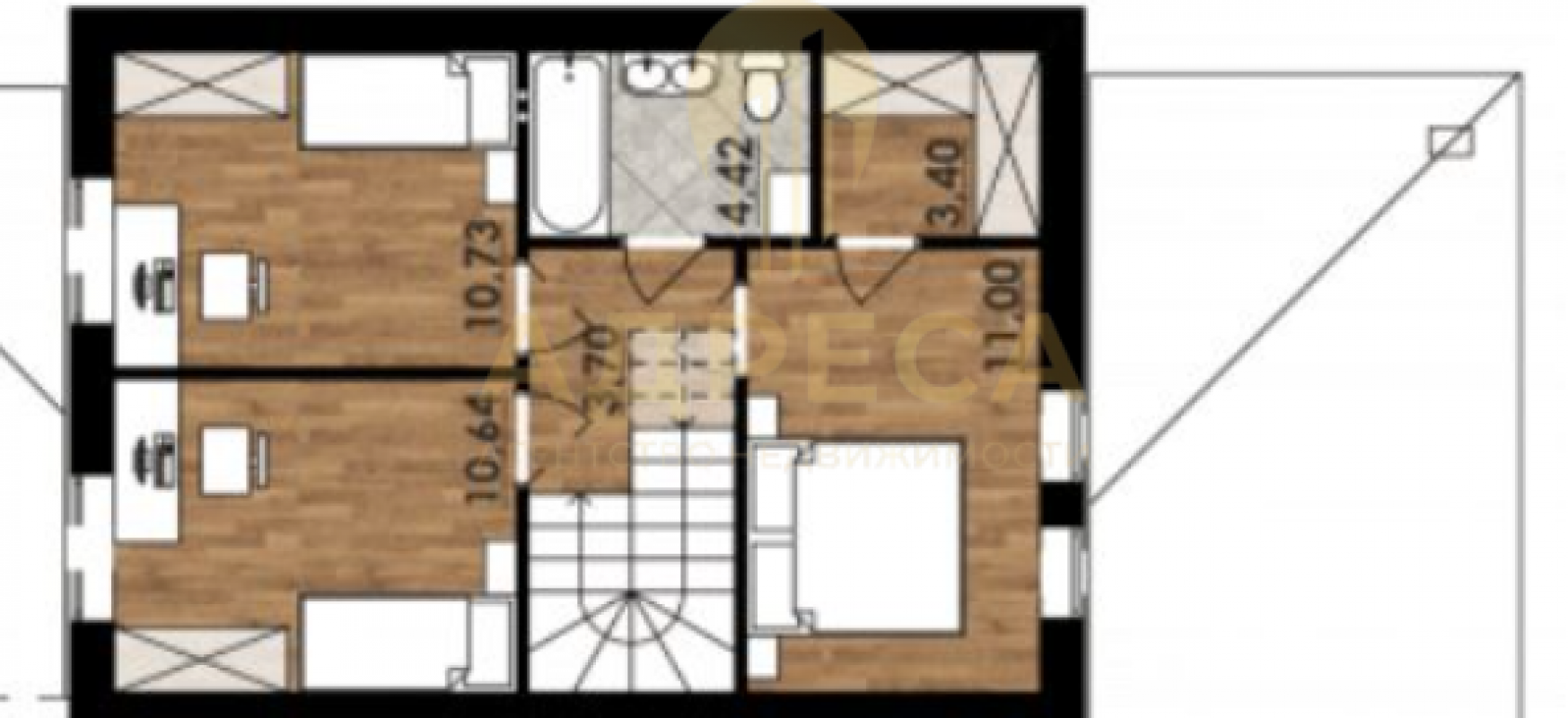
Этажность
Площадь
Россия, Оренбургская обл, Оренбург, 41 а
2
102
ID объявления
Обновлено
Создано
Действительно до
868308
2026-04-24 05:31:45
2026-04-24 05:31:45
2026-07-23 05:31:45

2 700 000 ₽
3-комн. квартира
Оренбургская обл., г. Новотроицк, ул. Винокурова, д. 12

6 299 000 ₽
Дом
Россия, Оренбургская обл, Оренбург, р-н Сакмарский, СНТ "Сокол", ул. 4А, д.885

7 399 000 ₽
2-комн. квартира
Россия, Оренбургская обл, Оренбург, ул. Салмышская,34к6

9 000 000 ₽
Дом
Россия, Оренбургская обл, Оренбург, Ивановский сельсовет,п.Приуралье,ул.Рублёва
1 ₽
Земельный участок
Оренбургская обл, г Новотроицк

750 000 ₽
Гараж

950 000 ₽
Земельный участок
Россия, Оренбургская обл, Орск, ул. Булатова

700 000 ₽
Дом
Оренбургская обл, Гайский р-н, село Пласковское

3 250 000 ₽
3-комн. квартира
Оренбургская обл, г Новотроицк, ул Уральская, д 22

1 100 000 ₽
1-комн. квартира
Оренбургская обл, г Новотроицк, ул Зеленая, д 15

2 600 000 ₽
3-комн. квартира
Оренбургская обл, г Новотроицк, Студенческий пер, д 8

450 000 ₽
Гараж
Оренбургская обл, г Новотроицк, ул Фрунзе

5 500 000 ₽
Помещение

1 200 000 ₽
1-комн. квартира
Оренбургская обл, г Новотроицк, ул Комарова, д 4

3 500 000 ₽
3-комн. квартира
Оренбургская обл, г Новотроицк, ул Советская, д 142

8 999 000 ₽
Дом
Россия, Оренбургская обл, Оренбург, Рублева
220 ₽
Сад

4 610 000 ₽
1-комн. квартира
Россия, Оренбургская обл, Оренбург, пер. Слесарный,7

2 300 000 ₽
Дом
Оренбургская обл, г Новотроицк, ул Степная
1 450 000 ₽
1-комн. квартира
Оренбургская обл, г Новотроицк, ул Советская, д 78

3 330 000 ₽
2-комн. квартира

2 300 000 ₽
3-комн. квартира
Оренбургская обл, г Новотроицк, ул Советская, д 47

1 600 000 ₽
2-комн. квартира
Оренбургская обл, г Новотроицк, ул Советская, д 152

4 100 000 ₽
Дом
Россия, Оренбургская обл, Оренбург, г. Оренбург, с. Пруды, ул. Береговая 25, к.2