АН АДРЕСА
anufriev-adresa@yandex.ru
Скажите продавцу, что вы нашли объявление на 156.ru
1
/
3
7 870 000 ₽
22
Оренбург
АН АДРЕСА
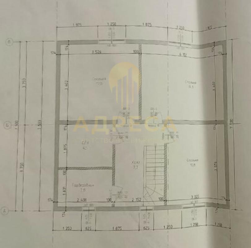
Продается дом в ЭЛИТНОЙ части поселка Кушкуль, по адресу: улица Земская 19.Площадь дома 104 м.кв.Площадь участка 10сот.Газоснабжение: центральное.Водоснабжение: скважина 14м, в доме (есть возможность подключения к центральному)Водоотведение: локальное 4кольца по 1,5м (есть возможность подключения к центральному)Материалы постройки: СИП-панели короед.Фундамент: сваи.Электрика вся по госту, доступ ко всем коробкам.Также максимально доступ ко всем коммуникациям водоотвода.Отопление газ.Состояние ремонта на фото, но лучше посмотреть в живую.Инфраструктура: Школа № 21,так-же имеются сетевые магазины.Возникли вопросы звоните, отвечу.Обременений нет.Просмотр по договоренности в удобное время.
✅ Предоставление консультаций по вопросам, связанным с покупкой недвижимости, в том числе с использованием кредитных средств, жилищных сертификатов, материнского (семейного) капитала.
✅ Помощь в формировании пакета документов (для каждого объекта индивидуально), необходимых для оформления сделки купли-продажи.
✅ Подбор индивидуальной программы кредитования, согласование в банках ипотечной заявки и объекта, на наиболее выгодных для заемщика условиях.
✅ ЭКСКЛЮЗИВНО: ипотека без справок и подтверждения дохода; одобрение ипотеки при отсутствии первоначального взноса (трейд-ин); доступна опция понижения ставки по ипотеке, применение скидки от нашего агентства; проведение сделки дистанционно.
✅ Наш офис ул. Восточная 42/3 АН АДРЕСА
ID объекта в нашей базе: 1114
Тип недвижимости
Адрес
Этажность
Площадь
Дом
Россия, Оренбургская обл, Оренбург, Земская 19
2
104
ID объявления
Обновлено
Создано
Действительно до
868251
2026-04-24 05:20:32
2026-04-24 05:20:32
2026-07-23 05:20:32

550 000 ₽
Дом
Россия, Оренбургская обл, Кумак, ул. Комсомольская,101
договорная
Сад
Новотроицк , сады №8

3 100 000 ₽
2-комн. квартира
Оренбургская обл, г Новотроицк, пл Ленина, д 6

850 000 ₽
Дом
Россия, Оренбургская обл, Татищево, ул. Советская,28

12 345 ₽
Сад

750 000 ₽
Земельный участок
Россия, Оренбургская обл, Казачий, ул. Горная, уч.8 стр.А

1 850 000 ₽
Дом
Россия, Оренбургская обл, Оренбург, ул. Фрунзе 40

4 610 000 ₽
1-комн. квартира
Россия, Оренбургская обл, Оренбург, пер. Слесарный,7
450 000 ₽
Земельный участок

8 300 000 ₽
Дом
Россия, Оренбургская обл, Ивановка, ул. Новороссийская,54

1 200 000 ₽
1-комн. квартира
Оренбургская обл, г Новотроицк, ул Советская, д 132

3 700 000 ₽
3-комн. квартира
Оренбургская обл, г Новотроицк, ул Уральская, д 23
145 000 ₽
Гараж

2 950 000 ₽
2-комн. квартира
Оренбургская обл, г Новотроицк, ул Комарова, д 9

370 000 ₽
Комната
Россия, Оренбургская обл, Орск, Станиславского 71а

5 000 000 ₽
Помещение
Оренбургская обл, г Новотроицк, пр-кт Металлургов

3 000 000 ₽
2-комн. квартира
Россия, Оренбургская обл, Орск, ул. Шелухина,8

3 500 000 ₽
3-комн. квартира

25 000 000 ₽
Помещение
Оренбургская обл, г Орск, ул Гомельская, д 77

8 500 000 ₽
Дом
Россия, Оренбургская обл, Оренбург, Рублева
1 450 000 ₽
1-комн. квартира
Оренбургская обл, г Новотроицк, ул Советская, д 78

3 500 000 ₽
3-комн. квартира
Оренбургская обл, г Новотроицк, пр-кт Металлургов, д 13

2 600 000 ₽
2-комн. квартира
Оренбургская обл, г Новотроицк, ул Советская, д 96

1 580 000 ₽
2-комн. квартира
Оренбургская обл, г Новотроицк, ул Марии Корецкой, д 9