Сергей Сергеевич
boltow@mail.ru
Скажите продавцу, что вы нашли объявление на 156.ru
1
/
3
25 750 000 ₽
38
Орск
Сергей Сергеевич
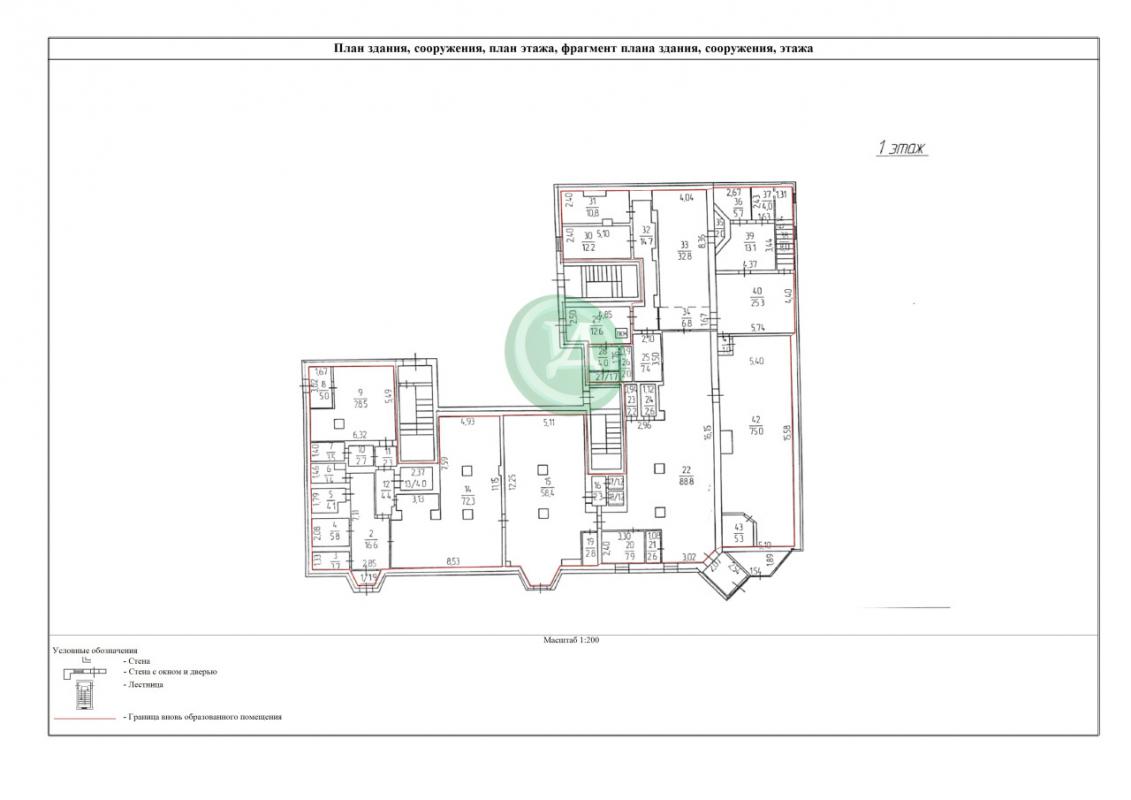
Продам нежилое помещение в котором расположен банкетные залы «Товиус», город Орск, ул. Чекасина/пер.Клубный д.30/16.
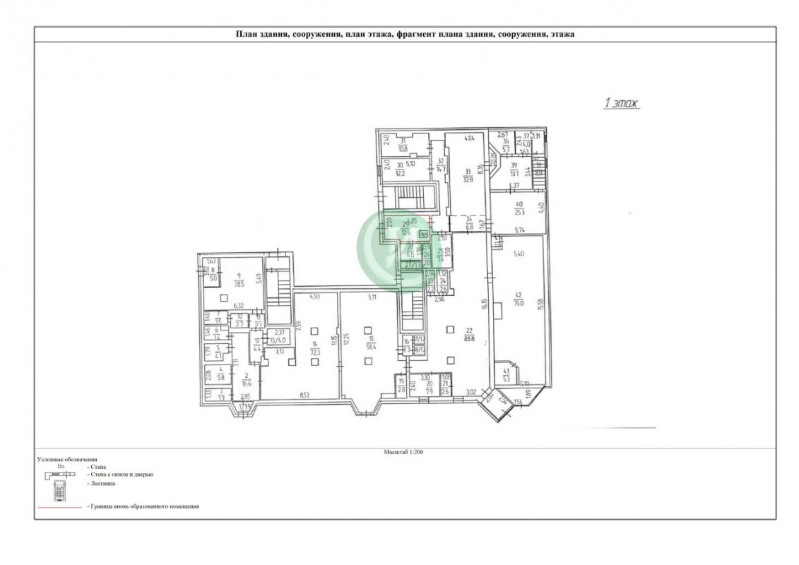
Банкетные залы «Товиус» — это действующий бизнес по предоставлению услуг общественного питания, проведения любых видов мероприятий от свадеб, юбилеев, корпоративов, поминальных обедов. Объект расположен на первом этаже многоквартирного жилого дома. Общая площадь первого этажа 560 кв.м. Имеется вся разрешительная документация.
В помещении 3 действующих банкетных зала с отдельными входами. Банкетные залы полностью оснащены и оборудованы всем необходимым для проведения любого рода мероприятий, при этом мероприятия могут проводится одновременно без визуального контакта посетителей. Вместимость банкетных залов составляет 25, 40, 100 человек. Имеется возможность приготовления блюд с огромным ассортиментом. Имеется достаточный штат поваров и обслуживающего персонала.
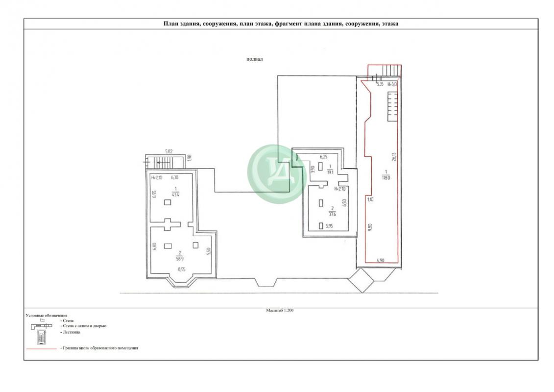
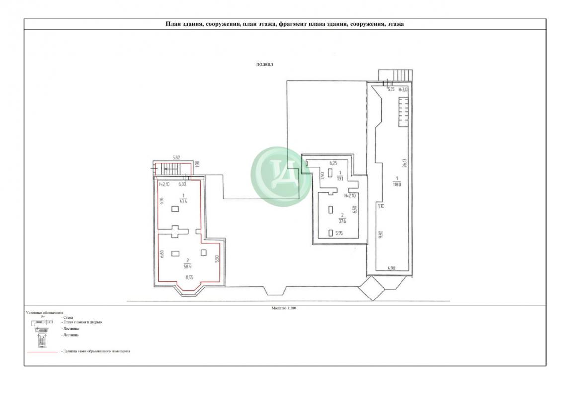
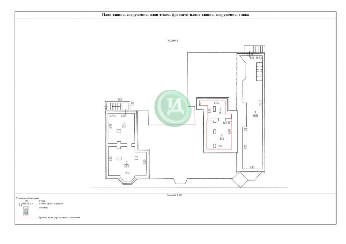
Помимо банкетных залов в помещении имеются 3 подвала площадью 118, 102, 69,3 кв. м. с отдельными входами, каждый из подвалов является отдельным изолированным помещением.
Также на 1 этаже имеется помещение магазина с отдельным входом, площадью 28,5 кв.м.
Передача в собственность помещения возможна без нарушения процесса оказания услуг, с передачей клиентов и всей необходимой информации. В настоящее время все банкетные залы забронированы для проведения мероприятий на несколько месяцев вперед.
Приобретая данный объект, вы приобретете отлично настроенный бизнес с хорошим доходом и прибылью.
Характеристики объекта:
- дом 1941 года постройки;
- общая площадь всех помещений с подвалами 849,6 кв.м.;
- нежилое помещение 1 этаж общая площадь 560 кв.м.;
- банкетные залы: № 1– 75 кв.м., банкетный зал № 2 – 58,4 кв.м., банкетный зал № 3 – 72,3 кв.м.;
- подвалы: № 1 – 118 кв.м., № 2 – 102 кв.м., № 3 – 69,3 кв.м.;
- кухонный узел -71,2 кв.м.;
- складские помещения – 12,2, 12,6, 10,8 кв.м.;
- кабинет, 7,9 кв.м.;
- электричество – 380 Вт.
- сан.узлы – 5 шт.;
- кондиционеры с рассчитанной под каждый зал мощностью;
- круглосуточная охрана, плюс тревожная кнопка;
- 4 отдельных входа;
- центральное отопление;
- водоснабжение – центральное;
- канализация – центральная;
- вытяжка принудительная;
- сигнализация охранно-пожарная;
- система видеонаблюдения;
- пластиковые окна;
- парковочные места;
- остается вся мебель и оборудование;
Документы полностью готовы к продаже. Полное бесплатное юридическое сопровождение сделки. Успей воспользоваться предложением.
ID объекта в нашей базе: 1229
Тип недвижимости
Адрес
Этажность
Этаж
Площадь
Помещение
Россия, Оренбургская обл, Орск, Оренбургская область, г. Орск ул.Чекасина/пер.Клубный д.30/26
2
1
560
ID объявления
Обновлено
Создано
Действительно до
866075
2026-04-20 06:21:02
2026-04-20 06:21:02
2026-07-19 06:21:02

2 800 000 ₽
2-комн. квартира

700 000 ₽
Дом
Оренбургская обл, Гайский р-н, село Пласковское

6 799 000 ₽
Дом
Россия, Оренбургская обл, Оренбург, ул. Северная

5 300 000 ₽
2-комн. квартира
Оренбургская обл, г Новотроицк, ул Зеленая, д 12А

4 490 000 ₽
4-комн. квартира
Новотроицк ул. Юных Ленинцев дом 20

3 400 000 ₽
3-комн. квартира
Россия, Оренбургская обл, Орск, ул. Братская,56 А

2 150 000 ₽
Дом
Россия, Оренбургская обл, Украинка, ул. Пролетарская,1А

6 500 000 ₽
Дом

295 000 ₽
Гараж
Оренбургская обл, г Новотроицк, ул Зеленая, д 20

договорная

договорная

5 350 000 ₽
2-комн. квартира
Россия, Оренбургская обл, Оренбург, ул. Ямашева,6

330 ₽
Гараж

1 600 000 ₽
1-комн. квартира
Оренбургская обл, г Новотроицк, ул Винокурова, д 12
800 ₽
Сад

7 000 000 ₽
3-комн. квартира
Россия, Оренбургская обл, Орск, Стартовая 23

5 300 000 ₽
2-комн. квартира
Россия, Оренбургская обл, Оренбург, ул. Планерная,4

2 900 000 ₽
3-комн. квартира
Оренбургская обл, г Новотроицк, ул Уральская, д 6А

8 000 000 ₽
Дом
Россия, Оренбургская обл, Ивановка, Оренбургский р-он, Ивановский сельсовет, ул. Ломоносова, д. 20
2 100 000 ₽
2-комн. квартира
Новотроицк, Пр-зд Монтажников 38

1 870 000 ₽
1-комн. квартира
Оренбургская обл, г Новотроицк, ул Есенкова, д 8
250 ₽
Сад

100 000 ₽
Сад

3 600 000 ₽
3-комн. квартира
Оренбургская обл, г Новотроицк, ул Уральская, д 26