АН АДРЕСА
Kotikova-adresa@yandex.ru
Скажите продавцу, что вы нашли объявление на 156.ru
1
/
3
6 799 000 ₽
19
Оренбург
АН АДРЕСА
!!! ДОМА ОТ ЗАСТРОЙЩИКА!!!ИПОТЕЧНАЯ СТАВКА:СЕМЕЙНАЯ ИПОТЕКА 6%СЕЛЬСКАЯ ИПОТЕКА 3%ЛЮБАЯ ФОРМА РАСЧЕТА( любой сертификат,материнский капитал,обычная ипотека, семейная ипотека, наличный расчет).В ПРОДАЖЕ ДОМА 130 М 6 СотЗАБОР по всему периметру участка!
поселок МАРЬИНО-НЕЗАТОПЛЯЕМАЯ ЗОНА!
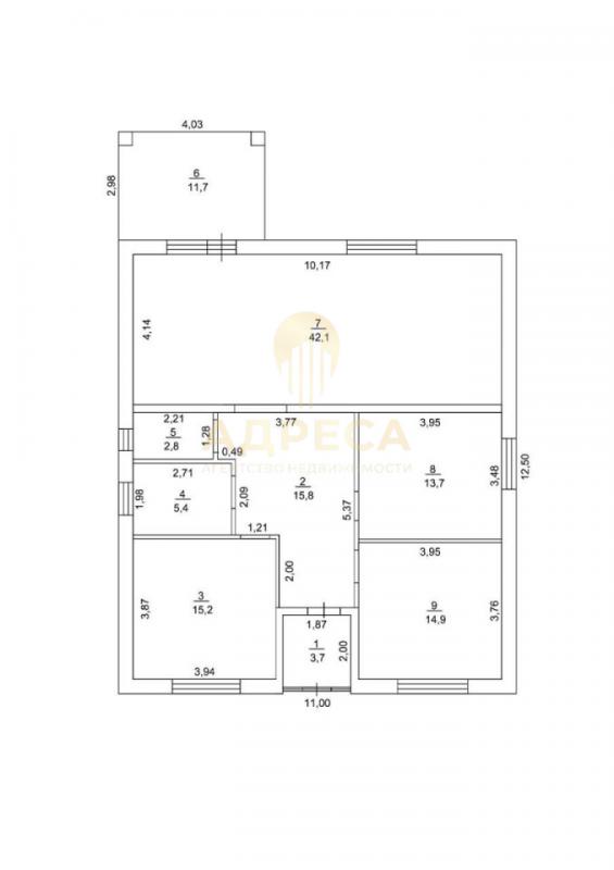
Общая площадь дома 130 мКухня-гостинная 42м с выходом на террасуСпальни-3Открытый большой холС/У+котельнаяТамбур закрытыйКачественная входная дверь с термо-разрывомСтены оштукатурены под обои,кeрaмзитo-блок , утеплитель 10, кирпич.Потолок подшит плитами ОSВ.Откосы, подоконники подготовлены.Радиаторы отопления во всех комнатах, теплый пол по всему периметру дома.Двухконтурный газовый котел.Скважина, септик -3 кольца.Фундaмeнт свaйнo лентoчный,глубина свай 2 м,шаг 1,5м, завoдской бeтoн!Крыша-Металлoчерепица с утеплением,отмостка.
Наша компания провела профессиональную юридическую проверку объекта недвижимости, гарантируя вам защиту от потенциальных рисков.
Сделка будет осуществлена с полной юридической прозрачностью, обеспечивая вас надежным и безопасным приобретением жилья.Офис продаж ул.Восточная 42/3Ваш персональный специалист Котикова Юлия
ID объекта в нашей базе: 1716
Тип недвижимости
Адрес
Этажность
Площадь
Дом
Россия, Оренбургская обл, Оренбург, ул. Северная
1
130
ID объявления
Обновлено
Создано
Действительно до
864583
2026-04-18 05:36:48
2026-04-18 05:36:48
2026-07-17 05:36:48
500 000 ₽
Сад

600 000 ₽
Земельный участок
Россия, Оренбургская обл, Орск, ул. Каспийская ул. Тихорецкая участок 61
70 000 ₽
Гараж
Оренбургская обл, г Новотроицк, ул Губина

1 300 000 ₽
Дача
Оренбургская обл, г Новотроицк, ст Губерля, тер. СНТ № 10 НМС ст. Губерля
договорная
Помещение
Оренбургская обл, Адамовский р-н, поселок Адамовка, ул Автомобилистов, д 2А

2 300 000 ₽
Дом
Оренбургская обл, г Гай, поселок Калиновка,

3 000 000 ₽
Дом

договорная

4 200 000 ₽
3-комн. квартира
Россия, Оренбургская обл, Орск, пер. Театральный,1

950 000 ₽
1-комн. квартира
Оренбургская обл, г Новотроицк, ул Губина, д 6

3 500 000 ₽
3-комн. квартира
Россия, Оренбургская обл, Орск, пр-кт. Ленина,95

1 100 000 ₽
2-комн. квартира
Оренбургская обл, г Новотроицк, ул Губина, д 18

6 800 000 ₽
Дом
Россия, Оренбургская обл, Оренбург, г. Оренбург, пос. Весенний, СНТСН Карачи, ул. Буравиков, 209
2 350 000 ₽
2-комн. квартира
Оренбургская обл, г Новотроицк, ул Юных Ленинцев, д 6

1 750 000 ₽
3-комн. квартира
Оренбургская обл, г Новотроицк, ул Железнодорожная, д 83

3 300 000 ₽
3-комн. квартира

2 100 000 ₽
2-комн. квартира
Оренбургская обл, г Новотроицк, Комсомольский пр-кт, д 28

договорная
11 000 000 ₽
Земельный участок
Оренбургская обл, г Новотроицк, ул Советская

2 800 000 ₽
2-комн. квартира
Оренбургская обл, г Новотроицк, ул Есенкова, д 10

1 000 000 ₽
1-комн. квартира
Россия, Оренбургская обл, Орск, ул. Юлина,10

2 750 000 ₽
3-комн. квартира
Оренбургская обл, г Новотроицк, ул Советская, д 61

3 200 000 ₽
4-комн. квартира
Оренбургская обл, г Новотроицк, ул Мира, д 3

950 000 ₽
Дом
Россия, Оренбургская обл, Оренбург, с.Беляевка