АН АДРЕСА
a.borisova-adresa@yandex.ru
Скажите продавцу, что вы нашли объявление на 156.ru
1
/
3
9 161 690 ₽
12
Оренбург
АН АДРЕСА
Документы готовы, быстрый выход на сделку!!!!ДоступностьСемейная ипотека 6 %, сельская ипотека 3 %
Наши дома подходят под субсидированные ипотечные программы, военной ипотекой, различными жилищными сертификатами и материнским капиталом. Все это делает покупку максимально удобной и комфортной для наших клиентов, а самое главное выгодной!
Материал стен: газоблоки
Терраса или веранда: покрыты керамогранитом
Лестница: металлический каркас
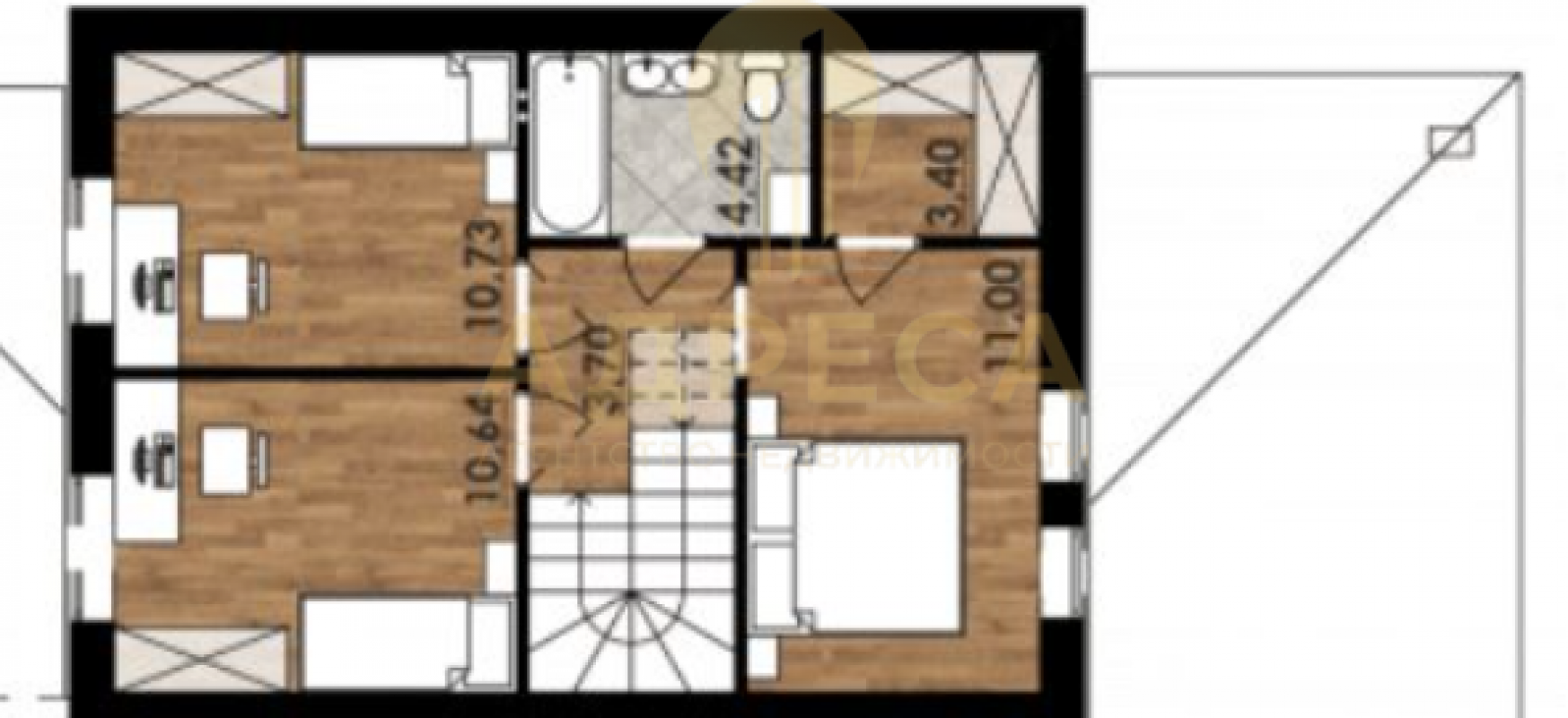
Санузел: на 1 и 2 этажах
Коммуникации: электричество, газ, отопление, канализация
Ремонт: улучшенная предчистовая отделка
Интернет и ТВ: Wi-Fi, телевидение
Парковка: парковочное место
Транспортная доступность: асфальтированная дорога, остановка общественного транспорта
Инфраструктура: магазин, аптека, детский сад, школа
Расстояние до центра города: 12 км
В подарок: территория участка огорожена забором, смонтированы въездные ворота под автомобиль и калитка с электромеханическим замком, уличное освещение, установлен почтовый ящик. Вокруг дома залита бетонная отмостка, бетонная дорожка и площадка под автомобиль, выполнено уличное освещение.
Внутренная отделка
стены оштукатурены по маякам, отшпатлеваны под обои
полы – утепленная армированная бетонная стяжка с последующим устройством наливного пола
установлена пластиковая подоконная доска, дверные и оконные откосы облагорожены
Качество
Наши дома построены из заводского газобетонного блока КОТТЕДЖ, а фасад облицован керамическим кирпичом. Установлены качественные ПВХ окна с двойным мультифункциональным стеклопакетом и надежная металлическая дверь с терморазрывом. В качестве кровельного покрытия выбрана двухслойная гибкая черепица Shinglas от компании ТЕХНОНИКОЛЬ, карниз подшит металлическими софитами, смонтирована водосточная система производства ТЕХНОНИКОЛЬ.
Инфраструктура
Поселок имеет развитую инфраструктуру, в шаговой доступности школа, детский сад, сетевые магазины, аптеки и ФАП. Поселок имеет хорошую транспортную доступность, ходит общественный транспорт. Сельская прописка и тарифы гарантируют вам экономию бюджета на обслуживание дома.
ОТ НАС: помощь в одобрении ипотеки ,полное юридическое сопровождение, помощь в продаже вашей недвижимости, работа с сертификатами.ПРОСМОТР В УДОБНОЕ ДЛЯ ВАС ВРЕМЯ, ПО ПРЕДВАРИТЕЛЬНОЙ ДОГОВОРЕННОСТИ!
ID объекта в нашей базе: 1537
Адрес
Этажность
Площадь
Россия, Оренбургская обл, Оренбург, 41 а
2
102
ID объявления
Обновлено
Создано
Действительно до
864549
2026-04-18 05:31:22
2026-04-18 05:31:22
2026-07-17 05:31:22

2 600 000 ₽
3-комн. квартира
Оренбургская обл, г Новотроицк, Студенческий пер, д 8

4 500 000 ₽
3-комн. квартира
630 000 ₽
Земельный участок
п. Солнечный

2 050 000 ₽
2-комн. квартира
Оренбургская обл, г Новотроицк, ул Гагарина, д 8

1 600 000 ₽
3-комн. квартира
Россия, Оренбургская обл, Орск, ул. Новая Биофабрика,84

1 450 000 ₽
1-комн. квартира
Оренбургская обл, г Новотроицк, ул Советская, д 78

6 000 000 ₽
Дом

3 600 000 ₽
Земельный участок
Оренбургская обл, г Орск, ул Строителей/площадь Гагарина

1 500 000 ₽
Дом
Россия, Оренбургская обл, Красный Коммунар, ул. Монтажников,29

1 ₽
Земельный участок

1 600 000 ₽
2-комн. квартира
Оренбургская обл, г Новотроицк, ул Гагарина, д 14

3 400 000 ₽
2-комн. квартира
1 300 000 ₽
2-комн. квартира
Оренбургская обл, г Гай, ул Ленина, д 29
70 000 ₽
Гараж
Оренбургская обл, г Новотроицк, ул Губина

2 200 000 ₽
Помещение
Оренбургская обл, г Гай, ул Ленина, д 23

29 000 000 ₽
Помещение
Оренбургская обл, г Новотроицк, ул Ломоносова, д 44

1 850 000 ₽
1-комн. квартира
Россия, Оренбургская обл, Сакмара, ул. Пугачева,38А

6 100 000 ₽
Дом
Россия, Оренбургская обл, Зауральный, ул. Мирная,5

1 750 000 ₽
2-комн. квартира

730 000 ₽
Дом
Оренбургская обл, г Новотроицк, поселок Аккермановка, ул Центральная

350 000 ₽
Комната
Оренбургская обл, г Новотроицк, ул Мичурина

6 549 000 ₽
3-комн. квартира
Россия, Оренбургская обл, Оренбург, ул. Чкалова,70

6 900 000 ₽
3-комн. квартира
Россия, Оренбургская обл, Оренбург, ул. Рокоссовского,3

70 000 ₽
Сад