АН АДРЕСА
abbasova-adresa@yandex.ru
Скажите продавцу, что вы нашли объявление на 156.ru
1
/
3
12 900 000 ₽
8
Южный Урал
АН АДРЕСА
▎Ваш идеальный дом в поселке "Южный Урал"! Мечтаете о тихой и спокойной жизни за городом, но с городским комфортом? Этот просторный двухэтажный дом в поселке "Южный Урал" – идеальный вариант для вас!
▎Описание дома:
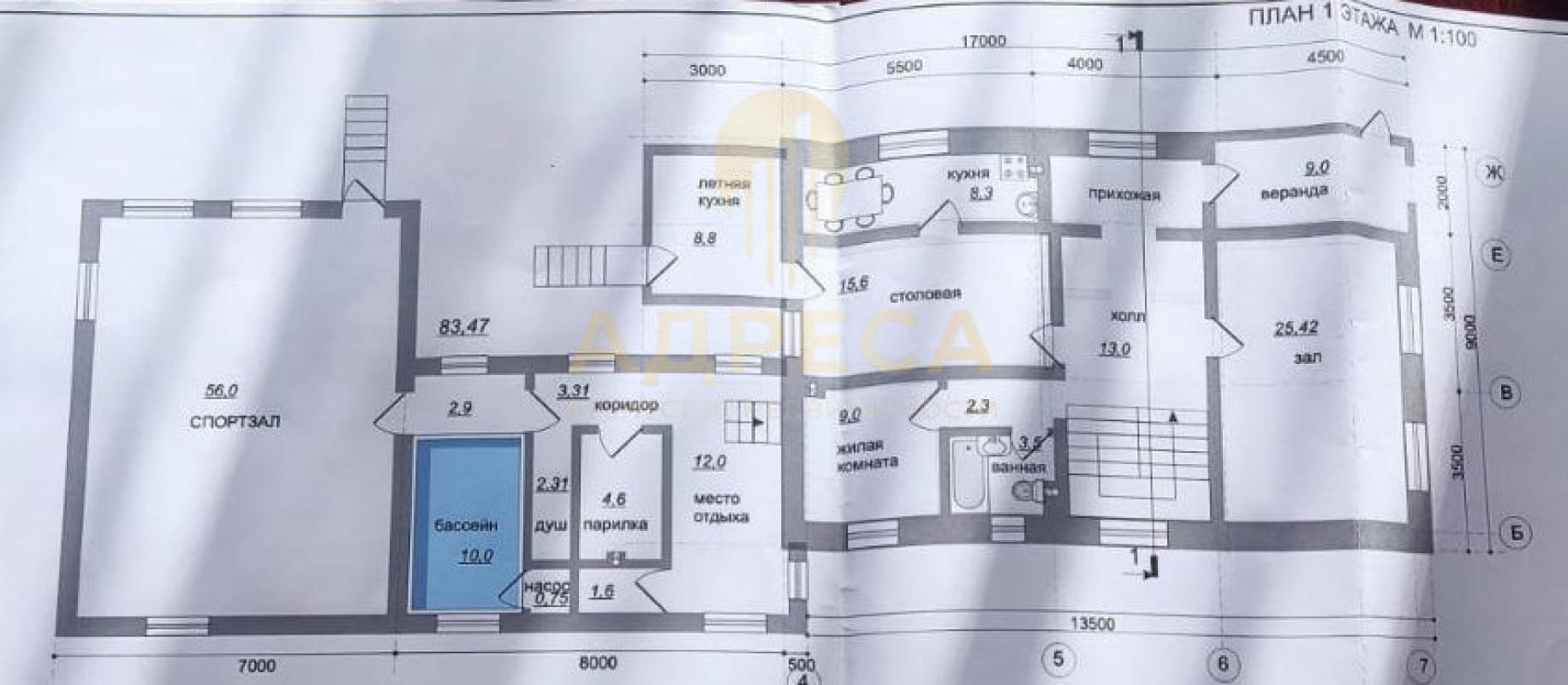
Двухэтажный дом с полуподвальным помещением:
Первый этаж:
Гостиная: Просторная и уютная, идеально подходит для теплых семейных вечеров.
Кухня-столовая: Удобное место с большим столом для праздничных обедов и душевных посиделок.
Дополнительная комната или гардеробная: Возможность адаптации под ваши нужды.
Санузел: Удобное размещение на первом и втором этажах.
Коридор: Простой и просторный, создающий атмосферу уюта.
Полуподвальное помещение: Две комнаты для развлечений, кладовая и котельная с выходом в банный комплекс – все для комфортного проживания вашей семьи.
Внутренний двор: Удобный выход из кухни, гостиной и банного комплекса для приятных прогулок и семейных посиделок в уютной беседке.
Второй этаж: Четыре комнаты:
– Детские комнаты: Созданы для счастливого детства ваших детей.
– Взрослая спальня: Место для спокойного и комфортного отдыха.
Банный комплекс: Состоит из комнаты отдыха, парной на дровах, душевой и большого бассейна.
Отдельно стоящий гараж:
На 2 автомобиля, с установленными рольставнями для защиты от непогоды.
Дополнительные преимущества:
Теплый пол по всему периметру первого этажа.
Готовность к проживанию: Дом укомплектован всей необходимой мебелью, техникой и четырьмя сплит-системами.
• Автономная канализация переливного типа: Три септика, позволяющие забыть о проблемах с отводом сточных вод.
Земельный участок: 12.5 соток, предоставляющий простор для реализации ваших идей, включая уютный сад с различными насаждениями.
Удобное расположение: Поселок "Южный Урал" находится всего в 10 км от центра города, обеспечивая легкий доступ ко всей городской инфраструктуре.
Этот шикарный дом — ваш шанс на жизнь в гармонии с природой, не отказываясь от удобств городской жизни. Не упустите возможность стать его владельцем!
ID объекта в нашей базе: 1811
Тип недвижимости
Адрес
Этажность
Площадь
Дом
Россия, Оренбургская обл, Южный Урал, ул. Пушкина, 9
2
235
ID объявления
Обновлено
Создано
Действительно до
863351
2026-04-16 05:44:08
2026-04-16 05:44:08
2026-07-15 05:44:08

5 000 000 ₽
2-комн. квартира
Оренбургская обл, г Новотроицк, ул Советская, д 66

6 500 000 ₽
Дом
Россия, Оренбургская обл, Оренбург, Array

1 500 000 ₽
1-комн. квартира
Оренбургская обл, г Новотроицк, ул Железнодорожная, д 65
1 000 000 ₽
Дом
Оренбургская обл, Кувандыкский р-н, село Сара

1 580 000 ₽
2-комн. квартира
Оренбургская обл, г Новотроицк, ул Есенкова, д 4

3 000 000 ₽
2-комн. квартира
Россия, Оренбургская обл, Орск, ул. Братская,56 А

2 700 000 ₽
3-комн. квартира
Оренбургская обл., г. Новотроицк, ул. Винокурова, д. 12

3 299 000 ₽
Дом
Россия, Оренбургская обл, Газовик, ул. Тупиковая

1 600 000 ₽
3-комн. квартира
Россия, Оренбургская обл, Орск, ул. Новая Биофабрика,84

3 250 000 ₽
3-комн. квартира
Оренбургская обл, г Новотроицк, Комсомольский пр-кт, д 48

14 000 000 ₽
Дом
Россия, Оренбургская обл, Подгородняя Покровка, ул. Переволоцкая,106

1 000 000 ₽
Земельный участок
Россия, Оренбургская обл, Оренбург, СНТ Аэлита, ул. Зеленая

1 700 000 ₽
1-комн. квартира
Оренбургская обл, г Новотроицк, Комсомольский пр-кт, д 20
1 599 000 ₽
Земельный участок
Россия, Оренбургская обл, Зауральный, ул. Мирная,2

4 201 950 ₽
1-комн. квартира
Россия, Оренбургская обл, Оренбург, ул. Рокоссовского,25/1

1 700 000 ₽
2-комн. квартира
Оренбургская обл, г Новотроицк, ул Зеленая, д 57А

1 950 000 ₽
2-комн. квартира
Оренбургская обл, г Новотроицк, ул Советская, д 136
4 200 000 ₽
3-комн. квартира
Оренбургская обл, г Новотроицк, ул Пушкина, д 23

13 860 000 ₽
3-комн. квартира
Россия, Оренбургская обл, Оренбург, ул. Цвиллинга,68

3 300 000 ₽
3-комн. квартира
Россия, Оренбургская обл, Орск, пр-кт. Орский,9А

2 600 000 ₽
4-комн. квартира
Оренбургская обл, г Новотроицк, ул Юных Ленинцев, д 12

8 000 000 ₽
Дом
Россия, Оренбургская обл, Оренбург, ул. Луговая

2 850 000 ₽
2-комн. квартира
Оренбургская обл, г Новотроицк, ул Уральская

7 700 000 ₽
3-комн. квартира
Оренбургская обл, г Новотроицк, ул Советская, д 66