АН АДРЕСА
abbasova-adresa@yandex.ru
Скажите продавцу, что вы нашли объявление на 156.ru
1
/
3
12 900 000 ₽
8
Южный Урал
АН АДРЕСА
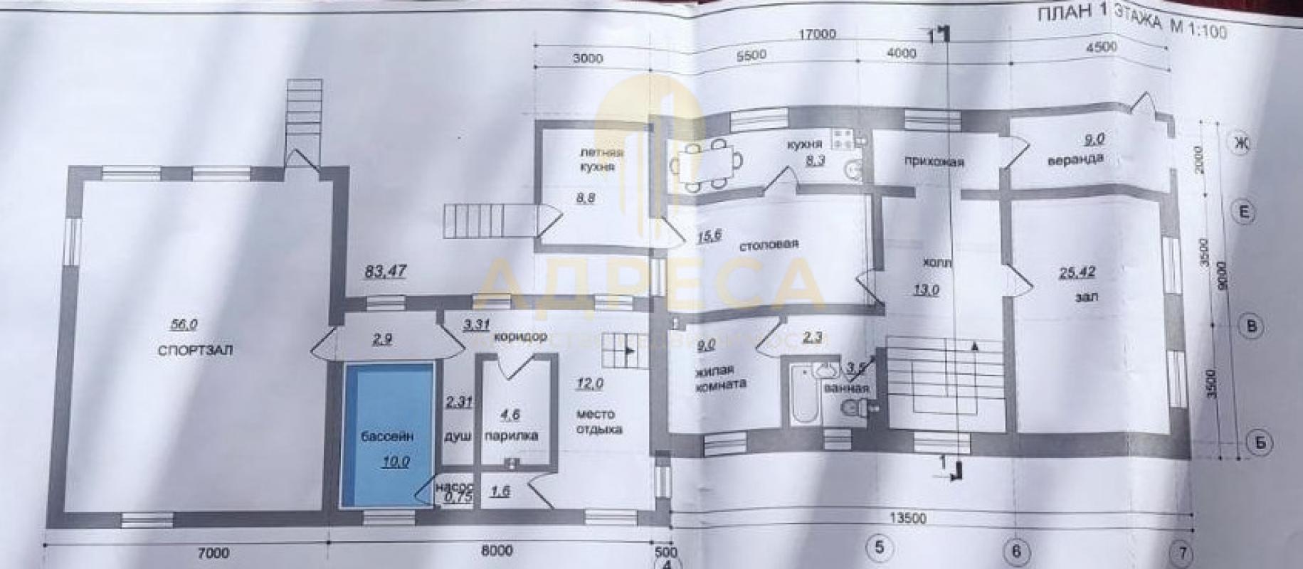
▎Ваш идеальный дом в поселке "Южный Урал"! Мечтаете о тихой и спокойной жизни за городом, но с городским комфортом? Этот просторный двухэтажный дом в поселке "Южный Урал" – идеальный вариант для вас!
▎Описание дома:
Двухэтажный дом с полуподвальным помещением:
Первый этаж:
Гостиная: Просторная и уютная, идеально подходит для теплых семейных вечеров.
Кухня-столовая: Удобное место с большим столом для праздничных обедов и душевных посиделок.
Дополнительная комната или гардеробная: Возможность адаптации под ваши нужды.
Санузел: Удобное размещение на первом и втором этажах.
Коридор: Простой и просторный, создающий атмосферу уюта.
Полуподвальное помещение: Две комнаты для развлечений, кладовая и котельная с выходом в банный комплекс – все для комфортного проживания вашей семьи.
Внутренний двор: Удобный выход из кухни, гостиной и банного комплекса для приятных прогулок и семейных посиделок в уютной беседке.
Второй этаж: Четыре комнаты:
– Детские комнаты: Созданы для счастливого детства ваших детей.
– Взрослая спальня: Место для спокойного и комфортного отдыха.
Банный комплекс: Состоит из комнаты отдыха, парной на дровах, душевой и большого бассейна.
Отдельно стоящий гараж:
На 2 автомобиля, с установленными рольставнями для защиты от непогоды.
Дополнительные преимущества:
Теплый пол по всему периметру первого этажа.
Готовность к проживанию: Дом укомплектован всей необходимой мебелью, техникой и четырьмя сплит-системами.
• Автономная канализация переливного типа: Три септика, позволяющие забыть о проблемах с отводом сточных вод.
Земельный участок: 12.5 соток, предоставляющий простор для реализации ваших идей, включая уютный сад с различными насаждениями.
Удобное расположение: Поселок "Южный Урал" находится всего в 10 км от центра города, обеспечивая легкий доступ ко всей городской инфраструктуре.
Этот шикарный дом — ваш шанс на жизнь в гармонии с природой, не отказываясь от удобств городской жизни. Не упустите возможность стать его владельцем!
ID объекта в нашей базе: 1811
Тип недвижимости
Адрес
Этажность
Площадь
Дом
Россия, Оренбургская обл, Южный Урал, ул. Пушкина, 9
2
235
ID объявления
Обновлено
Создано
Действительно до
862760
2026-04-15 05:44:40
2026-04-15 05:44:40
2026-07-14 05:44:40

1 400 000 ₽
1-комн. квартира
Гай, ул.Молодежная, д.71А
350 000 ₽
Гараж
, ул Зеленая

2 300 000 ₽
1-комн. квартира
Россия, Оренбургская обл, Оренбург, ул. Лесозащитная,8

9 000 000 ₽
Дом
Россия, Оренбургская обл, Орск, ул. Цветочная

2 350 000 ₽
Гараж
Россия, Оренбургская обл, Оренбург, ул. Просторная,8

4 500 000 ₽
Дом
Россия, Оренбургская обл, Орск, Орск переулок тихий д 8

4 900 000 ₽
3-комн. квартира
Оренбургская обл, г Новотроицк, ул Лысова, д 10

350 000 ₽
Комната
Оренбургская обл, г Новотроицк, ул Мичурина

1 750 000 ₽
1-комн. квартира
Россия, Оренбургская обл, Орск, ул. Давыдова,4

3 000 000 ₽
2-комн. квартира
Оренбургская обл, г Новотроицк, ул Зеленая, д 29

8 700 000 ₽
Помещение
Оренбургская обл, г Новотроицк, Комсомольский пр-кт, д 4

1 200 000 ₽
1-комн. квартира
Оренбургская обл, г Новотроицк, пр-кт Металлургов, д 38

2 000 000 ₽
2-комн. квартира
Оренбургская обл, г Новотроицк, пр-кт Металлургов, д 28

4 480 000 ₽
3-комн. квартира
Оренбургская обл, г Новотроицк, ул Марии Корецкой, д 33А

1 700 000 ₽
3-комн. квартира
Оренбургская обл, г Новотроицк, ул Жукова, д 6
4 457 299 ₽
1-комн. квартира
, , ,

3 299 000 ₽
1-комн. квартира
Россия, Оренбургская обл, Оренбург, пр-кт. Гагарина,25Б

1 150 000 ₽
2-комн. квартира
Оренбургская обл, г Новотроицк, ул Гагарина, д 9

5 100 000 ₽
Дом
Оренбургская обл, г Орск, ул Бурденко

5 703 710 ₽
3-комн. квартира
Россия, Оренбургская обл, Нежинка, ул. Фестивальная,21/1

1 000 000 ₽
1-комн. квартира
Россия, Оренбургская обл, Орск, ул. Юлина,10

1 290 000 ₽
Сад

12 000 000 ₽
Помещение
Россия, Оренбургская обл, Орск, Малишевского 82

1 300 000 ₽
Дача
Оренбургская обл, г Новотроицк, ст Губерля, тер. СНТ № 10 НМС ст. Губерля