АН АДРЕСА
abbasova-adresa@yandex.ru
Скажите продавцу, что вы нашли объявление на 156.ru
1
/
3
9 800 000 ₽
9
Соловьевка
АН АДРЕСА
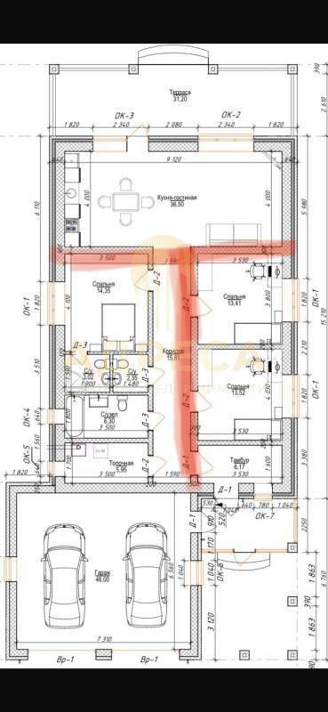
Открыта бронь на дом от надежного застройщика и Юридического лица на ул. Уютной в п. Соловьевка в новом жилом массиве! Интересный дизайн и продуманная планировка! Срок сдачи 30.08.2025 г!1 этажный, 155 м2 на участке 6,25 сотки. Просторная входная группа(холл), большая кухня-гостиная с панорамными окнами и выходом на террасу, три светлые спальни, топочная, 3 раздельных санузла и вместимый гараж 35 м2! Материал стен керамзитоблок. Наружные стены- 30 см, внутренние несущие-20 см. Утеплитель минеральная вата 10 см. Наружняя отделка- декоративная штукатурка + террасная доска.Фундамент: монолитный железобетонный ростверк на бурозаливных сваях. Все на металлической арматуре! Кровля: металлочерепица. Перекрытия- деревянные балки, теплоизоляция- минераловатный утеплитель 15 см.Двери: входная утепленная, металлическая дверь с терморазрывом по полотну и коробу. ПВХ дверь на террасу.Окна: ПВХ с 2-х камерными стеклопакетами, пластиковая подоконная доска и уличный металлический отлив.Автономная вода (скважина 51 м глубиной), канализация (септик 3 кольца диаметром 1.5 м), электричество. Монтаж системы отопления с установкой газового котла.Внутренняя отделка: стены оштукатурены по маякам, от шпаклеванные под обои. Под покраску стены не предусмотрены.Полы: утепленная армированная бетонная стяжка, толщиной 11-12 см. Теплый пол по всему дому. Финишное покрытие полусухая стяжка.Ограждение земельного участка с четырех сторон, материал- профлист. По периметру дома отмостка и бетонная дорожка. Въездная группа будет отсыпана щебнем. Таким образом Вы получаете готовый, огороженный участок с забетонированной площадкой для террасы и крыльца.Поселок Соловьевка растет и стремительно развивается! Вся инфрастуктура имеется. Школа, детский сад, магазины и автобусная остановка в шаговой доступности!Здесь все предусмотрено для комфортной жизни! От города 9 км, в 15 мин езды. Рядом располагаются поселок Зауральный и село Подгородняя Покровка! Более подробный рассказ о нем, материалах и ходе строительства, а также показ при личной встрече! Звоните в любое время.Есть варианты других домов с разными планировками! Можем построить под ваш индивидуальный проект!Рассмотрим все варианты расчета, ипотека, сертификаты. Семейная 6%!!!Полное юридическое сопровождение! Бесплатная консультация ипотечного брокера!Наш адрес ул. Восточная 42/3
ID объекта в нашей базе: 1203
Тип недвижимости
Адрес
Этажность
Площадь
Дом
Россия, Оренбургская обл, Соловьевка, ул. Степная
1
186.4
ID объявления
Обновлено
Создано
Действительно до
862628
2026-04-15 05:23:47
2026-04-15 05:23:47
2026-07-14 05:23:47

1 700 000 ₽
1-комн. квартира
Оренбургская обл, г Гай, ул Коммунистическая, д 6А

4 650 000 ₽
1-комн. квартира
Россия, Оренбургская обл, Оренбург, пер. Слесарный,7

1 100 000 ₽
1-комн. квартира
Россия, Оренбургская обл, Орск, пер. Косой,5

1 550 000 ₽
2-комн. квартира
Оренбургская обл, г Новотроицк, ул Марии Корецкой, д 25

7 000 000 ₽
Дом

4 990 000 ₽
1-комн. квартира
Россия, Оренбургская обл, Оренбург, ул. Просторная,4А

3 800 000 ₽
Помещение

370 000 ₽
Земельный участок
Россия, Оренбургская обл, Орск, п. Джанаталап

10 700 000 ₽
Дом

договорная

2 790 000 ₽
2-комн. квартира
Оренбургская обл, г Гай, ул Молодёжная, д 73

4 600 000 ₽
3-комн. квартира
Россия, Оренбургская обл, Оренбург, пер. Ярославский,5

3 500 000 ₽
3-комн. квартира
Россия, Оренбургская обл, Орск, пр-кт. Ленина,95

договорная

3 300 000 ₽
1-комн. квартира
Россия, Оренбургская обл, Оренбург, ул. Лабужского,20

2 970 000 ₽
2-комн. квартира
Россия, Оренбургская обл, Оренбург, пр-кт. Братьев Коростелевых,62
2 000 000 ₽
2-комн. квартира
Оренбургская обл, г Новотроицк, ул Советская, д 96

1 810 000 ₽
1-комн. квартира
Оренбургская обл, г Новотроицк, пр-кт Металлургов, д 8

1 700 000 ₽
2-комн. квартира
Оренбургская обл, г Новотроицк, Комсомольский пр-кт, д 48

1 850 000 ₽
Дом
Россия, Оренбургская обл, Оренбург, ул. Фрунзе 40

2 700 000 ₽
2-комн. квартира
Оренбургская обл, г Новотроицк, ул Пушкина, д 46А

5 600 000 ₽
Дом
Россия, Оренбургская обл, Орск, ул. Пятая Линия

800 000 ₽
2-комн. квартира
Россия, Оренбургская обл, Красный Коммунар, ул. Монтажников,19

2 200 000 ₽
Помещение
Оренбургская обл, г Гай, ул Ленина, д 23