АН АДРЕСА
zolotova-adresa@yandex.ru
Скажите продавцу, что вы нашли объявление на 156.ru
1
/
3
5 700 000 ₽
10
Красный Коммунар
АН АДРЕСА
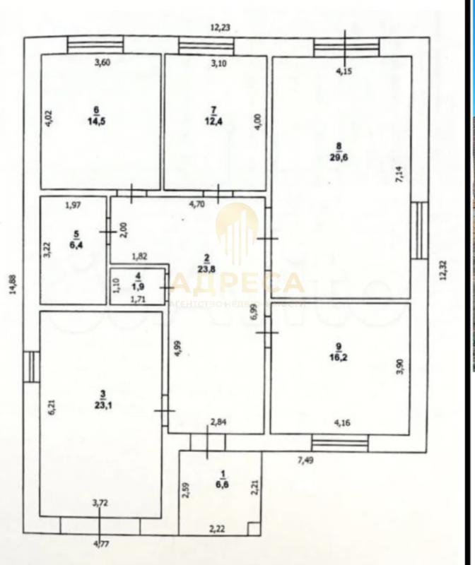
Мечта для большой семьи! Кирпичный дом 2 этажа с баней и гаражом на 10 сотках!Предлагается к продаже уютный и просторный дом для жизни вашей мечты! На участке в 10 соток есть всё для комфорта: гараж для вашего автомобиля, баня для отдыха и хозяйственные постройки.О доме:· Два этажа, крепкий кирпич, современная крыша из профлиста.· Все центральные коммуникации — заезжайте и живите!· Просторные комнаты, идеально для большой семьи.Внутри просторно и удобно:· 1 этаж: вас встретит большая гостиная, кухня, три спальни и санузел.· 2 этаж: уединенная спальня (с гардеробной), игровая и второй санузел.Идеальное предложение для тех, кто ценит пространство и уют!
Рассмотрим все виды расчета: сертификаты, ипотеку.Полное юридическое сопровождение!✅Если у Вас не продан объект недвижимости, но Вы хотите приобрести наш, мы готовы помочь Вам реализовать эту мечту! Наша компания всегда готова предложить Вам лучшие варианты решения, которые соответствуют Вашим потребностям!Звоните и записывайтесь на просмотр!!!
ID объекта в нашей базе: 1744
Тип недвижимости
Адрес
Этажность
Площадь
Дом
Россия, Оренбургская обл, Красный Коммунар, ул. Березка,3
2
132.1
ID объявления
Обновлено
Создано
Действительно до
860349
2026-04-11 05:39:18
2026-04-11 05:39:18
2026-07-10 05:39:18

450 000 ₽
Сад
Оренбургская обл, г Новотроицк

1 300 000 ₽
2-комн. квартира
Оренбургская обл, г Новотроицк, ул Мира, д 19

600 000 ₽
Дом
Россия, Оренбургская обл, Чебеньки, ул. Степная

9 161 690 ₽
Россия, Оренбургская обл, Оренбург, 41 а
150 000 ₽
Комната
Оренбургская обл, г Новотроицк, ул Пушкина, д 3

1 650 000 ₽
1-комн. квартира
Оренбургская обл, г Новотроицк, ул Зеленая, д 75А

5 100 000 ₽
Дом
Оренбургская обл, г Новотроицк, ул Рудницкого

900 000 ₽
Земельный участок
Россия, Оренбургская обл, Оренбург, Оренбургская область, г. Оренбург, С/Т Калина Красная, 380
1 000 000 ₽
Дом
Новотроицк ул. Рудницкого 99

4 300 000 ₽
Дом
Россия, Оренбургская обл, Орск, ул. Красногвардейская

1 800 000 ₽
1-комн. квартира
Оренбургская обл, г Новотроицк, ул Советская, д 57

295 000 ₽
Гараж
Оренбургская обл, г Новотроицк, ул Зеленая, д 20

5 500 000 ₽
2-комн. квартира
Оренбургская обл, г Новотроицк, ул Советская, д 85

4 500 000 ₽
Дом
Оренбургская обл, г Гай

3 500 000 ₽
2-комн. квартира
Гагарина 1а

2 050 000 ₽
3-комн. квартира

7 500 000 ₽
Дом
Россия, Оренбургская обл, Оренбург, Array

2 140 000 ₽
2-комн. квартира
Оренбургская обл, г Новотроицк, пр-кт Металлургов, д 28

5 975 000 ₽
Дом
Россия, Оренбургская обл, Благословенка, ул. Культурная, null
2 100 000 ₽
2-комн. квартира
Новотроицк, Пр-зд Монтажников 38

9 000 000 ₽
Дом
Оренбургская обл, г Гай, ул Мира, д 9

1 590 000 ₽
3-комн. квартира
Оренбургская обл, г Новотроицк, ул Советская, д 65

2 350 000 ₽
2-комн. квартира
Оренбургская обл, г Гай, ул Молодёжная, д 53

1 490 000 ₽
Гараж