Юлия
juliya-056@mail.ru
Скажите продавцу, что вы нашли объявление на 156.ru
1
/
3
4 000 000 ₽
39
Оренбург
Юлия
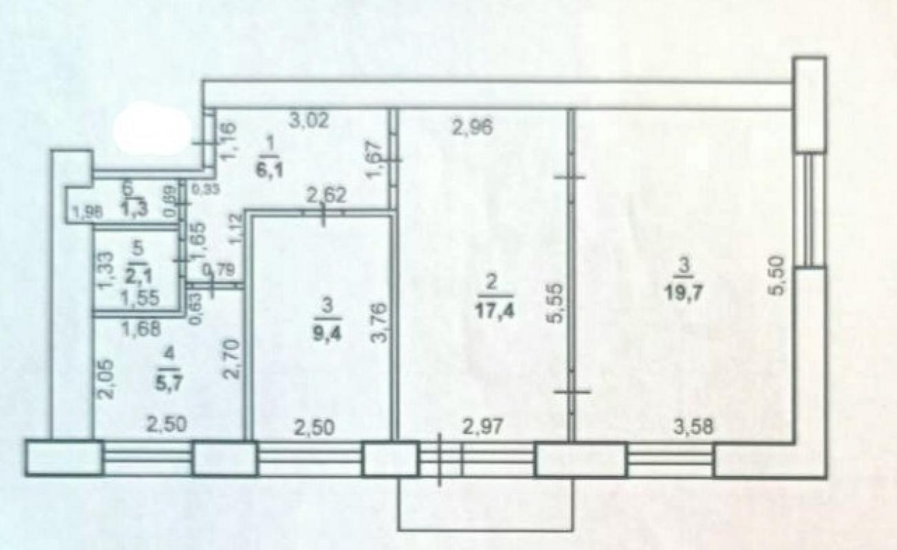
Продам трехкомнатную квартиру в центре города. Кирпичный дом, второй этаж.Комнаты смежно-изолированные. Совмещённый санузел.Погреб во дворе дома будет приятным бонусом новому собственнику. Один взрослый собственник. Долгов и обременений нет.Остановка в трёх минутах ходьбы;Детский сад №109;Школы №39 и 46;Спортивная школа олимпийского резерва №1 им. Н.С. Гейтца;Стрелково-спортивный клуб;Медицинский университет;Корпус № 5 педагогического университета;Оренбургский институт путей и сообщения;Магнит, аптека, оптика, Альфа-страхование - расположены в этом доме;Три парка - Тополя, Перовского, Ленина;Рынок "Локомотив".Квартира свободна от проживающих.Если Вам понравился этот объект, но Ваша недвижимость не продана, окажем помощь в реализации.
Юридическое сопровождение и помощь в одобрение ипотеки при покупке данного объекта бесплатно.
Просмотр по предварительной договоренности.
ID объекта в нашей базе: 132
Тип недвижимости
Адрес
Этажность
Этаж
Площадь
3-комн. квартира
Россия, Оренбургская обл, Оренбург, проезд. Коммунаров,24
5
2
60.7
ID объявления
Обновлено
Создано
Действительно до
859288
2026-04-09 06:01:58
2026-04-09 06:01:58
2026-07-08 06:01:58

2 150 000 ₽
2-комн. квартира

450 000 ₽
Сад
Оренбургская обл, г Новотроицк

850 000 ₽
Сад

2 400 000 ₽
4-комн. квартира
Оренбургская обл, г Новотроицк, ул Орская, д 8А

2 150 000 ₽
3-комн. квартира
Оренбургская обл, г Новотроицк, ул Уральская, д 37

3 650 000 ₽
3-комн. квартира

2 500 000 ₽
3-комн. квартира
Оренбургская обл, г Новотроицк, Комсомольский пр-кт, д 26

6 200 000 ₽
Дом
Россия, Оренбургская обл, Оренбург, ул. Луговая

1 600 000 ₽
2-комн. квартира
Оренбургская обл, г Новотроицк, ул Советская, д 152

1 750 000 ₽
2-комн. квартира
Оренбургская обл, г Гай, ул Войченко, д 1

1 650 000 ₽
1-комн. квартира
Оренбургская обл, г Новотроицк, ул Зеленая, д 75А

5 450 000 ₽
Дом

2 690 000 ₽
3-комн. квартира

2 370 000 ₽
2-комн. квартира
Россия, Оренбургская обл, Орск, ул. Новосибирская,219

7 200 000 ₽
2-комн. квартира
Россия, Оренбургская обл, Оренбург, пр-кт. Победы,149/1

1 100 000 ₽
2-комн. квартира
Оренбургская обл, г Новотроицк, ул Губина, д 18

3 100 000 ₽
3-комн. квартира
Россия, Оренбургская обл, Оренбург, ул. Котова,95

5 975 000 ₽
Дом
Россия, Оренбургская обл, Благословенка, ул. Культурная, null

2 200 000 ₽
3-комн. квартира
Оренбургская обл, г Новотроицк, ул Зеленая, д 71

1 400 000 ₽
2-комн. квартира
Оренбургская обл, г Новотроицк, ул Железнодорожная, д 63

900 000 ₽
Земельный участок
Россия, Оренбургская обл, Оренбург, Оренбургская область, г. Оренбург, С/Т Калина Красная, 380

4 000 000 ₽
3-комн. квартира
Оренбургская обл, г Новотроицк, пр-кт Металлургов, д 18

1 800 000 ₽
2-комн. квартира
Оренбургская обл, г Новотроицк, ул Марии Корецкой, д 27

2 950 000 ₽
Помещение
Оренбургская обл, г Новотроицк, ул Советская, д 5