АН АДРЕСА
a.borisova-adresa@yandex.ru
Скажите продавцу, что вы нашли объявление на 156.ru
1
/
3
9 161 690 ₽
11
Оренбург
АН АДРЕСА
Документы готовы, быстрый выход на сделку!!!!ДоступностьСемейная ипотека 6 %, сельская ипотека 3 %
Наши дома подходят под субсидированные ипотечные программы, военной ипотекой, различными жилищными сертификатами и материнским капиталом. Все это делает покупку максимально удобной и комфортной для наших клиентов, а самое главное выгодной!
Материал стен: газоблоки
Терраса или веранда: покрыты керамогранитом
Лестница: металлический каркас
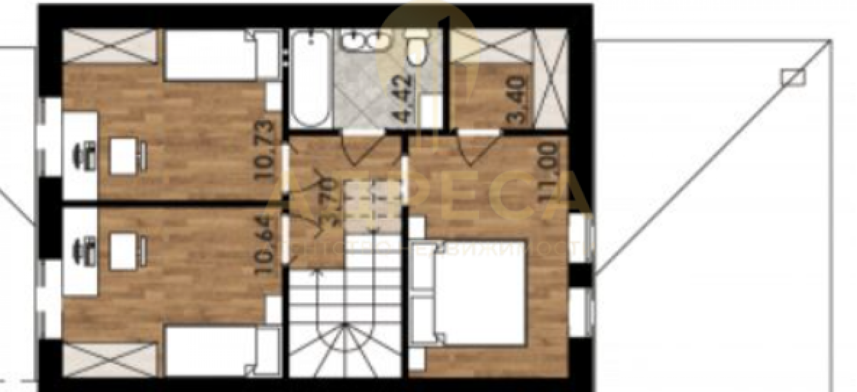
Санузел: на 1 и 2 этажах
Коммуникации: электричество, газ, отопление, канализация
Ремонт: улучшенная предчистовая отделка
Интернет и ТВ: Wi-Fi, телевидение
Парковка: парковочное место
Транспортная доступность: асфальтированная дорога, остановка общественного транспорта
Инфраструктура: магазин, аптека, детский сад, школа
Расстояние до центра города: 12 км
В подарок: территория участка огорожена забором, смонтированы въездные ворота под автомобиль и калитка с электромеханическим замком, уличное освещение, установлен почтовый ящик. Вокруг дома залита бетонная отмостка, бетонная дорожка и площадка под автомобиль, выполнено уличное освещение.
Внутренная отделка
стены оштукатурены по маякам, отшпатлеваны под обои
полы – утепленная армированная бетонная стяжка с последующим устройством наливного пола
установлена пластиковая подоконная доска, дверные и оконные откосы облагорожены
Качество
Наши дома построены из заводского газобетонного блока КОТТЕДЖ, а фасад облицован керамическим кирпичом. Установлены качественные ПВХ окна с двойным мультифункциональным стеклопакетом и надежная металлическая дверь с терморазрывом. В качестве кровельного покрытия выбрана двухслойная гибкая черепица Shinglas от компании ТЕХНОНИКОЛЬ, карниз подшит металлическими софитами, смонтирована водосточная система производства ТЕХНОНИКОЛЬ.
Инфраструктура
Поселок имеет развитую инфраструктуру, в шаговой доступности школа, детский сад, сетевые магазины, аптеки и ФАП. Поселок имеет хорошую транспортную доступность, ходит общественный транспорт. Сельская прописка и тарифы гарантируют вам экономию бюджета на обслуживание дома.
ОТ НАС: помощь в одобрении ипотеки ,полное юридическое сопровождение, помощь в продаже вашей недвижимости, работа с сертификатами.ПРОСМОТР В УДОБНОЕ ДЛЯ ВАС ВРЕМЯ, ПО ПРЕДВАРИТЕЛЬНОЙ ДОГОВОРЕННОСТИ!
ID объекта в нашей базе: 1537
Адрес
Этажность
Площадь
Россия, Оренбургская обл, Оренбург, 41 а
2
102
ID объявления
Обновлено
Создано
Действительно до
859098
2026-04-09 05:30:52
2026-04-09 05:30:52
2026-07-08 05:30:52

6 899 000 ₽
Дом
Россия, Оренбургская обл, Кувандык, ул. Советская,140

7 800 000 ₽
Дом
Россия, Оренбургская обл, Соловьевка, ул. Трудовая

2 100 000 ₽
Земельный участок
Россия, Оренбургская обл, Орск, ул. Осиновская,10

5 426 827 ₽
2-комн. квартира
, , ,

6 350 000 ₽
Дом

1 150 000 ₽
2-комн. квартира
Оренбургская обл, г Новотроицк, ул Свистунова, д 10А

1 620 000 ₽
2-комн. квартира
Оренбургская обл, г Новотроицк, ул Зеленая, д 67

1 700 000 ₽
2-комн. квартира
Оренбургская обл, г Новотроицк, ул Библиотечная, д 2А

1 990 000 ₽
Дом
Россия, Оренбургская обл, Акбулак, ул. Горбунова,81

850 000 ₽
Сад

5 350 000 ₽
Дом
Россия, Оренбургская обл, Орск, ул. Астраханская

485 ₽
Сад
1 ₽
Земельный участок
Оренбургская обл, г Новотроицк

1 499 999 ₽
Дом
Россия, Оренбургская обл, Оренбург, 197

3 000 000 ₽
3-комн. квартира
Россия, Оренбургская обл, Орск, пер. Цимлянский,17

6 600 000 ₽
2-комн. квартира
Россия, Оренбургская обл, Оренбург, пр-кт. Победы,149/3
4 457 299 ₽
1-комн. квартира
, , ,

6 550 000 ₽
Дом
Россия, Оренбургская обл, Оренбург, ул. 3-я Линия,
2 800 000 ₽
Помещение
Оренбургская обл, г Новотроицк, пр-кт Металлургов, д 17

4 500 000 ₽
Дом
Оренбургская обл, г Гай, ул Елшанская

2 600 000 ₽
3-комн. квартира
Оренбургская обл, г Новотроицк, Студенческий пер, д 8
750 000 ₽
Сад

7 700 000 ₽
3-комн. квартира
Оренбургская обл, г Новотроицк, ул Советская, д 66

5 700 000 ₽
Дом
Оренбургская обл, г Новотроицк, ул Севастопольская