АН АДРЕСА
abbasova-adresa@yandex.ru
Скажите продавцу, что вы нашли объявление на 156.ru
1
/
3
9 800 000 ₽
9
Соловьевка
АН АДРЕСА
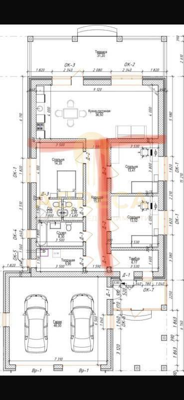
Открыта бронь на дом от надежного застройщика и Юридического лица на ул. Уютной в п. Соловьевка в новом жилом массиве! Интересный дизайн и продуманная планировка! Срок сдачи 30.08.2025 г!1 этажный, 155 м2 на участке 6,25 сотки. Просторная входная группа(холл), большая кухня-гостиная с панорамными окнами и выходом на террасу, три светлые спальни, топочная, 3 раздельных санузла и вместимый гараж 35 м2! Материал стен керамзитоблок. Наружные стены- 30 см, внутренние несущие-20 см. Утеплитель минеральная вата 10 см. Наружняя отделка- декоративная штукатурка + террасная доска.Фундамент: монолитный железобетонный ростверк на бурозаливных сваях. Все на металлической арматуре! Кровля: металлочерепица. Перекрытия- деревянные балки, теплоизоляция- минераловатный утеплитель 15 см.Двери: входная утепленная, металлическая дверь с терморазрывом по полотну и коробу. ПВХ дверь на террасу.Окна: ПВХ с 2-х камерными стеклопакетами, пластиковая подоконная доска и уличный металлический отлив.Автономная вода (скважина 51 м глубиной), канализация (септик 3 кольца диаметром 1.5 м), электричество. Монтаж системы отопления с установкой газового котла.Внутренняя отделка: стены оштукатурены по маякам, от шпаклеванные под обои. Под покраску стены не предусмотрены.Полы: утепленная армированная бетонная стяжка, толщиной 11-12 см. Теплый пол по всему дому. Финишное покрытие полусухая стяжка.Ограждение земельного участка с четырех сторон, материал- профлист. По периметру дома отмостка и бетонная дорожка. Въездная группа будет отсыпана щебнем. Таким образом Вы получаете готовый, огороженный участок с забетонированной площадкой для террасы и крыльца.Поселок Соловьевка растет и стремительно развивается! Вся инфрастуктура имеется. Школа, детский сад, магазины и автобусная остановка в шаговой доступности!Здесь все предусмотрено для комфортной жизни! От города 9 км, в 15 мин езды. Рядом располагаются поселок Зауральный и село Подгородняя Покровка! Более подробный рассказ о нем, материалах и ходе строительства, а также показ при личной встрече! Звоните в любое время.Есть варианты других домов с разными планировками! Можем построить под ваш индивидуальный проект!Рассмотрим все варианты расчета, ипотека, сертификаты. Семейная 6%!!!Полное юридическое сопровождение! Бесплатная консультация ипотечного брокера!Наш адрес ул. Восточная 42/3
ID объекта в нашей базе: 1203
Тип недвижимости
Адрес
Этажность
Площадь
Дом
Россия, Оренбургская обл, Соловьевка, ул. Степная
1
186.4
ID объявления
Обновлено
Создано
Действительно до
852556
2026-03-29 05:47:09
2026-03-29 05:47:09
2026-06-27 05:47:09

2 800 000 ₽
2-комн. квартира
Оренбургская обл, г Новотроицк, ул Винокурова, д 8А

1 450 000 ₽
2-комн. квартира
Оренбургская обл, г Новотроицк, ул Гагарина, д 10

7 550 000 ₽
Земельный участок
Россия, Оренбургская обл, Оренбург, 6

4 900 000 ₽
3-комн. квартира
Оренбургская обл, г Новотроицк, ул Комарова, д 7

3 700 000 ₽
3-комн. квартира
Оренбургская обл, г Новотроицк, ул Уральская, д 23

1 100 000 ₽
2-комн. квартира
Оренбургская обл, г Новотроицк, ул Свистунова, д 10А

160 000 ₽
Сад

7 800 000 ₽
Дом
Россия, Оренбургская обл, Оренбург, г. Оренбург, пос. Кушкуль, ул. Казанская, 36

1 350 000 ₽
1-комн. квартира
Оренбургская обл, г Новотроицк, ул Зеленая, д 61

8 999 000 ₽
Дом
Россия, Оренбургская обл, Оренбург, Рублева

3 300 000 ₽
3-комн. квартира

2 700 000 ₽
Помещение
Оренбургская обл, г Новотроицк, ул Советская, д 61

2 180 000 ₽
2-комн. квартира
Оренбургская обл, г Новотроицк, ул Советская, д 115

5 500 000 ₽
3-комн. квартира
2 700 000 ₽
2-комн. квартира
Оренбургская обл, г Новотроицк, ул Пушкина, д 35

3 330 000 ₽
2-комн. квартира

2 500 000 ₽
4-комн. квартира
Оренбургская обл, г Новотроицк, ул Советская, д 62А

1 850 000 ₽
2-комн. квартира
Оренбургская обл, г Новотроицк, ул Гагарина, д 14

4 990 000 ₽
1-комн. квартира
Россия, Оренбургская обл, Оренбург, ул. Просторная,4А

6 299 000 ₽
Дом
Россия, Оренбургская обл, Оренбург, р-н Сакмарский, СНТ "Сокол", ул. 4А, д.885

2 200 000 ₽
Дом
Россия, Оренбургская обл, Орск, пер. 1-й Узкий

13 500 000 ₽
Дом

2 050 000 ₽
3-комн. квартира

5 000 000 ₽
Дом