Юлия
juliya-056@mail.ru
Скажите продавцу, что вы нашли объявление на 156.ru
1
/
3
4 000 000 ₽
20
Оренбург
Юлия
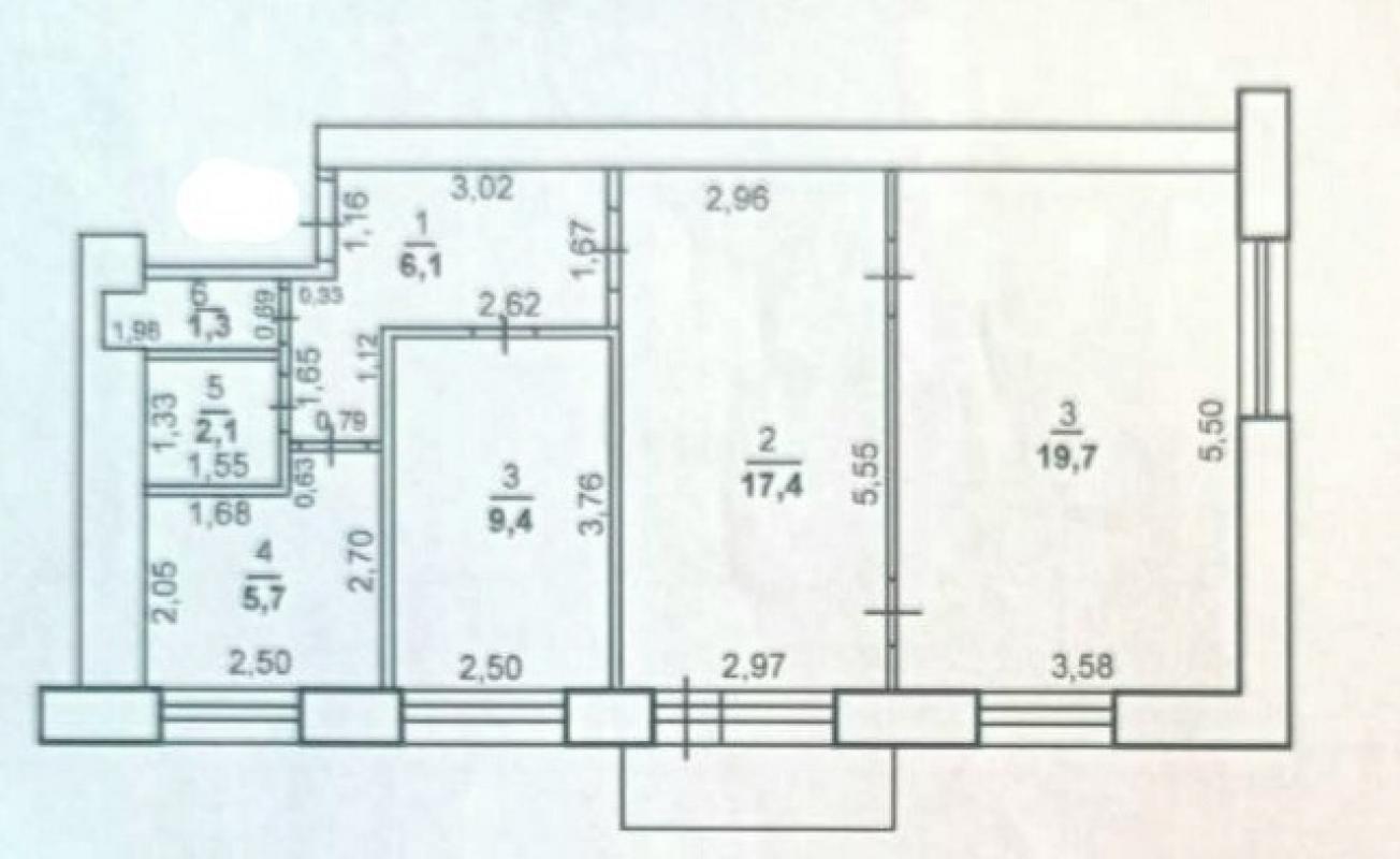
Продам трехкомнатную квартиру в центре города. Кирпичный дом, второй этаж.Комнаты смежно-изолированные. Совмещённый санузел.Погреб во дворе дома будет приятным бонусом новому собственнику. Один взрослый собственник. Долгов и обременений нет.Остановка в трёх минутах ходьбы;Детский сад №109;Школы №39 и 46;Спортивная школа олимпийского резерва №1 им. Н.С. Гейтца;Стрелково-спортивный клуб;Медицинский университет;Корпус № 5 педагогического университета;Оренбургский институт путей и сообщения;Магнит, аптека, оптика, Альфа-страхование - расположены в этом доме;Три парка - Тополя, Перовского, Ленина;Рынок "Локомотив".Квартира свободна от проживающих.Если Вам понравился этот объект, но Ваша недвижимость не продана, окажем помощь в реализации.
Юридическое сопровождение и помощь в одобрение ипотеки при покупке данного объекта бесплатно.
Просмотр по предварительной договоренности.
ID объекта в нашей базе: 132
Тип недвижимости
Адрес
Этажность
Этаж
Площадь
3-комн. квартира
Россия, Оренбургская обл, Оренбург, проезд. Коммунаров,24
5
2
60.7
ID объявления
Обновлено
Создано
Действительно до
852185
2026-03-28 05:59:23
2026-03-28 05:59:23
2026-06-26 05:59:23

8 000 000 ₽
Дом
Россия, Оренбургская обл, Ивановка, Оренбургский р-он, Ивановский сельсовет, ул. Ломоносова, д. 20

17 000 000 ₽
Дом

1 550 000 ₽
Дом
Россия, Оренбургская обл, Оренбург, 197
1 000 000 ₽
2-комн. квартира
Оренбургская обл, г Новотроицк, ул Марии Корецкой, д 21

9 000 000 ₽
Дом
Россия, Оренбургская обл, Оренбург, Ивановский сельсовет,п.Приуралье,ул.Рублёва

1 100 000 ₽
1-комн. квартира
Оренбургская обл, г Гай, ул Октябрьская, д 58

5 703 710 ₽
3-комн. квартира
Россия, Оренбургская обл, Нежинка, ул. Фестивальная,21/1

2 100 000 ₽
Земельный участок

2 860 000 ₽
3-комн. квартира

1 500 000 ₽
Земельный участок

11 700 000 ₽
Помещение

6 327 262 ₽
2-комн. квартира
Россия, Оренбургская обл, Оренбург, 151/1

890 000 ₽
Земельный участок
Россия, Оренбургская обл, Оренбург, 114 а

1 000 000 ₽
1-комн. квартира
Оренбургская обл, г Новотроицк, пр-кт Металлургов, д 17

1 700 000 ₽
2-комн. квартира
Оренбургская обл, г Новотроицк, ул Винокурова, д 10

550 000 ₽
Комната
Россия, Оренбургская обл, Орск, ул. Светлая,4

7 500 000 ₽
Дом
Россия, Оренбургская обл, Оренбург, ул. Ломоносова

3 300 000 ₽
3-комн. квартира

7 000 000 ₽
Дом
Россия, Оренбургская обл, Орск, ул. Сальская

4 300 ₽
3-комн. квартира

10 000 000 ₽
Дом
Оренбургская обл, г Гай, ул Степная

3 250 ₽
3-комн. квартира

1 450 000 ₽
1-комн. квартира
Оренбургская обл, г Новотроицк, ул Пушкина, д 11

5 000 000 ₽
3-комн. квартира