АН АДРЕСА
anufriev-adresa@yandex.ru
Скажите продавцу, что вы нашли объявление на 156.ru
1
/
3
7 870 000 ₽
12
Оренбург
АН АДРЕСА
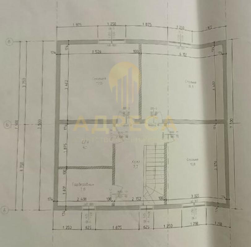
Продается дом в ЭЛИТНОЙ части поселка Кушкуль, по адресу: улица Земская 19.Площадь дома 104 м.кв.Площадь участка 10сот.Газоснабжение: центральное.Водоснабжение: скважина 14м, в доме (есть возможность подключения к центральному)Водоотведение: локальное 4кольца по 1,5м (есть возможность подключения к центральному)Материалы постройки: СИП-панели короед.Фундамент: сваи.Электрика вся по госту, доступ ко всем коробкам.Также максимально доступ ко всем коммуникациям водоотвода.Отопление газ.Состояние ремонта на фото, но лучше посмотреть в живую.Инфраструктура: Школа № 21,так-же имеются сетевые магазины.Возникли вопросы звоните, отвечу.Обременений нет.Просмотр по договоренности в удобное время.
✅ Предоставление консультаций по вопросам, связанным с покупкой недвижимости, в том числе с использованием кредитных средств, жилищных сертификатов, материнского (семейного) капитала.
✅ Помощь в формировании пакета документов (для каждого объекта индивидуально), необходимых для оформления сделки купли-продажи.
✅ Подбор индивидуальной программы кредитования, согласование в банках ипотечной заявки и объекта, на наиболее выгодных для заемщика условиях.
✅ ЭКСКЛЮЗИВНО: ипотека без справок и подтверждения дохода; одобрение ипотеки при отсутствии первоначального взноса (трейд-ин); доступна опция понижения ставки по ипотеке, применение скидки от нашего агентства; проведение сделки дистанционно.
✅ Наш офис ул. Восточная 42/3 АН АДРЕСА
ID объекта в нашей базе: 1114
Тип недвижимости
Адрес
Этажность
Площадь
Дом
Россия, Оренбургская обл, Оренбург, Земская 19
2
104
ID объявления
Обновлено
Создано
Действительно до
850819
2026-03-26 05:20:48
2026-03-26 05:20:48
2026-06-24 05:20:48
1 599 000 ₽
Земельный участок
Россия, Оренбургская обл, Зауральный, ул. Мирная,2

3 250 000 ₽
3-комн. квартира
Оренбургская обл, г Новотроицк, Комсомольский пр-кт, д 48

2 500 000 ₽
4-комн. квартира
ГАй, ул.Челябинская,д.124

5 649 000 ₽
3-комн. квартира
Россия, Оренбургская обл, Оренбург, ул. Липовая,15/1

1 550 000 ₽
Дом
Оренбургская обл, поселок Адамовка, ул 8 Марта
520 000 ₽
Сад
80 000 ₽
Сад

2 400 000 ₽
2-комн. квартира
Россия, Оренбургская обл, Орск, пер. 1-й Домбаровский,29

1 550 000 ₽
1-комн. квартира

4 300 000 ₽
3-комн. квартира
Россия, Оренбургская обл, Орск, ул. Спортивная,6

1 500 000 ₽
2-комн. квартира
Зелёная 63а

2 800 000 ₽
2-комн. квартира
6 000 000 ₽
Помещение
ул. Советская, д.46, помещение №1

1 870 000 ₽
1-комн. квартира
Оренбургская обл, г Новотроицк, ул Уральская, д 34

1 660 000 ₽
3-комн. квартира
Россия, Оренбургская обл, Орск, ул. Новая Биофабрика,68

4 700 000 ₽
3-комн. квартира

3 500 000 ₽
2-комн. квартира

6 500 000 ₽
Дом
Россия, Краснодарский край, Сочи, ул. Бакинская,14/1

2 300 000 ₽
1-комн. квартира
Оренбургская обл, г Орск, ул Олимпийская, д 24
1 ₽
Дом
220 ₽
Гараж

8 500 000 ₽
Дом
Россия, Оренбургская обл, Оренбург, Рублева 43

3 300 000 ₽
3-комн. квартира

7 800 000 ₽
Дом
Оренбургская обл, г Новотроицк, поселок Аккермановка, ул Солнечная