АН АДРЕСА
a.borisova-adresa@yandex.ru
Скажите продавцу, что вы нашли объявление на 156.ru
1
/
3
9 161 690 ₽
12
Оренбург
АН АДРЕСА
Документы готовы, быстрый выход на сделку!!!!ДоступностьСемейная ипотека 6 %, сельская ипотека 3 %
Наши дома подходят под субсидированные ипотечные программы, военной ипотекой, различными жилищными сертификатами и материнским капиталом. Все это делает покупку максимально удобной и комфортной для наших клиентов, а самое главное выгодной!
Материал стен: газоблоки
Терраса или веранда: покрыты керамогранитом
Лестница: металлический каркас
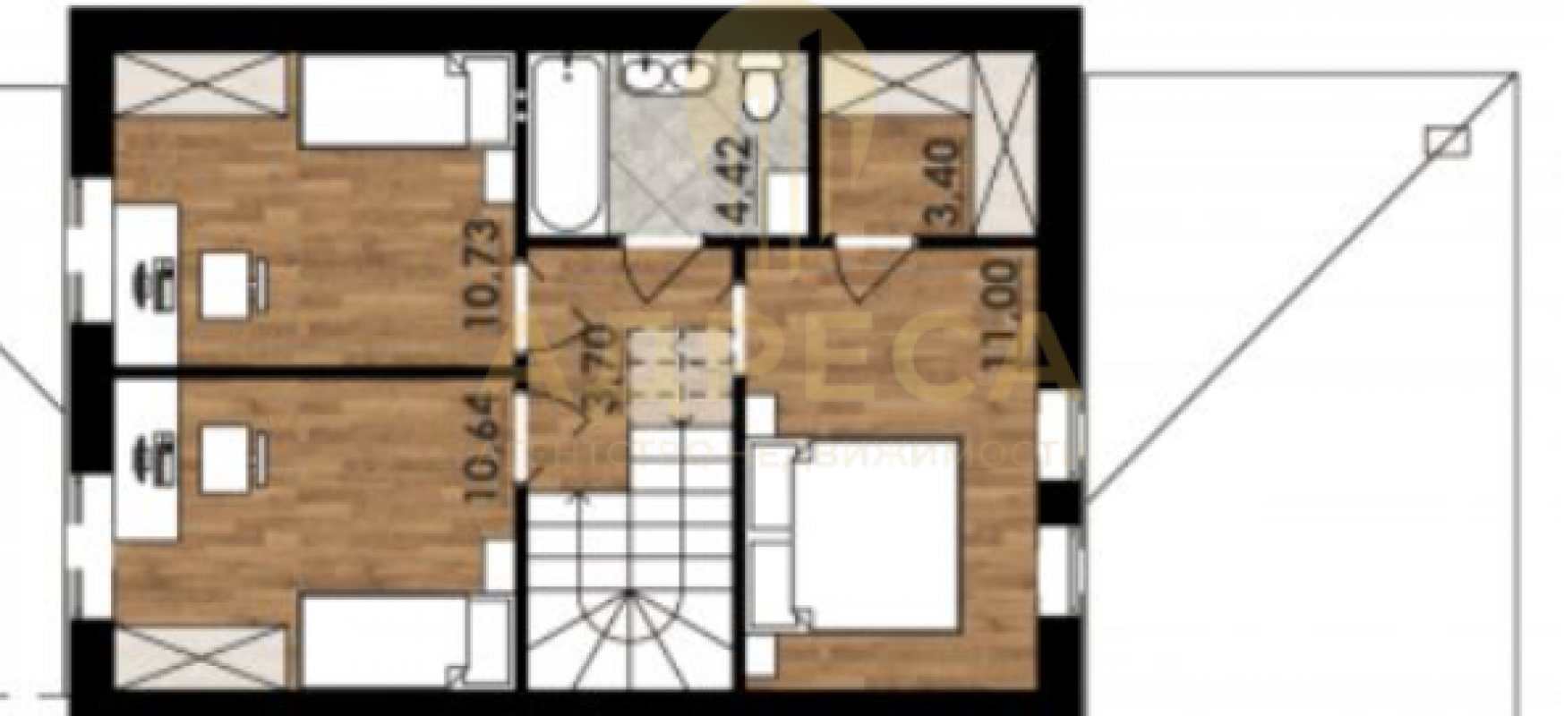
Санузел: на 1 и 2 этажах
Коммуникации: электричество, газ, отопление, канализация
Ремонт: улучшенная предчистовая отделка
Интернет и ТВ: Wi-Fi, телевидение
Парковка: парковочное место
Транспортная доступность: асфальтированная дорога, остановка общественного транспорта
Инфраструктура: магазин, аптека, детский сад, школа
Расстояние до центра города: 12 км
В подарок: территория участка огорожена забором, смонтированы въездные ворота под автомобиль и калитка с электромеханическим замком, уличное освещение, установлен почтовый ящик. Вокруг дома залита бетонная отмостка, бетонная дорожка и площадка под автомобиль, выполнено уличное освещение.
Внутренная отделка
стены оштукатурены по маякам, отшпатлеваны под обои
полы – утепленная армированная бетонная стяжка с последующим устройством наливного пола
установлена пластиковая подоконная доска, дверные и оконные откосы облагорожены
Качество
Наши дома построены из заводского газобетонного блока КОТТЕДЖ, а фасад облицован керамическим кирпичом. Установлены качественные ПВХ окна с двойным мультифункциональным стеклопакетом и надежная металлическая дверь с терморазрывом. В качестве кровельного покрытия выбрана двухслойная гибкая черепица Shinglas от компании ТЕХНОНИКОЛЬ, карниз подшит металлическими софитами, смонтирована водосточная система производства ТЕХНОНИКОЛЬ.
Инфраструктура
Поселок имеет развитую инфраструктуру, в шаговой доступности школа, детский сад, сетевые магазины, аптеки и ФАП. Поселок имеет хорошую транспортную доступность, ходит общественный транспорт. Сельская прописка и тарифы гарантируют вам экономию бюджета на обслуживание дома.
ОТ НАС: помощь в одобрении ипотеки ,полное юридическое сопровождение, помощь в продаже вашей недвижимости, работа с сертификатами.ПРОСМОТР В УДОБНОЕ ДЛЯ ВАС ВРЕМЯ, ПО ПРЕДВАРИТЕЛЬНОЙ ДОГОВОРЕННОСТИ!
ID объекта в нашей базе: 1537
Адрес
Этажность
Площадь
Россия, Оренбургская обл, Оренбург, 41 а
2
102
ID объявления
Обновлено
Создано
Действительно до
849060
2026-03-23 05:32:22
2026-03-23 05:32:22
2026-06-21 05:32:22

4 900 000 ₽
3-комн. квартира
Оренбургская обл, г Новотроицк, ул Комарова, д 7

2 800 000 ₽
2-комн. квартира
Оренбургская обл, г Новотроицк, ул Гагарина, д 6

1 500 000 ₽
2-комн. квартира
Оренбургская обл, г Новотроицк, ул Уральская, д 13

350 000 ₽
Сад

3 100 000 ₽
3-комн. квартира
Оренбургская обл, г Новотроицк, ул Марии Корецкой, д 25

5 703 710 ₽
3-комн. квартира
Россия, Оренбургская обл, Нежинка, ул. Фестивальная,21/1

2 430 000 ₽
2-комн. квартира
Россия, Оренбургская обл, Орск, ул. Шалина,3А

2 800 000 ₽
Сад

2 200 000 ₽
2-комн. квартира
Оренбургская обл, г Новотроицк, ул Марии Корецкой, д 2

2 400 000 ₽
3-комн. квартира
Оренбургская обл, г Новотроицк, Комсомольский пр-кт, д 34

1 700 000 ₽
2-комн. квартира
Оренбургская обл, г Новотроицк, ул Советская, д 5

4 100 000 ₽
3-комн. квартира
Россия, Оренбургская обл, Орск, ул. Просвещения,56А

5 100 000 ₽
Дом
Оренбургская обл, г Орск, ул Бурденко

13 860 000 ₽
3-комн. квартира
Россия, Оренбургская обл, Оренбург, ул. Цвиллинга,68

2 250 000 ₽
1-комн. квартира
Россия, Оренбургская обл, Орск, ул. Олимпийская,28

1 900 000 ₽
2-комн. квартира
Оренбургская обл, г Новотроицк, ул Библиотечная, д 4А

4 500 000 ₽
Дом

2 000 000 ₽
2-комн. квартира
462363, Оренбургская обл, г Новотроицк, ул. Фрунзе

5 500 000 ₽
3-комн. квартира

2 300 000 ₽
2-комн. квартира
Оренбургская обл, г Новотроицк, ул Железнодорожная, д 79

9 270 000 ₽
Дом
Оренбургская обл, г Новотроицк, ул Некрасова

договорная
1 700 000 ₽
2-комн. квартира
Оренбургская обл, г Новотроицк, ул М.Корецкой 5

2 150 000 ₽
2-комн. квартира