АН АДРЕСА
abbasova-adresa@yandex.ru
Скажите продавцу, что вы нашли объявление на 156.ru
1
/
3
12 900 000 ₽
7
Южный Урал
АН АДРЕСА
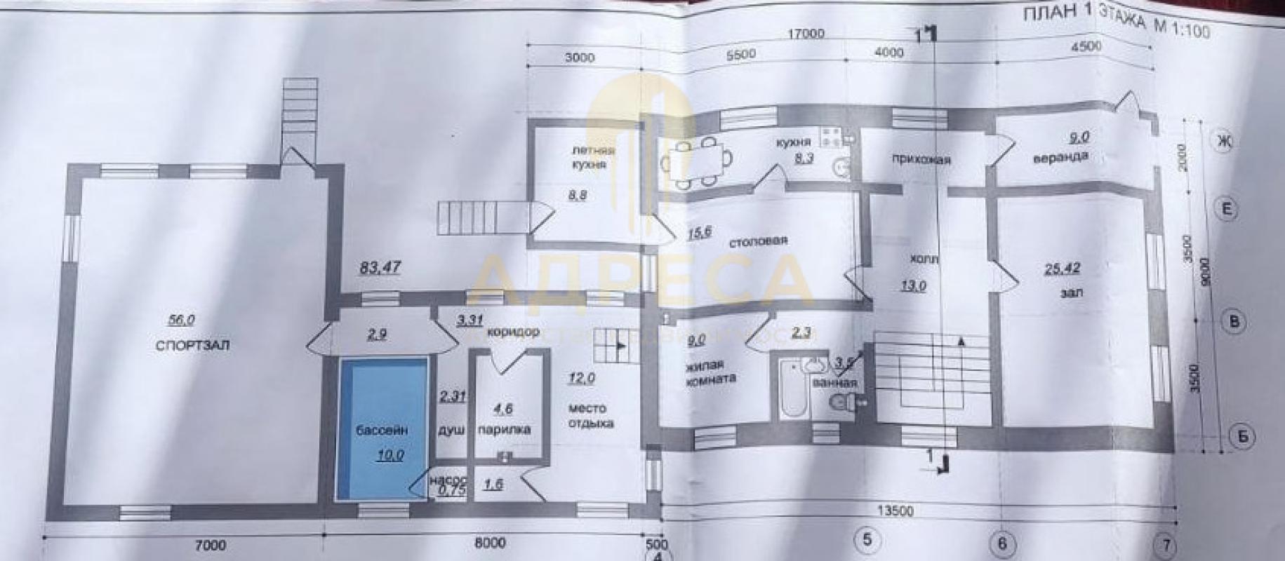
▎Ваш идеальный дом в поселке "Южный Урал"! Мечтаете о тихой и спокойной жизни за городом, но с городским комфортом? Этот просторный двухэтажный дом в поселке "Южный Урал" – идеальный вариант для вас!
▎Описание дома:
Двухэтажный дом с полуподвальным помещением:
Первый этаж:
Гостиная: Просторная и уютная, идеально подходит для теплых семейных вечеров.
Кухня-столовая: Удобное место с большим столом для праздничных обедов и душевных посиделок.
Дополнительная комната или гардеробная: Возможность адаптации под ваши нужды.
Санузел: Удобное размещение на первом и втором этажах.
Коридор: Простой и просторный, создающий атмосферу уюта.
Полуподвальное помещение: Две комнаты для развлечений, кладовая и котельная с выходом в банный комплекс – все для комфортного проживания вашей семьи.
Внутренний двор: Удобный выход из кухни, гостиной и банного комплекса для приятных прогулок и семейных посиделок в уютной беседке.
Второй этаж: Четыре комнаты:
– Детские комнаты: Созданы для счастливого детства ваших детей.
– Взрослая спальня: Место для спокойного и комфортного отдыха.
Банный комплекс: Состоит из комнаты отдыха, парной на дровах, душевой и большого бассейна.
Отдельно стоящий гараж:
На 2 автомобиля, с установленными рольставнями для защиты от непогоды.
Дополнительные преимущества:
Теплый пол по всему периметру первого этажа.
Готовность к проживанию: Дом укомплектован всей необходимой мебелью, техникой и четырьмя сплит-системами.
• Автономная канализация переливного типа: Три септика, позволяющие забыть о проблемах с отводом сточных вод.
Земельный участок: 12.5 соток, предоставляющий простор для реализации ваших идей, включая уютный сад с различными насаждениями.
Удобное расположение: Поселок "Южный Урал" находится всего в 10 км от центра города, обеспечивая легкий доступ ко всей городской инфраструктуре.
Этот шикарный дом — ваш шанс на жизнь в гармонии с природой, не отказываясь от удобств городской жизни. Не упустите возможность стать его владельцем!
ID объекта в нашей базе: 1811
Тип недвижимости
Адрес
Этажность
Площадь
Дом
Россия, Оренбургская обл, Южный Урал, ул. Пушкина, 9
2
235
ID объявления
Обновлено
Создано
Действительно до
848590
2026-03-22 05:44:17
2026-03-22 05:44:17
2026-06-20 05:44:17

6 000 000 ₽
Помещение
Оренбургская обл, г Новотроицк, ул Советская, д 5

2 990 000 ₽
1-комн. квартира
Россия, Оренбургская обл, Оренбург, ул. Лабужского,20

3 250 000 ₽
3-комн. квартира
Оренбургская обл, г Новотроицк, ул Советская, д 19

3 050 000 ₽
3-комн. квартира
Оренбургская обл, г Новотроицк, ул Зеленая, д 15

5 100 000 ₽
3-комн. квартира

9 500 000 ₽
Россия, Оренбургская обл, Орск, ул. Просвещения,55

2 100 000 ₽
1-комн. квартира

2 700 000 ₽
Помещение
Оренбургская обл, г Новотроицк, ул Советская, д 61

2 800 000 ₽
2-комн. квартира

2 990 000 ₽
Земельный участок
Россия, Оренбургская обл, имени 9 Января, ул. Журавлиная,34

2 900 000 ₽
1-комн. квартира
Россия, Оренбургская обл, Оренбург, ул. Озеленителей,34

2 350 000 ₽
2-комн. квартира
Оренбургская обл, г Новотроицк, ул Комарова, д 9

5 000 000 ₽
3-комн. квартира
Оренбургская обл, г Новотроицк, ул Пушкина

2 500 000 ₽
3-комн. квартира
Оренбургская обл, г Новотроицк, ул Советская, д 124

2 140 000 ₽
2-комн. квартира
Оренбургская обл, г Новотроицк, пр-кт Металлургов, д 28

8 290 000 ₽
3-комн. квартира
Россия, Оренбургская обл, Оренбург, ул. Есимова,3

8 300 000 ₽
Дом
Россия, Оренбургская обл, Оренбург, 21
1 ₽
Дом

1 880 000 ₽
1-комн. квартира

2 000 000 ₽
2-комн. квартира
Новотроицк переулок Студенческий, 6

2 350 000 ₽
2-комн. квартира
Оренбургская обл, г Новотроицк, ул Советская, д 72

9 500 000 ₽
Помещение

5 300 000 ₽
Дом
Россия, Оренбургская обл, Ивановка, Мирная улица, 1047, ТСН Ивановское

4 200 000 ₽
3-комн. квартира
Россия, Оренбургская обл, Орск, пер. Театральный,1