АН АДРЕСА
anufriev-adresa@yandex.ru
Скажите продавцу, что вы нашли объявление на 156.ru
1
/
3
7 870 000 ₽
18
Оренбург
АН АДРЕСА
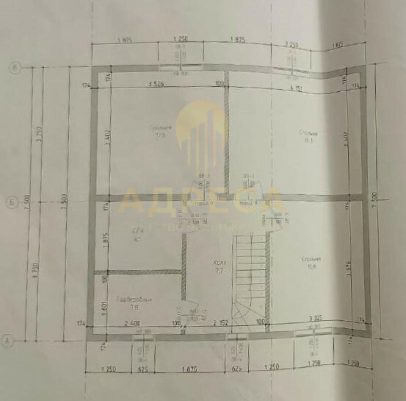
Продается дом в ЭЛИТНОЙ части поселка Кушкуль, по адресу: улица Земская 19.Площадь дома 104 м.кв.Площадь участка 10сот.Газоснабжение: центральное.Водоснабжение: скважина 14м, в доме (есть возможность подключения к центральному)Водоотведение: локальное 4кольца по 1,5м (есть возможность подключения к центральному)Материалы постройки: СИП-панели короед.Фундамент: сваи.Электрика вся по госту, доступ ко всем коробкам.Также максимально доступ ко всем коммуникациям водоотвода.Отопление газ.Состояние ремонта на фото, но лучше посмотреть в живую.Инфраструктура: Школа № 21,так-же имеются сетевые магазины.Возникли вопросы звоните, отвечу.Обременений нет.Просмотр по договоренности в удобное время.
✅ Предоставление консультаций по вопросам, связанным с покупкой недвижимости, в том числе с использованием кредитных средств, жилищных сертификатов, материнского (семейного) капитала.
✅ Помощь в формировании пакета документов (для каждого объекта индивидуально), необходимых для оформления сделки купли-продажи.
✅ Подбор индивидуальной программы кредитования, согласование в банках ипотечной заявки и объекта, на наиболее выгодных для заемщика условиях.
✅ ЭКСКЛЮЗИВНО: ипотека без справок и подтверждения дохода; одобрение ипотеки при отсутствии первоначального взноса (трейд-ин); доступна опция понижения ставки по ипотеке, применение скидки от нашего агентства; проведение сделки дистанционно.
✅ Наш офис ул. Восточная 42/3 АН АДРЕСА
ID объекта в нашей базе: 1114
Тип недвижимости
Адрес
Этажность
Площадь
Дом
Россия, Оренбургская обл, Оренбург, Земская 19
2
104
ID объявления
Обновлено
Создано
Действительно до
846637
2026-03-19 05:20:57
2026-03-19 05:20:57
2026-06-17 05:20:57

4 600 000 ₽
Дом
Россия, Оренбургская обл, Красный Коммунар, ул. Березка,11

3 250 000 ₽
3-комн. квартира
Оренбургская обл, г Новотроицк, ул Советская, д 19

10 700 000 ₽
Дом
Оренбургская обл, г Новотроицк, поселок Аккермановка, ул Архитектурная

2 900 000 ₽
3-комн. квартира
Оренбургская обл, г Новотроицк, ул Советская, д 124

2 900 000 ₽
3-комн. квартира
Оренбургская обл, г Новотроицк, ул Уральская, д 6А

7 499 000 ₽
2-комн. квартира
Россия, Оренбургская обл, Оренбург, ул. Салмышская,67

950 000 ₽
Сад
2 800 000 ₽
2-комн. квартира

2 800 000 ₽
4-комн. квартира
Оренбургская обл, г Новотроицк, ул Зеленая, д 37

8 300 000 ₽
Дом
Россия, Оренбургская обл, Оренбург, 21

1 580 000 ₽
2-комн. квартира
Оренбургская обл, г Новотроицк, ул Марии Корецкой, д 9

договорная

4 100 000 ₽
2-комн. квартира

3 120 000 ₽
2-комн. квартира
Оренбургская обл, г Новотроицк, ул Зеленая, д 5

850 000 ₽
Дом
Россия, Оренбургская обл, Татищево, ул. Советская,28

4 000 000 ₽
Помещение

4 400 000 ₽
3-комн. квартира
Оренбургская обл, г Новотроицк, Комсомольский пр-кт, д 48

2 500 000 ₽
2-комн. квартира
Оренбургская обл, г Новотроицк

6 390 000 ₽
Дом
Россия, Оренбургская обл, Оренбург, ул. Герцена,11

договорная

1 800 000 ₽
3-комн. квартира
Оренбургская обл, г Новотроицк, ул Ломоносова, д 48

2 300 000 ₽
2-комн. квартира
Оренбургская обл, г Новотроицк, ул Советская, д 104

400 000 ₽
Земельный участок

700 000 ₽
Земельный участок
Крым