АН АДРЕСА
abbasova-adresa@yandex.ru
Скажите продавцу, что вы нашли объявление на 156.ru
1
/
3
9 800 000 ₽
11
Соловьевка
АН АДРЕСА
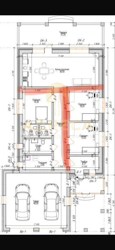
Открыта бронь на дом от надежного застройщика и Юридического лица на ул. Уютной в п. Соловьевка в новом жилом массиве! Интересный дизайн и продуманная планировка! Срок сдачи 30.08.2025 г!1 этажный, 155 м2 на участке 6,25 сотки. Просторная входная группа(холл), большая кухня-гостиная с панорамными окнами и выходом на террасу, три светлые спальни, топочная, 3 раздельных санузла и вместимый гараж 35 м2! Материал стен керамзитоблок. Наружные стены- 30 см, внутренние несущие-20 см. Утеплитель минеральная вата 10 см. Наружняя отделка- декоративная штукатурка + террасная доска.Фундамент: монолитный железобетонный ростверк на бурозаливных сваях. Все на металлической арматуре! Кровля: металлочерепица. Перекрытия- деревянные балки, теплоизоляция- минераловатный утеплитель 15 см.Двери: входная утепленная, металлическая дверь с терморазрывом по полотну и коробу. ПВХ дверь на террасу.Окна: ПВХ с 2-х камерными стеклопакетами, пластиковая подоконная доска и уличный металлический отлив.Автономная вода (скважина 51 м глубиной), канализация (септик 3 кольца диаметром 1.5 м), электричество. Монтаж системы отопления с установкой газового котла.Внутренняя отделка: стены оштукатурены по маякам, от шпаклеванные под обои. Под покраску стены не предусмотрены.Полы: утепленная армированная бетонная стяжка, толщиной 11-12 см. Теплый пол по всему дому. Финишное покрытие полусухая стяжка.Ограждение земельного участка с четырех сторон, материал- профлист. По периметру дома отмостка и бетонная дорожка. Въездная группа будет отсыпана щебнем. Таким образом Вы получаете готовый, огороженный участок с забетонированной площадкой для террасы и крыльца.Поселок Соловьевка растет и стремительно развивается! Вся инфрастуктура имеется. Школа, детский сад, магазины и автобусная остановка в шаговой доступности!Здесь все предусмотрено для комфортной жизни! От города 9 км, в 15 мин езды. Рядом располагаются поселок Зауральный и село Подгородняя Покровка! Более подробный рассказ о нем, материалах и ходе строительства, а также показ при личной встрече! Звоните в любое время.Есть варианты других домов с разными планировками! Можем построить под ваш индивидуальный проект!Рассмотрим все варианты расчета, ипотека, сертификаты. Семейная 6%!!!Полное юридическое сопровождение! Бесплатная консультация ипотечного брокера!Наш адрес ул. Восточная 42/3
ID объекта в нашей базе: 1203
Тип недвижимости
Адрес
Этажность
Площадь
Дом
Россия, Оренбургская обл, Соловьевка, ул. Степная
1
186.4
ID объявления
Обновлено
Создано
Действительно до
844960
2026-03-16 05:23:37
2026-03-16 05:23:37
2026-06-14 05:23:37

5 975 000 ₽
Дом
Россия, Оренбургская обл, Благословенка, ул. Культурная, null

2 300 000 ₽
4-комн. квартира
Оренбургская обл, г Новотроицк, ул Зеленая, д 61

550 000 ₽
Земельный участок
Россия, Оренбургская обл, Подгородняя Покровка, Array

1 800 000 ₽
2-комн. квартира
Оренбургская обл, г Новотроицк, ул Орская, д 8А

1 350 000 ₽
1-комн. квартира
Оренбургская обл, г Гай, ул Коммунистическая, д 3

6 000 000 ₽
Дом
Оренбургская обл, г Новотроицк, поселок Аккермановка

3 465 000 ₽
1-комн. квартира
Россия, Оренбургская обл, Орск, ул. Краматорская,48

3 300 000 ₽
2-комн. квартира

1 680 000 ₽
1-комн. квартира
Оренбургская обл, г Новотроицк, ул Винокурова, д 10А

6 180 000 ₽
2-комн. квартира
Россия, Оренбургская обл, Оренбург, ул. Юркина,6

2 600 000 ₽
4-комн. квартира
Оренбургская обл, г Новотроицк, ул Зеленая, д 22

2 300 000 ₽
2-комн. квартира
Оренбургская обл, г Новотроицк, ул Советская, д 158

2 500 000 ₽
3-комн. квартира
Оренбургская обл, г Новотроицк, ул Советская, д 124

3 450 000 ₽
3-комн. квартира
договорная
Помещение
Оренбургская обл, Адамовский р-н, поселок Адамовка, ул Автомобилистов, д 2А

5 100 000 ₽
Дом
Оренбургская обл, г Орск, ул Бурденко

1 300 000 ₽
1-комн. квартира
Россия, Оренбургская обл, Орск, проезд. Энтузиастов,2
2 900 000 ₽
1-комн. квартира
, , ,

договорная

950 000 ₽
1-комн. квартира
Оренбургская обл, г Новотроицк, ул Губина, д 6

1 600 000 ₽
1-комн. квартира
Оренбургская обл, г Новотроицк, ул Уральская, д 26

550 000 ₽
Земельный участок
Россия, Оренбургская обл, Кумак, ул. Пионерская

2 300 000 ₽
1-комн. квартира
Оренбургская обл, г Орск, ул Олимпийская, д 24

2 100 000 ₽
1-комн. квартира