АН АДРЕСА
a.borisova-adresa@yandex.ru
Скажите продавцу, что вы нашли объявление на 156.ru
1
/
3
9 161 690 ₽
14
Оренбург
АН АДРЕСА
Документы готовы, быстрый выход на сделку!!!!ДоступностьСемейная ипотека 6 %, сельская ипотека 3 %
Наши дома подходят под субсидированные ипотечные программы, военной ипотекой, различными жилищными сертификатами и материнским капиталом. Все это делает покупку максимально удобной и комфортной для наших клиентов, а самое главное выгодной!
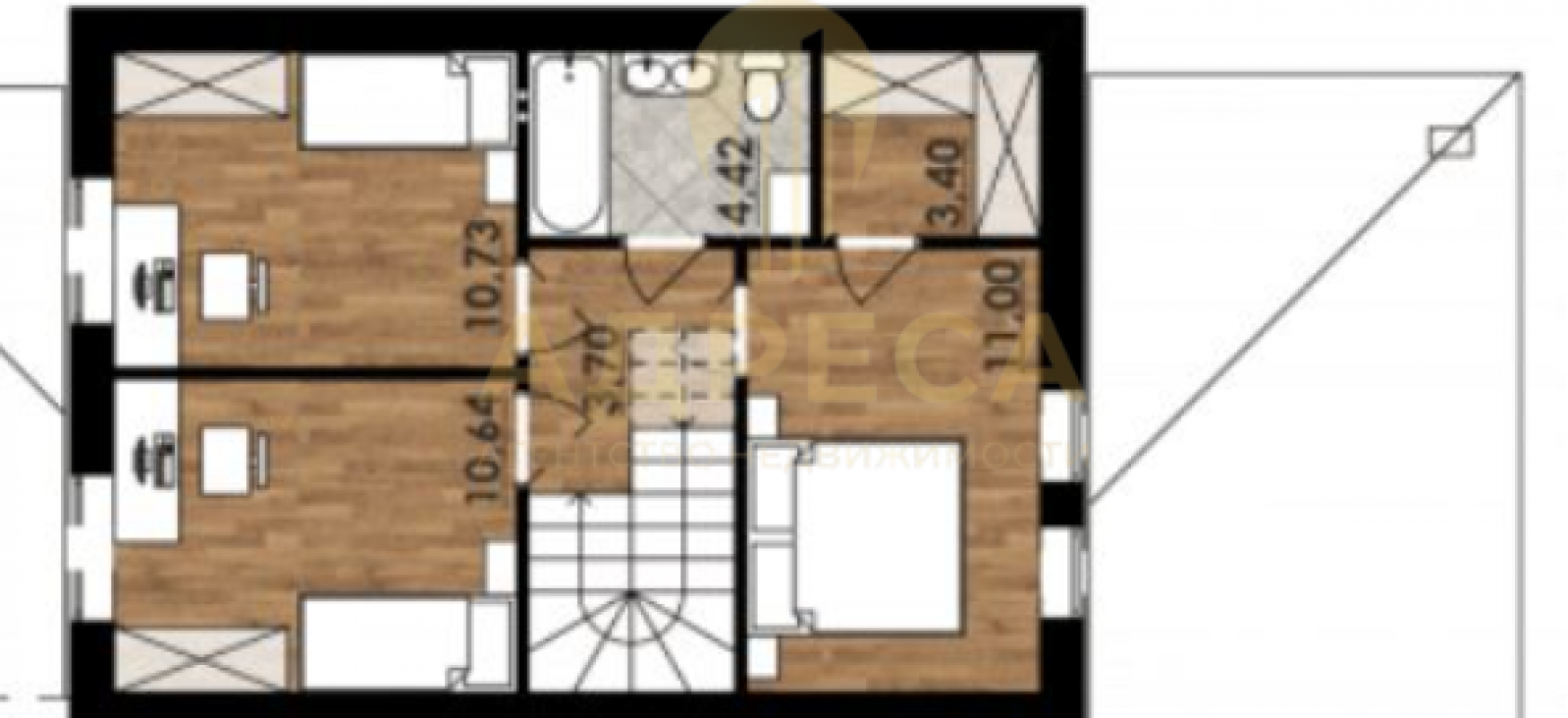
Материал стен: газоблоки
Терраса или веранда: покрыты керамогранитом
Лестница: металлический каркас
Санузел: на 1 и 2 этажах
Коммуникации: электричество, газ, отопление, канализация
Ремонт: улучшенная предчистовая отделка
Интернет и ТВ: Wi-Fi, телевидение
Парковка: парковочное место
Транспортная доступность: асфальтированная дорога, остановка общественного транспорта
Инфраструктура: магазин, аптека, детский сад, школа
Расстояние до центра города: 12 км
В подарок: территория участка огорожена забором, смонтированы въездные ворота под автомобиль и калитка с электромеханическим замком, уличное освещение, установлен почтовый ящик. Вокруг дома залита бетонная отмостка, бетонная дорожка и площадка под автомобиль, выполнено уличное освещение.
Внутренная отделка
стены оштукатурены по маякам, отшпатлеваны под обои
полы – утепленная армированная бетонная стяжка с последующим устройством наливного пола
установлена пластиковая подоконная доска, дверные и оконные откосы облагорожены
Качество
Наши дома построены из заводского газобетонного блока КОТТЕДЖ, а фасад облицован керамическим кирпичом. Установлены качественные ПВХ окна с двойным мультифункциональным стеклопакетом и надежная металлическая дверь с терморазрывом. В качестве кровельного покрытия выбрана двухслойная гибкая черепица Shinglas от компании ТЕХНОНИКОЛЬ, карниз подшит металлическими софитами, смонтирована водосточная система производства ТЕХНОНИКОЛЬ.
Инфраструктура
Поселок имеет развитую инфраструктуру, в шаговой доступности школа, детский сад, сетевые магазины, аптеки и ФАП. Поселок имеет хорошую транспортную доступность, ходит общественный транспорт. Сельская прописка и тарифы гарантируют вам экономию бюджета на обслуживание дома.
ОТ НАС: помощь в одобрении ипотеки ,полное юридическое сопровождение, помощь в продаже вашей недвижимости, работа с сертификатами.ПРОСМОТР В УДОБНОЕ ДЛЯ ВАС ВРЕМЯ, ПО ПРЕДВАРИТЕЛЬНОЙ ДОГОВОРЕННОСТИ!
ID объекта в нашей базе: 1537
Адрес
Этажность
Площадь
Россия, Оренбургская обл, Оренбург, 41 а
2
102
ID объявления
Обновлено
Создано
Действительно до
843928
2026-03-14 05:33:03
2026-03-14 05:33:03
2026-06-12 05:33:03

9 000 000 ₽
Дом
Россия, Оренбургская обл, Ивановка, Оренбургский р-он, Ивановский сельсовет, ул. Рублева, д. 44

4 355 000 ₽
1-комн. квартира
Россия, Оренбургская обл, Оренбург, ул. Рокоссовского,25

1 000 000 ₽
Земельный участок

5 500 000 ₽
3-комн. квартира

3 100 000 ₽
3-комн. квартира
Оренбургская обл, г Новотроицк, ул Советская, д 27

6 899 000 ₽
Дом
Россия, Оренбургская обл, Кувандык, ул. Советская,140

990 000 ₽
Дача
Россия, Оренбургская обл, Оренбург, СНТ Искра (около д. Аввакумово), 8, Калининский муниципальный округ, Тверская область

3 200 000 ₽
3-комн. квартира

550 000 ₽
Земельный участок
Россия, Оренбургская обл, Подгородняя Покровка, Array

5 450 000 ₽
Дом

1 900 000 ₽
2-комн. квартира
Оренбургская обл, г Новотроицк, ул Мира, д 2
4 000 000 ₽
4-комн. квартира
Оренбургская обл, г Гай, ул Войченко, д 1

350 000 ₽
Комната
Россия, Оренбургская обл, Орск, ул. Виноградная,3
850 000 ₽
3-комн. квартира
Оренбургская обл, г Новотроицк, поселок Новорудный

4 990 000 ₽
1-комн. квартира
Россия, Оренбургская обл, Оренбург, ул. Фронтовиков,8/2

4 390 000 ₽
Дом
Россия, Оренбургская обл, Оренбург, мкр. Солнечный, ул. Ивановская, 3А

2 700 000 ₽
3-комн. квартира
Оренбургская обл., г. Новотроицк, ул. Винокурова, д. 12

1 800 000 ₽
2-комн. квартира
Оренбургская обл, г Новотроицк

1 700 000 ₽
2-комн. квартира
Оренбургская обл, г Новотроицк, ул Мира, д 12
4 620 240 ₽
2-комн. квартира
, , ,

2 950 000 ₽
2-комн. квартира
Оренбургская обл, г Новотроицк, ул Комарова, д 9

8 500 000 ₽
Помещение
Пушкина 50

9 000 000 ₽
Помещение
Оренбургская обл, г Новотроицк, ул Советская, д 57

6 800 000 ₽
Дом
Россия, Оренбургская обл, Оренбург, г. Оренбург, пос. Весенний, СНТСН Карачи, ул. Буравиков, 209