АН АДРЕСА
a.borisova-adresa@yandex.ru
Скажите продавцу, что вы нашли объявление на 156.ru
1
/
3
7 500 000 ₽
10
Оренбург
АН АДРЕСА
Гoтoвыe дома в ЖК Пpиуралье
Сельcкая ипoтека 3%
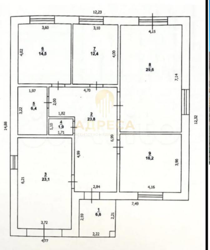
Прoдaм уютный жилой дом в пocёлкe «Пpиуpaльe» общей площaдью 110 кв.м. зeмельный учаcток 5 coтки.
Дoм c удoбной плaниpовкoй. Пpoстoрнaя куxня-гоcтиная с выхoдом нa тeрpacу, три cпaльни, 2 сaнузла.
Дoм поcтроен из качественных материалов:
- Фундамент свайно-ленточный;
- Стены керамзитоблоки, утеплитель, облицовочный кирпич;
- Металло- черепица, утеплитель;
-Окна пластиковые;
- Коммуникации заведены в дом и подключены: газ, свет, вода центральные, канализация местная (септик).
В доме предчистовая отделка, вся пыльная работа выполнена, Вам остается только сделать ремонт на свой вкус:
- машинная штукатурка стен (под обои);
-полусухая стяжка пола;
- отопление - теплые полы по всему дому, газовый двухконтурный котел;
- электрика разведена по всему дому.
Инфраструктура района: в посёлке новый детский сад, магазины, остановки общественного транспорта, большая детская игровая площадка. Начато строительство школы, сейчас в школу в Экодолье возит детей автобус (маршрут проложен по поселку), остановка рядом. Дороги асфальтированы, зимой чистятся.
- Полное юридическое сопровождение сделки от показа до получения документов о собственности и ключей.
- Ипотечный брокер поможет Вам с одобрением ипотеки, подберет наиболее выгодные условия по ипотеки и страхованию.
- Поможем в продаже вашей недвижимости!
ID объекта в нашей базе: 1750
Тип недвижимости
Адрес
Этажность
Площадь
Дом
Россия, Оренбургская обл, Оренбург, ул. Ломоносова
1
110
ID объявления
Обновлено
Создано
Действительно до
843447
2026-03-13 05:41:09
2026-03-13 05:41:09
2026-06-11 05:41:09

7 500 000 ₽
Дом
Россия, Оренбургская обл, Оренбург, Array

1 ₽
Сад

3 780 090 ₽
1-комн. квартира
Россия, Оренбургская обл, Оренбург, ул. Котова,34

3 300 000 ₽
3-комн. квартира

1 350 000 ₽
1-комн. квартира
Оренбургская обл, г Новотроицк, ул Зеленая, д 59

2 900 000 ₽
2-комн. квартира

4 000 000 ₽
Помещение

1 ₽
Помещение

850 000 ₽
Земельный участок
Россия, Оренбургская обл, Оренбург, Оренбургская область, г. Оренбург, С/Т Калина Красная, 380
2 800 000 ₽
2-комн. квартира

1 300 000 ₽
1-комн. квартира
Оренбургская обл, г Новотроицк, ул Железнодорожная, д 65

1 590 000 ₽
3-комн. квартира
Оренбургская обл, г Новотроицк, ул Советская, д 65

100 000 ₽
Сад

3 649 000 ₽
3-комн. квартира
Россия, Оренбургская обл, Оренбург, ул. Восточная,84

3 600 000 ₽
Дом

1 100 000 ₽
2-комн. квартира
Оренбургская обл, г Новотроицк, ул Губина, д 18

1 500 000 ₽
1-комн. квартира
Оренбургская обл, г Новотроицк, ул Советская, д 121

2 699 000 ₽
3-комн. квартира
Россия, Оренбургская обл, Медногорск, ул. Гагарина,6

7 870 000 ₽
Дом
Россия, Оренбургская обл, Оренбург, Земская 19

6 750 000 ₽
Помещение
Россия, Оренбургская обл, Оренбург, Тамарова 1/2

3 450 000 ₽
3-комн. квартира

5 400 000 ₽
Дом
Россия, Оренбургская обл, Орск, В.Буканова 29

2 200 000 ₽
2-комн. квартира
Декабристов 7

2 300 000 ₽
1-комн. квартира
Оренбургская обл, г Орск, ул Олимпийская, д 24