АН АДРЕСА
abbasova-adresa@yandex.ru
Скажите продавцу, что вы нашли объявление на 156.ru
1
/
3
12 900 000 ₽
14
Южный Урал
АН АДРЕСА
▎Ваш идеальный дом в поселке "Южный Урал"! Мечтаете о тихой и спокойной жизни за городом, но с городским комфортом? Этот просторный двухэтажный дом в поселке "Южный Урал" – идеальный вариант для вас!
▎Описание дома:
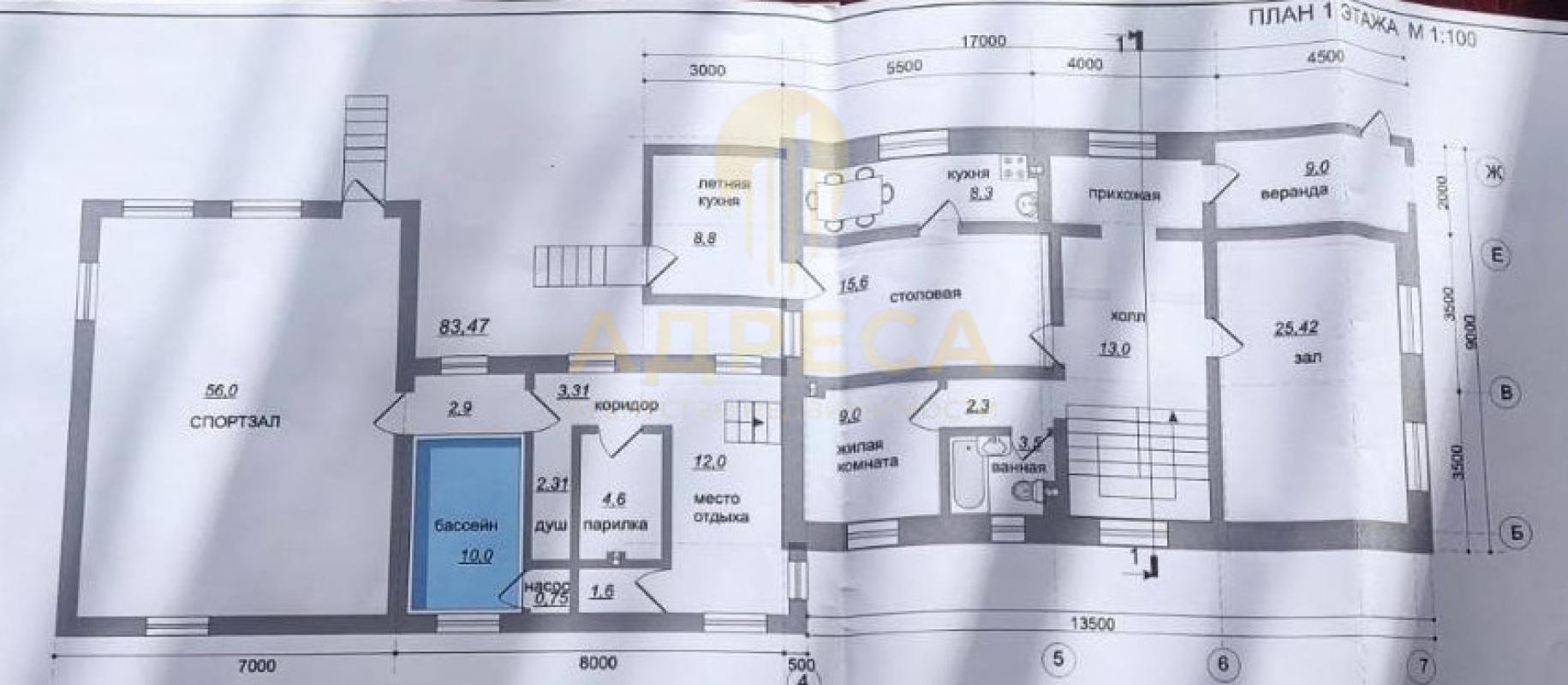
Двухэтажный дом с полуподвальным помещением:
Первый этаж:
Гостиная: Просторная и уютная, идеально подходит для теплых семейных вечеров.
Кухня-столовая: Удобное место с большим столом для праздничных обедов и душевных посиделок.
Дополнительная комната или гардеробная: Возможность адаптации под ваши нужды.
Санузел: Удобное размещение на первом и втором этажах.
Коридор: Простой и просторный, создающий атмосферу уюта.
Полуподвальное помещение: Две комнаты для развлечений, кладовая и котельная с выходом в банный комплекс – все для комфортного проживания вашей семьи.
Внутренний двор: Удобный выход из кухни, гостиной и банного комплекса для приятных прогулок и семейных посиделок в уютной беседке.
Второй этаж: Четыре комнаты:
– Детские комнаты: Созданы для счастливого детства ваших детей.
– Взрослая спальня: Место для спокойного и комфортного отдыха.
Банный комплекс: Состоит из комнаты отдыха, парной на дровах, душевой и большого бассейна.
Отдельно стоящий гараж:
На 2 автомобиля, с установленными рольставнями для защиты от непогоды.
Дополнительные преимущества:
Теплый пол по всему периметру первого этажа.
Готовность к проживанию: Дом укомплектован всей необходимой мебелью, техникой и четырьмя сплит-системами.
• Автономная канализация переливного типа: Три септика, позволяющие забыть о проблемах с отводом сточных вод.
Земельный участок: 12.5 соток, предоставляющий простор для реализации ваших идей, включая уютный сад с различными насаждениями.
Удобное расположение: Поселок "Южный Урал" находится всего в 10 км от центра города, обеспечивая легкий доступ ко всей городской инфраструктуре.
Этот шикарный дом — ваш шанс на жизнь в гармонии с природой, не отказываясь от удобств городской жизни. Не упустите возможность стать его владельцем!
ID объекта в нашей базе: 1811
Тип недвижимости
Адрес
Этажность
Площадь
Дом
Россия, Оренбургская обл, Южный Урал, ул. Пушкина, 9
2
235
ID объявления
Обновлено
Создано
Действительно до
842913
2026-03-12 05:45:02
2026-03-12 05:45:02
2026-06-10 05:45:02
350 ₽
Сад
2 399 000 ₽
1-комн. квартира
Россия, Оренбургская обл, Оренбург, с.нежинка ул.фестивальная 29

5 300 000 ₽
1-комн. квартира
Россия, Оренбургская обл, Оренбург, пр-кт. Победы,155А

670 000 ₽
Земельный участок
Россия, Оренбургская обл, Оренбург, 21б
1 300 000 ₽
1-комн. квартира

9 990 000 ₽
Дом
Россия, Оренбургская обл, Оренбург, 58

6 330 000 ₽
3-комн. квартира
Россия, Оренбургская обл, Оренбург, пер. Неплюева,4

1 550 000 ₽
Дом
Россия, Оренбургская обл, Оренбург, 197

5 500 000 ₽
Дом
Россия, Оренбургская обл, Орск, ул. Астраханская

2 200 000 ₽
2-комн. квартира
Россия, Оренбургская обл, Красный Коммунар, ул. Новая,1
2 577 000 ₽
2-комн. квартира

3 200 000 ₽
2-комн. квартира
2 450 000 ₽
2-комн. квартира
Оренбургская обл, г Новотроицк, ул Советская, д 116

3 780 090 ₽
1-комн. квартира
Россия, Оренбургская обл, Оренбург, ул. Котова,34

6 500 000 ₽
Дом
Россия, Краснодарский край, Сочи, ул. Бакинская,14/1

14 000 000 ₽
Дом
Россия, Оренбургская обл, Подгородняя Покровка, ул. Переволоцкая,106
8 500 000 ₽
Земельный участок
Россия, Оренбургская обл, Оренбург, ул. Весенняя,3

3 465 000 ₽
1-комн. квартира
Россия, Оренбургская обл, Орск, ул. Краматорская,48

5 300 000 ₽
2-комн. квартира
Россия, Оренбургская обл, Оренбург, ул. Планерная,4

3 800 000 ₽
3-комн. квартира

4 000 000 ₽
3-комн. квартира
Оренбургская обл, г Новотроицк, пр-кт Металлургов, д 18

480 000 ₽
Земельный участок
Россия, Оренбургская обл, Орск, ул. Крайняя/Энтузиастов

2 800 000 ₽
2-комн. квартира
Оренбургская обл, г Новотроицк, ул Винокурова, д 8А

350 000 ₽
Комната
Оренбургская обл, г Новотроицк, ул Мичурина