АН АДРЕСА
a.borisova-adresa@yandex.ru
Скажите продавцу, что вы нашли объявление на 156.ru
1
/
3
9 161 690 ₽
18
Оренбург
АН АДРЕСА
Документы готовы, быстрый выход на сделку!!!!ДоступностьСемейная ипотека 6 %, сельская ипотека 3 %
Наши дома подходят под субсидированные ипотечные программы, военной ипотекой, различными жилищными сертификатами и материнским капиталом. Все это делает покупку максимально удобной и комфортной для наших клиентов, а самое главное выгодной!
Материал стен: газоблоки
Терраса или веранда: покрыты керамогранитом
Лестница: металлический каркас
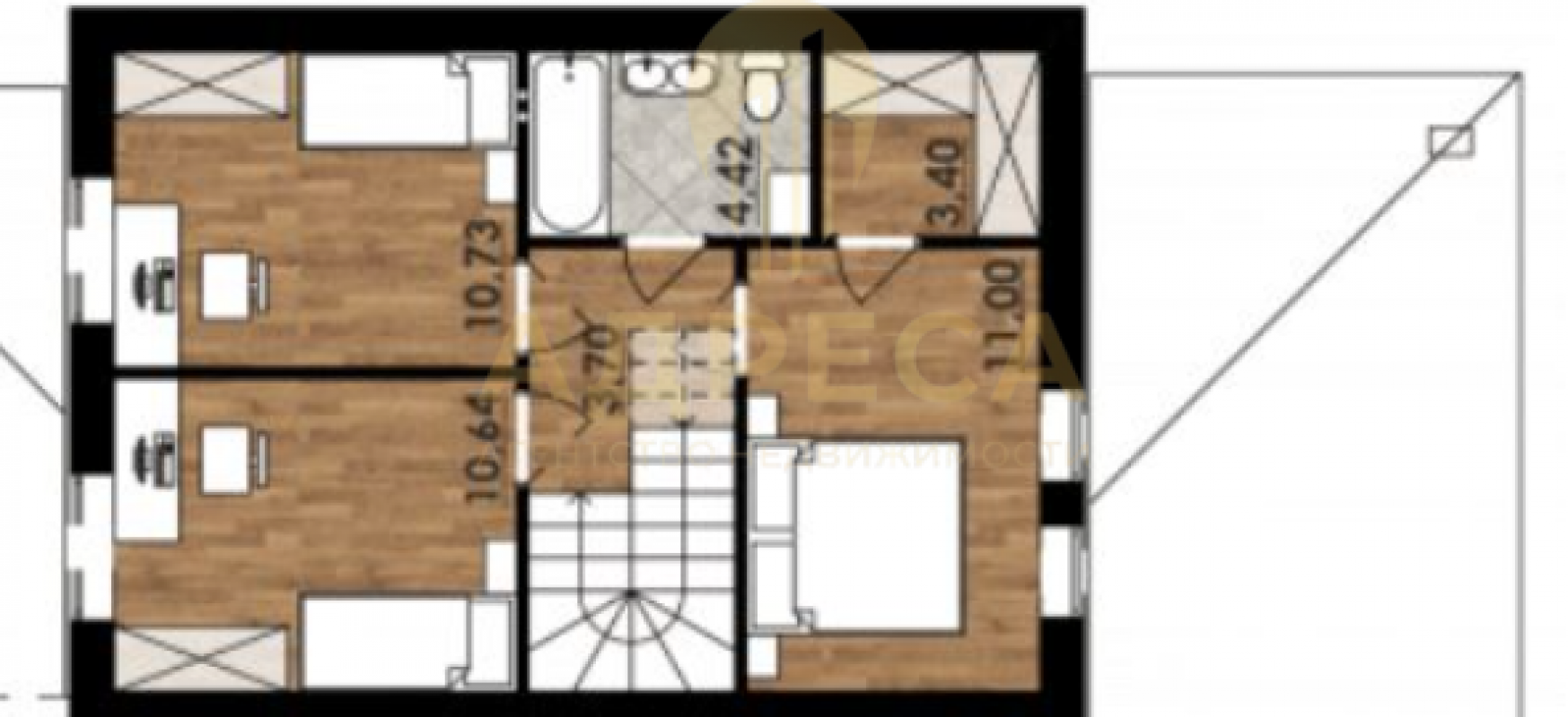
Санузел: на 1 и 2 этажах
Коммуникации: электричество, газ, отопление, канализация
Ремонт: улучшенная предчистовая отделка
Интернет и ТВ: Wi-Fi, телевидение
Парковка: парковочное место
Транспортная доступность: асфальтированная дорога, остановка общественного транспорта
Инфраструктура: магазин, аптека, детский сад, школа
Расстояние до центра города: 12 км
В подарок: территория участка огорожена забором, смонтированы въездные ворота под автомобиль и калитка с электромеханическим замком, уличное освещение, установлен почтовый ящик. Вокруг дома залита бетонная отмостка, бетонная дорожка и площадка под автомобиль, выполнено уличное освещение.
Внутренная отделка
стены оштукатурены по маякам, отшпатлеваны под обои
полы – утепленная армированная бетонная стяжка с последующим устройством наливного пола
установлена пластиковая подоконная доска, дверные и оконные откосы облагорожены
Качество
Наши дома построены из заводского газобетонного блока КОТТЕДЖ, а фасад облицован керамическим кирпичом. Установлены качественные ПВХ окна с двойным мультифункциональным стеклопакетом и надежная металлическая дверь с терморазрывом. В качестве кровельного покрытия выбрана двухслойная гибкая черепица Shinglas от компании ТЕХНОНИКОЛЬ, карниз подшит металлическими софитами, смонтирована водосточная система производства ТЕХНОНИКОЛЬ.
Инфраструктура
Поселок имеет развитую инфраструктуру, в шаговой доступности школа, детский сад, сетевые магазины, аптеки и ФАП. Поселок имеет хорошую транспортную доступность, ходит общественный транспорт. Сельская прописка и тарифы гарантируют вам экономию бюджета на обслуживание дома.
ОТ НАС: помощь в одобрении ипотеки ,полное юридическое сопровождение, помощь в продаже вашей недвижимости, работа с сертификатами.ПРОСМОТР В УДОБНОЕ ДЛЯ ВАС ВРЕМЯ, ПО ПРЕДВАРИТЕЛЬНОЙ ДОГОВОРЕННОСТИ!
ID объекта в нашей базе: 1537
Адрес
Этажность
Площадь
Россия, Оренбургская обл, Оренбург, 41 а
2
102
ID объявления
Обновлено
Создано
Действительно до
841711
2026-03-10 05:33:36
2026-03-10 05:33:36
2026-06-08 05:33:36

3 250 000 ₽
4-комн. квартира
Россия, Оренбургская обл, Орск, пер. Сарматский,5А

1 870 000 ₽
1-комн. квартира
Оренбургская обл, г Новотроицк, ул Есенкова, д 8

6 150 000 ₽
Дом
Россия, Оренбургская обл, Благословенка, 34/1

3 700 000 ₽
3-комн. квартира

14 000 000 ₽
Дом
Россия, Оренбургская обл, Подгородняя Покровка, ул. Переволоцкая,106

1 099 000 ₽
Дом
Россия, Оренбургская обл, Родничный Дол, ул. Набережная,1

3 400 000 ₽
3-комн. квартира
Россия, Оренбургская обл, Орск, ул. Братская,56 А

2 700 000 ₽
3-комн. квартира
Оренбургская обл., г. Новотроицк, ул. Винокурова, д. 12

7 500 000 ₽
Дом
Россия, Оренбургская обл, Оренбург, ул. Ломоносова

8 499 000 ₽
Дом
Россия, Оренбургская обл, Весенний, ул. Вишневая

3 700 000 ₽
3-комн. квартира
Оренбургская обл, г Новотроицк, ул Уральская, д 23

4 800 000 ₽
3-комн. квартира

договорная

договорная

2 700 000 ₽
4-комн. квартира
Оренбургская обл, г Новотроицк, ул Уральская, д 17

1 450 000 ₽
2-комн. квартира
Оренбургская обл, г Новотроицк, ул Черемных, д 3
1 200 000 ₽
1-комн. квартира
Оренбургская обл, г Новотроицк, ул Пушкина, д 64

10 300 000 ₽
Дом
Оренбургская обл, г Новотроицк, село Хабарное, ул Садовая, влд 34

1 300 000 ₽
1-комн. квартира
Оренбургская обл, г Орск, Западный пр-кт

2 650 000 ₽
3-комн. квартира

8 500 000 ₽
Дом
Россия, Оренбургская обл, Оренбург, Рублева

2 550 000 ₽
3-комн. квартира
Оренбургская обл, г Новотроицк, Студенческий пер, д 8

2 000 000 ₽
1-комн. квартира

3 250 000 ₽
3-комн. квартира
Оренбургская обл, г Новотроицк, ул Советская, д 19