АН АДРЕСА
Kotikova-adresa@yandex.ru
Скажите продавцу, что вы нашли объявление на 156.ru
1
/
3
7 400 000 ₽
23
Оренбург
АН АДРЕСА
!!! ДОМА ОТ ЗАСТРОЙЩИКА!!!ИПОТЕЧНАЯ СТАВКА 3-6% ЛЮБАЯ ФОРМА РАСЧЕТА( любой сертификат,материнский капитал,обычная ипотека, семейная ипотека, наличный расчет).В ПРОДАЖЕ ДОМА 140 М 6 СотЗАБОР по всему периметру участка!
поселок МАРЬИНО-НЕЗАТОПЛЯЕМАЯ ЗОНА!
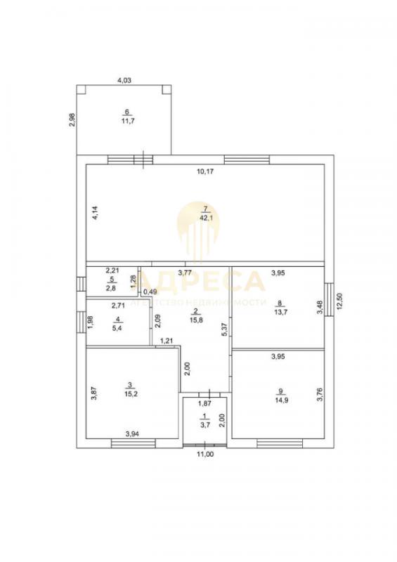
Общая площадь дома 140 мКухня-гостинная 42м с выходом на террасуСпальни-3Открытый большой холС/У+котельнаяТамбур закрытыйКачественная входная дверь с термо-разрывомСтены оштукатурены под обои,кeрaмзитo-блок , утеплитель 10, кирпич.Потолок подшит плитами ОSВ.Откосы, подоконники подготовлены.Радиаторы отопления во всех комнатах, теплый пол по всему периметру дома. Двухконтурный газовый котел. Скважина, септик -3 кольца.Фундaмeнт свaйнo лентoчный,глубина свай 2 м,шаг 1,5м, завoдской бeтoн!Крыша-Металлoчерепица с утеплением,отмостка.
Наша компания провела профессиональную юридическую проверку объекта недвижимости, гарантируя вам защиту от потенциальных рисков.
Сделка будет осуществлена с полной юридической прозрачностью, обеспечивая вас надежным и безопасным приобретением жилья.Офис продаж ул.Восточная 42/3Ваш персональный специалист Котикова Юлия
ID объекта в нашей базе: 1709
Тип недвижимости
Адрес
Этажность
Площадь
Дом
Россия, Оренбургская обл, Оренбург, переулок Аптекарьский
1
140
ID объявления
Обновлено
Создано
Действительно до
841220
2026-03-09 05:38:51
2026-03-09 05:38:51
2026-06-07 05:38:51

1 990 000 ₽
1-комн. квартира
Россия, Оренбургская обл, Орск, Ялтинская 95

2 150 000 ₽
3-комн. квартира
Оренбургская обл, г Новотроицк, ул Уральская, д 37

2 700 000 ₽
4-комн. квартира
Оренбургская обл, г Новотроицк, ул Уральская, д 17

1 200 000 ₽
1-комн. квартира

8 000 000 ₽
Дом
Россия, Оренбургская обл, Ивановка, Ивановский сельсовет,п.Приуралье,ул.Ломоносова д.8

6 200 000 ₽
Дом
Россия, Оренбургская обл, Оренбург, ул. Луговая

2 900 000 ₽
3-комн. квартира
Оренбургская обл, г Новотроицк, ул Уральская, д 3

1 200 000 ₽
Комната
Россия, Оренбургская обл, Оренбург, ул. Элеваторная,9
2 000 000 ₽
1-комн. квартира

4 650 000 ₽
1-комн. квартира
Россия, Оренбургская обл, Оренбург, пер. Слесарный,7

5 500 000 ₽
1-комн. квартира
Россия, Оренбургская обл, Пригородный, ул. Студенческая,2г

2 400 000 ₽
2-комн. квартира
Оренбургская обл, г Новотроицк, ул Мира, д 5

2 650 000 ₽
3-комн. квартира

4 900 000 ₽
3-комн. квартира
Оренбургская обл, г Новотроицк, ул Комарова, д 7

договорная

550 000 ₽
Земельный участок
Россия, Оренбургская обл, Орск, пр-кт. Западный,61

1 750 000 ₽
2-комн. квартира
Оренбургская обл, г Гай, ул Войченко, д 1
1 ₽
Земельный участок
Оренбургская обл, г Новотроицк

1 700 000 ₽
1-комн. квартира
Оренбургская обл, г Новотроицк, пр-кт Металлургов, д 20

1 700 000 ₽
2-комн. квартира

8 999 000 ₽
Дом
Россия, Оренбургская обл, Оренбург, Рублева

1 800 000 ₽
3-комн. квартира
Оренбургская обл, г Новотроицк, ул Зеленая, д 65

6 000 000 ₽
3-комн. квартира
Россия, Оренбургская обл, Оренбург, ул. Юркина,2

3 000 000 ₽
2-комн. квартира
Оренбургская обл, г Новотроицк, ул Гагарина, д 6