Юлия
juliya-056@mail.ru
Скажите продавцу, что вы нашли объявление на 156.ru
1
/
3
4 000 000 ₽
27
Оренбург
Юлия
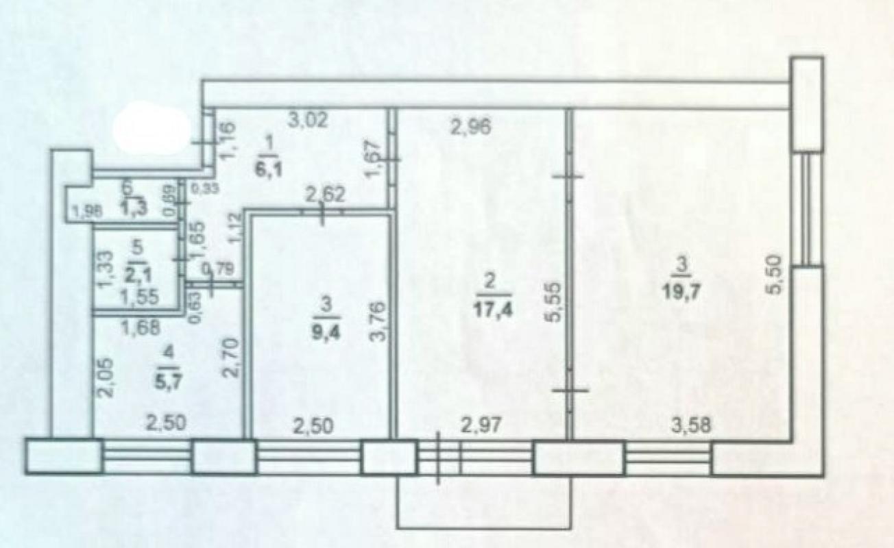
Продам трехкомнатную квартиру в центре города. Кирпичный дом, второй этаж.Комнаты смежно-изолированные. Совмещённый санузел.Погреб во дворе дома будет приятным бонусом новому собственнику. Один взрослый собственник. Долгов и обременений нет.Остановка в трёх минутах ходьбы;Детский сад №109;Школы №39 и 46;Спортивная школа олимпийского резерва №1 им. Н.С. Гейтца;Стрелково-спортивный клуб;Медицинский университет;Корпус № 5 педагогического университета;Оренбургский институт путей и сообщения;Магнит, аптека, оптика, Альфа-страхование - расположены в этом доме;Три парка - Тополя, Перовского, Ленина;Рынок "Локомотив".Квартира свободна от проживающих.Если Вам понравился этот объект, но Ваша недвижимость не продана, окажем помощь в реализации.
Юридическое сопровождение и помощь в одобрение ипотеки при покупке данного объекта бесплатно.
Просмотр по предварительной договоренности.
ID объекта в нашей базе: 132
Тип недвижимости
Адрес
Этажность
Этаж
Площадь
3-комн. квартира
Россия, Оренбургская обл, Оренбург, проезд. Коммунаров,24
5
2
60.7
ID объявления
Обновлено
Создано
Действительно до
840307
2026-03-07 05:59:07
2026-03-07 05:59:07
2026-06-05 05:59:07

6 146 000 ₽
Дом
Россия, Оренбургская обл, Оренбург, Array

10 300 000 ₽
Дом
Оренбургская обл, г Новотроицк, село Хабарное, ул Садовая, влд 34
1 200 000 ₽
3-комн. квартира
Россия, Оренбургская обл, Орск, ул. Пугачева,57

2 300 000 ₽
4-комн. квартира
Оренбургская обл, г Новотроицк, ул Орская, д 8А

договорная
1 800 000 ₽
2-комн. квартира
Оренбургская обл, г Новотроицк, ул Зинина, д 1
300 000 ₽
Земельный участок
Россия, Оренбургская обл, Орск, Новоказачий

договорная

2 270 000 ₽
2-комн. квартира
Оренбургская обл, г Новотроицк, ул Советская, д 115

1 400 000 ₽
1-комн. квартира
Оренбургская обл, г Новотроицк, ул Советская, д 102

1 500 000 ₽
Дом
Россия, Оренбургская обл, Красный Коммунар, ул. Монтажников,29

4 650 000 ₽
1-комн. квартира
Россия, Оренбургская обл, Оренбург, пер. Слесарный,7

10 000 000 ₽
Дом
Россия, Оренбургская обл, Орск, Переулок Нагорный дом 4

14 000 000 ₽
Дом
Россия, Оренбургская обл, Подгородняя Покровка, ул. Переволоцкая,106

2 600 000 ₽
2-комн. квартира
Оренбургская обл, г Новотроицк, ул Фрунзе, д 22/2

3 600 000 ₽
1-комн. квартира
Россия, Оренбургская обл, Оренбург, проезд. Нижний,5/6
2 700 000 ₽
3-комн. квартира
Оренбургская обл, г Гай, ул Ленина, д 48

700 000 ₽
Земельный участок
Крым

2 000 000 ₽
1-комн. квартира

1 580 000 ₽
2-комн. квартира
Оренбургская обл, г Новотроицк, ул Марии Корецкой, д 9

2 650 000 ₽
3-комн. квартира
Оренбургская обл, г Гай, ул Декабристов, д 3

2 200 000 ₽
Земельный участок
Россия, Оренбургская обл, Оренбург, пос Весенний, квартал им 70 лет Великой победы

7 599 000 ₽
2-комн. квартира
Россия, Оренбургская обл, Оренбург, ул. Салмышская,34к6

5 250 000 ₽
Дом
Россия, Оренбургская обл, Благословенка, ул. Солнечная