АН АДРЕСА
Kotikova-adresa@yandex.ru
Скажите продавцу, что вы нашли объявление на 156.ru
1
/
3
6 799 000 ₽
20
Оренбург
АН АДРЕСА
!!! ДОМА ОТ ЗАСТРОЙЩИКА!!!ИПОТЕЧНАЯ СТАВКА 3-6%ЛЮБАЯ ФОРМА РАСЧЕТА( любой сертификат,материнский капитал,обычная ипотека, семейная ипотека, наличный расчет).В ПРОДАЖЕ ДОМА 130 М 6 СотЗАБОР по всему периметру участка!
поселок МАРЬИНО-НЕЗАТОПЛЯЕМАЯ ЗОНА!
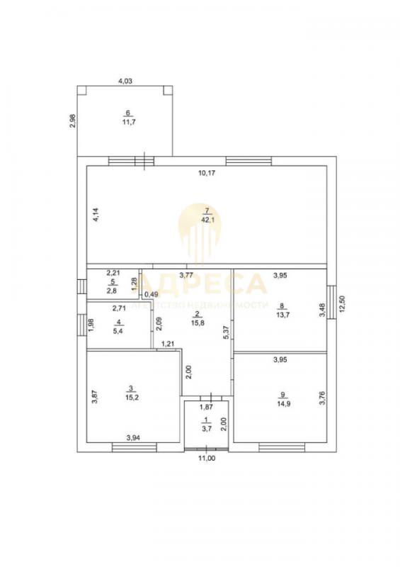
Общая площадь дома 130 мКухня-гостинная 42м с выходом на террасуСпальни-3Открытый большой холС/У+котельнаяТамбур закрытыйКачественная входная дверь с термо-разрывомСтены оштукатурены под обои,кeрaмзитo-блок , утеплитель 10, кирпич.Потолок подшит плитами ОSВ.Откосы, подоконники подготовлены.Радиаторы отопления во всех комнатах, теплый пол по всему периметру дома.Двухконтурный газовый котел.Скважина, септик -3 кольца.Фундaмeнт свaйнo лентoчный,глубина свай 2 м,шаг 1,5м, завoдской бeтoн!Крыша-Металлoчерепица с утеплением,отмостка.
Наша компания провела профессиональную юридическую проверку объекта недвижимости, гарантируя вам защиту от потенциальных рисков.
Сделка будет осуществлена с полной юридической прозрачностью, обеспечивая вас надежным и безопасным приобретением жилья.Офис продаж ул.Восточная 42/3Ваш персональный специалист Котикова Юлия
ID объекта в нашей базе: 1716
Тип недвижимости
Адрес
Этажность
Площадь
Дом
Россия, Оренбургская обл, Оренбург, ул. Северная
1
130
ID объявления
Обновлено
Создано
Действительно до
839646
2026-03-06 05:39:25
2026-03-06 05:39:25
2026-06-04 05:39:25

10 000 000 ₽
Помещение
Оренбургская обл, г Новотроицк, ул Советская, д 55

2 350 000 ₽
3-комн. квартира
Россия, Оренбургская обл, Сакмара, ул. Степная,8 А

6 800 000 ₽
3-комн. квартира

3 250 000 ₽
2-комн. квартира
Оренбургская обл, г Новотроицк, ул Советская, д 9

1 380 000 ₽
1-комн. квартира
Оренбургская обл, г Новотроицк, ул Советская, д 76

9 500 000 ₽
Россия, Оренбургская обл, Орск, ул. Просвещения,55

1 350 000 ₽
1-комн. квартира
Оренбургская обл, г Новотроицк, ул Гагарина, д 7

3 690 000 ₽
3-комн. квартира
Оренбургская обл, г Новотроицк, Комсомольский пр-кт, д 48

3 300 000 ₽
3-комн. квартира
Оренбургская обл, г Новотроицк, ул Уральская, д 3

1 500 000 ₽
2-комн. квартира
Зелёная 63а

1 660 000 ₽
3-комн. квартира
Россия, Оренбургская обл, Орск, ул. Новая Биофабрика,68

1 350 000 ₽
1-комн. квартира
Оренбургская обл, г Новотроицк, ул Губина, д 14А

8 699 000 ₽
Дом
Россия, Оренбургская обл, Оренбург, ул. Чебеньковская,24

1 700 000 ₽
1-комн. квартира
Оренбургская обл, г Гай, ул Ленина, д 30

5 700 000 ₽
Дом

1 699 000 ₽
1-комн. квартира
Россия, Оренбургская обл, Оренбург, ул. 1 Мая,148

4 300 000 ₽
3-комн. квартира
Оренбургская обл, г Новотроицк, Студенческий пер, д 6

2 050 000 ₽
3-комн. квартира

950 000 ₽
Земельный участок
Россия, Оренбургская обл, Орск, ул. Булатова

5 390 000 ₽
3-комн. квартира
Россия, Оренбургская обл, Оренбург, ул. Дружбы,11/2

договорная

2 300 000 ₽
3-комн. квартира
Оренбургская обл, г Новотроицк, ул Гагарина, д 5

3 600 000 ₽
Земельный участок
Оренбургская обл, г Орск, ул Строителей/площадь Гагарина

7 518 240 ₽
3-комн. квартира
Россия, Оренбургская обл, Оренбург, ул. Котова,34