АН АДРЕСА
a.borisova-adresa@yandex.ru
Скажите продавцу, что вы нашли объявление на 156.ru
1
/
3
9 161 690 ₽
16
Оренбург
АН АДРЕСА
Документы готовы, быстрый выход на сделку!!!!ДоступностьСемейная ипотека 6 %, сельская ипотека 3 %
Наши дома подходят под субсидированные ипотечные программы, военной ипотекой, различными жилищными сертификатами и материнским капиталом. Все это делает покупку максимально удобной и комфортной для наших клиентов, а самое главное выгодной!
Материал стен: газоблоки
Терраса или веранда: покрыты керамогранитом
Лестница: металлический каркас
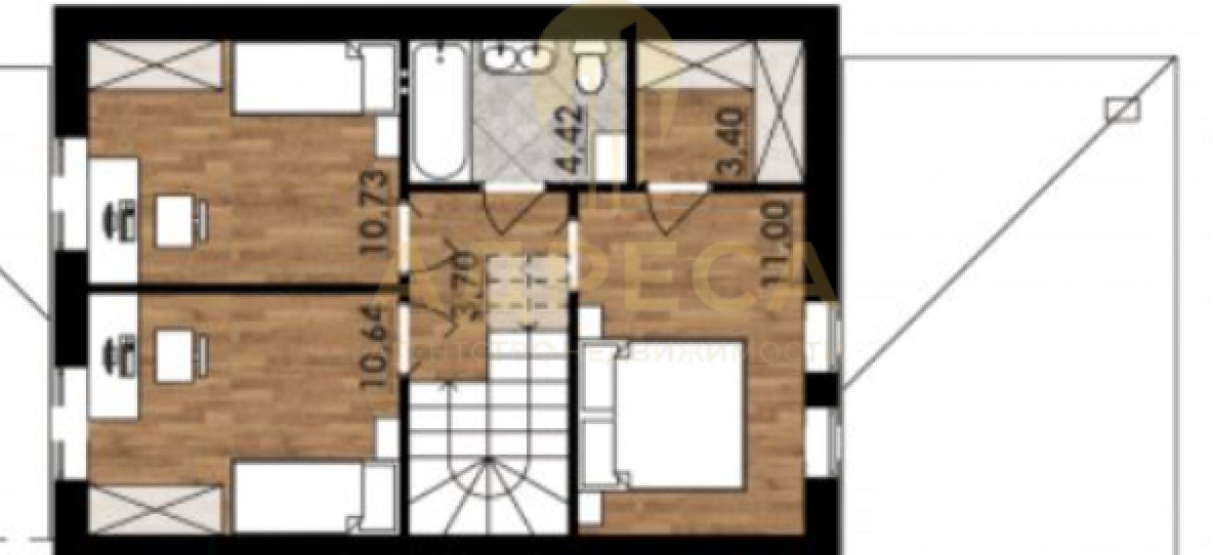
Санузел: на 1 и 2 этажах
Коммуникации: электричество, газ, отопление, канализация
Ремонт: улучшенная предчистовая отделка
Интернет и ТВ: Wi-Fi, телевидение
Парковка: парковочное место
Транспортная доступность: асфальтированная дорога, остановка общественного транспорта
Инфраструктура: магазин, аптека, детский сад, школа
Расстояние до центра города: 12 км
В подарок: территория участка огорожена забором, смонтированы въездные ворота под автомобиль и калитка с электромеханическим замком, уличное освещение, установлен почтовый ящик. Вокруг дома залита бетонная отмостка, бетонная дорожка и площадка под автомобиль, выполнено уличное освещение.
Внутренная отделка
стены оштукатурены по маякам, отшпатлеваны под обои
полы – утепленная армированная бетонная стяжка с последующим устройством наливного пола
установлена пластиковая подоконная доска, дверные и оконные откосы облагорожены
Качество
Наши дома построены из заводского газобетонного блока КОТТЕДЖ, а фасад облицован керамическим кирпичом. Установлены качественные ПВХ окна с двойным мультифункциональным стеклопакетом и надежная металлическая дверь с терморазрывом. В качестве кровельного покрытия выбрана двухслойная гибкая черепица Shinglas от компании ТЕХНОНИКОЛЬ, карниз подшит металлическими софитами, смонтирована водосточная система производства ТЕХНОНИКОЛЬ.
Инфраструктура
Поселок имеет развитую инфраструктуру, в шаговой доступности школа, детский сад, сетевые магазины, аптеки и ФАП. Поселок имеет хорошую транспортную доступность, ходит общественный транспорт. Сельская прописка и тарифы гарантируют вам экономию бюджета на обслуживание дома.
ОТ НАС: помощь в одобрении ипотеки ,полное юридическое сопровождение, помощь в продаже вашей недвижимости, работа с сертификатами.ПРОСМОТР В УДОБНОЕ ДЛЯ ВАС ВРЕМЯ, ПО ПРЕДВАРИТЕЛЬНОЙ ДОГОВОРЕННОСТИ!
ID объекта в нашей базе: 1537
Адрес
Этажность
Площадь
Россия, Оренбургская обл, Оренбург, 41 а
2
102
ID объявления
Обновлено
Создано
Действительно до
838490
2026-03-04 05:33:56
2026-03-04 05:33:56
2026-06-02 05:33:56

6 146 000 ₽
Дом
Россия, Оренбургская обл, Оренбург, Array

2 250 000 ₽
1-комн. квартира
Россия, Оренбургская обл, Орск, ул. Домбаровская,30

4 800 000 ₽
3-комн. квартира

950 000 ₽
3-комн. квартира
Россия, Оренбургская обл, Соль-Илецк, ул. Жукова,6

1 650 000 ₽
2-комн. квартира
Оренбургская обл, г Новотроицк, ул Есенкова, д 4

2 140 000 ₽
2-комн. квартира
Оренбургская обл, г Новотроицк, пр-кт Металлургов, д 28
договорная
Помещение
Оренбургская обл, Адамовский р-н, поселок Адамовка, ул Автомобилистов, д 2А

3 850 000 ₽
2-комн. квартира
Оренбургская обл, г Новотроицк, ул Советская, д 66
2 000 000 ₽
2-комн. квартира
Оренбургская обл, г Новотроицк, Комсомольский пр-кт, д 50

1 800 000 ₽
2-комн. квартира
Оренбургская обл, г Новотроицк, ул Советская, д 152

3 450 000 ₽
3-комн. квартира

4 800 000 ₽
3-комн. квартира
Россия, Оренбургская обл, Оренбург, ул. Космическая,7/1

3 200 000 ₽
3-комн. квартира
Россия, Оренбургская обл, Орск, ул. Котовского,12

4 170 000 ₽
2-комн. квартира

6 000 000 ₽
Дом
Россия, Оренбургская обл, Красный Коммунар, ул. Березка,3
1 000 000 ₽
Дом
Оренбургская обл, Кувандыкский р-н, село Сара

4 290 000 ₽
3-комн. квартира
2 800 000 ₽
2-комн. квартира
Оренбургская обл, г Гай, ул Войченко, д 20

2 080 000 ₽
2-комн. квартира
Оренбургская обл, г Новотроицк, ул Уральская, д 31

1 300 000 ₽
2-комн. квартира
Россия, Оренбургская обл, Орск, ул. Багратиона,16А

6 800 000 ₽
Дом
Россия, Оренбургская обл, Оренбург, ул. Хабаровская,63

3 250 000 ₽
3-комн. квартира
Оренбургская обл, г Новотроицк, ул Библиотечная, д 2

2 800 000 ₽
Дом

550 000 ₽
Земельный участок
Россия, Оренбургская обл, Приютово, Оренбургский муниципальный район, сельское поселение Сергиевский сельсовет, с. Приютово, ул. Успешная, 19