АН АДРЕСА
abbasova-adresa@yandex.ru
Скажите продавцу, что вы нашли объявление на 156.ru
1
/
3
12 900 000 ₽
9
Южный Урал
АН АДРЕСА
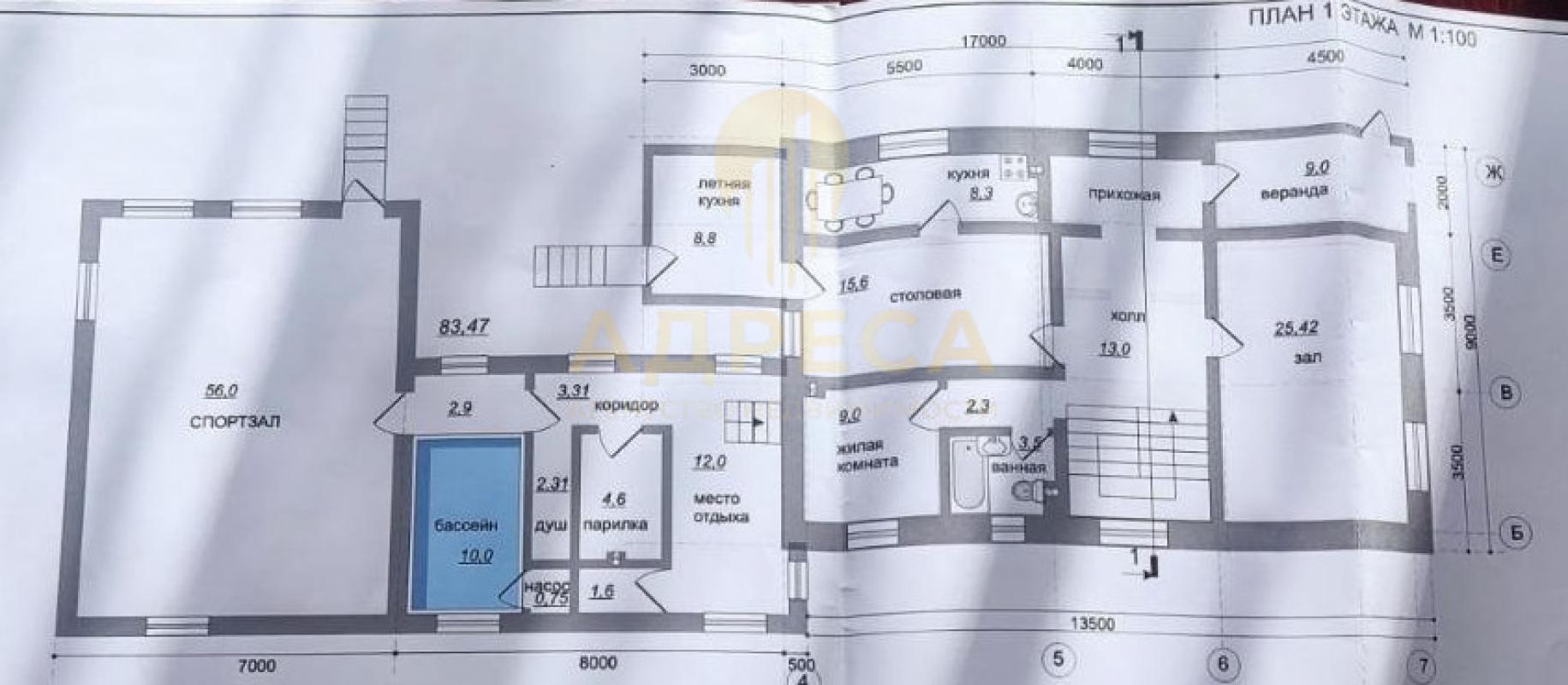
▎Ваш идеальный дом в поселке "Южный Урал"! Мечтаете о тихой и спокойной жизни за городом, но с городским комфортом? Этот просторный двухэтажный дом в поселке "Южный Урал" – идеальный вариант для вас!
▎Описание дома:
Двухэтажный дом с полуподвальным помещением:
Первый этаж:
Гостиная: Просторная и уютная, идеально подходит для теплых семейных вечеров.
Кухня-столовая: Удобное место с большим столом для праздничных обедов и душевных посиделок.
Дополнительная комната или гардеробная: Возможность адаптации под ваши нужды.
Санузел: Удобное размещение на первом и втором этажах.
Коридор: Простой и просторный, создающий атмосферу уюта.
Полуподвальное помещение: Две комнаты для развлечений, кладовая и котельная с выходом в банный комплекс – все для комфортного проживания вашей семьи.
Внутренний двор: Удобный выход из кухни, гостиной и банного комплекса для приятных прогулок и семейных посиделок в уютной беседке.
Второй этаж: Четыре комнаты:
– Детские комнаты: Созданы для счастливого детства ваших детей.
– Взрослая спальня: Место для спокойного и комфортного отдыха.
Банный комплекс: Состоит из комнаты отдыха, парной на дровах, душевой и большого бассейна.
Отдельно стоящий гараж:
На 2 автомобиля, с установленными рольставнями для защиты от непогоды.
Дополнительные преимущества:
Теплый пол по всему периметру первого этажа.
Готовность к проживанию: Дом укомплектован всей необходимой мебелью, техникой и четырьмя сплит-системами.
• Автономная канализация переливного типа: Три септика, позволяющие забыть о проблемах с отводом сточных вод.
Земельный участок: 12.5 соток, предоставляющий простор для реализации ваших идей, включая уютный сад с различными насаждениями.
Удобное расположение: Поселок "Южный Урал" находится всего в 10 км от центра города, обеспечивая легкий доступ ко всей городской инфраструктуре.
Этот шикарный дом — ваш шанс на жизнь в гармонии с природой, не отказываясь от удобств городской жизни. Не упустите возможность стать его владельцем!
ID объекта в нашей базе: 1811
Тип недвижимости
Адрес
Этажность
Площадь
Дом
Россия, Оренбургская обл, Южный Урал, ул. Пушкина, 9
2
235
ID объявления
Обновлено
Создано
Действительно до
836435
2026-02-28 05:45:59
2026-02-28 05:45:59
2026-05-29 05:45:59

3 649 000 ₽
3-комн. квартира
Россия, Оренбургская обл, Оренбург, ул. Восточная,84

2 600 000 ₽
2-комн. квартира
Оренбургская обл, г Новотроицк, ул Строителей, д 6

1 650 000 ₽
1-комн. квартира
Оренбургская обл, г Новотроицк, ул Гагарина, д 11

1 700 000 ₽
1-комн. квартира
Оренбургская обл, г Новотроицк, пр-кт Металлургов, д 20

8 500 000 ₽
Дом
Россия, Оренбургская обл, Орск, ул. Нагорная,17

25 000 000 ₽
Дом
Россия, Оренбургская обл, Орск, проезд. Тарский,1001

5 450 000 ₽
Дом
Россия, Оренбургская обл, Оренбург, с.Пруды ул.Центральная 25А

2 300 000 ₽
2-комн. квартира
Оренбургская обл, г Новотроицк, ул Советская, д 136

2 650 000 ₽
Дом
Оренбургская обл, г Новотроицк, ул Садовая

5 400 000 ₽
Дом
Россия, Оренбургская обл, Оренбург, СНТ Карачи, ул. Центральная линия, д. 43

3 690 000 ₽
3-комн. квартира
Оренбургская обл, г Новотроицк, Комсомольский пр-кт, д 48

7 649 000 ₽
2-комн. квартира
Россия, Оренбургская обл, Оренбург, ул. Карпова,3/1

1 700 000 ₽
1-комн. квартира
Оренбургская обл, г Гай, ул Ленина, д 30

договорная
350 ₽
Сад

4 200 000 ₽
2-комн. квартира
Оренбургская обл, г Новотроицк, ул Советская, д 66

150 000 ₽
Земельный участок
Оренбургская одласть.Кувандыкский р-н.п.Сара

550 000 ₽
Комната
Россия, Оренбургская обл, Орск, ул. Светлая,4

1 550 000 ₽
Дом
Россия, Оренбургская обл, Оренбург, 197

1 000 000 ₽
Дом
Оренбургская обл, г Новотроицк, поселок Аккермановка, ул Садовая

3 100 000 ₽
Дом
Ул Железнодорожная

договорная

620 000 ₽
Дача
Россия, Оренбургская обл, Орск, ул. Крайняя,42

1 590 000 ₽
2-комн. квартира
Оренбургская обл, г Новотроицк, ул Железнодорожная, д 87