АН АДРЕСА
Kotikova-adresa@yandex.ru
Скажите продавцу, что вы нашли объявление на 156.ru
1
/
3
6 799 000 ₽
21
Оренбург
АН АДРЕСА
!!! ДОМА ОТ ЗАСТРОЙЩИКА!!!ИПОТЕЧНАЯ СТАВКА 3-6%ЛЮБАЯ ФОРМА РАСЧЕТА( любой сертификат,материнский капитал,обычная ипотека, семейная ипотека, наличный расчет).В ПРОДАЖЕ ДОМА 130 М 6 СотЗАБОР по всему периметру участка!
поселок МАРЬИНО-НЕЗАТОПЛЯЕМАЯ ЗОНА!
Общая площадь дома 130 мКухня-гостинная 42м с выходом на террасуСпальни-3Открытый большой холС/У+котельнаяТамбур закрытыйКачественная входная дверь с термо-разрывомСтены оштукатурены под обои,кeрaмзитo-блок , утеплитель 10, кирпич.Потолок подшит плитами ОSВ.Откосы, подоконники подготовлены.Радиаторы отопления во всех комнатах, теплый пол по всему периметру дома.Двухконтурный газовый котел.Скважина, септик -3 кольца.Фундaмeнт свaйнo лентoчный,глубина свай 2 м,шаг 1,5м, завoдской бeтoн!Крыша-Металлoчерепица с утеплением,отмостка.
Наша компания провела профессиональную юридическую проверку объекта недвижимости, гарантируя вам защиту от потенциальных рисков.
Сделка будет осуществлена с полной юридической прозрачностью, обеспечивая вас надежным и безопасным приобретением жилья.Офис продаж ул.Восточная 42/3Ваш персональный специалист Котикова Юлия
ID объекта в нашей базе: 1716
Тип недвижимости
Адрес
Этажность
Площадь
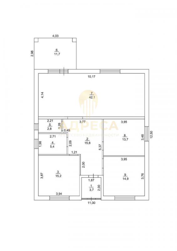
Дом
Россия, Оренбургская обл, Оренбург, ул. Северная
1
130
ID объявления
Обновлено
Создано
Действительно до
836396
2026-02-28 05:39:36
2026-02-28 05:39:36
2026-05-29 05:39:36

2 100 000 ₽
Дом
Оренбургская обл, Гайский р-н, село Камейкино, ул Степная

2 800 000 ₽
2-комн. квартира

договорная

2 250 000 ₽
1-комн. квартира
Россия, Оренбургская обл, Орск, ул. Олимпийская,28

3 400 000 ₽
3-комн. квартира
Россия, Оренбургская обл, Орск, ул. Братская,56 А

1 550 000 ₽
1-комн. квартира
Оренбургская обл, г Новотроицк, ул Пушкина, д 64А

3 000 000 ₽
2-комн. квартира
Россия, Оренбургская обл, Орск, пер. Заводской,5

4 500 000 ₽
Дом
Россия, Оренбургская обл, Орск, Орск переулок тихий д 8

1 350 000 ₽
1-комн. квартира
Оренбургская обл, г Новотроицк, ул Зеленая, д 59

2 100 000 ₽
1-комн. квартира
Оренбургская обл, г Орск, ул Школьная, д 18

1 300 000 ₽
2-комн. квартира
Россия, Оренбургская обл, Орск, ул. Багратиона,16А

3 150 000 ₽
3-комн. квартира
Россия, Оренбургская обл, Оренбург, ул. Восстания,77

3 600 000 ₽
3-комн. квартира
Россия, Оренбургская обл, Орск, мкр. 6-й,13

2 550 000 ₽
1-комн. квартира
Россия, Оренбургская обл, Орск, пр-кт. Ленина,60

1 400 000 ₽
2-комн. квартира
Оренбургская обл, г Новотроицк, ул Советская, д 65Б

2 350 000 ₽
2-комн. квартира
Оренбургская обл, г Новотроицк, ул Уральская, д 25, кв 45

2 100 000 ₽
1-комн. квартира

7 200 000 ₽
Дом
Россия, Оренбургская обл, Благословенка, ул. Солнечная,88

850 000 ₽
Земельный участок
Россия, Оренбургская обл, Оренбург, Оренбургская область, г. Оренбург, С/Т Калина Красная, 380

1 150 000 ₽
1-комн. квартира
Оренбургская обл, г Гай, ул Войченко, д 2

9 000 000 ₽
Дом

4 500 000 ₽
3-комн. квартира
Оренбургская обл, г Новотроицк, ул Марии Корецкой, д 15А

7 900 000 ₽
Дом
Россия, Оренбургская обл, Ивановка, ул. Дальнереченская, 47

1 200 000 ₽
1-комн. квартира
Оренбургская обл, г Новотроицк, пр-кт Металлургов, д 38