АН АДРЕСА
strel.921-adresa56@yandex.ru
Скажите продавцу, что вы нашли объявление на 156.ru
1
/
3
7 000 050 ₽
7
Оренбург
АН АДРЕСА
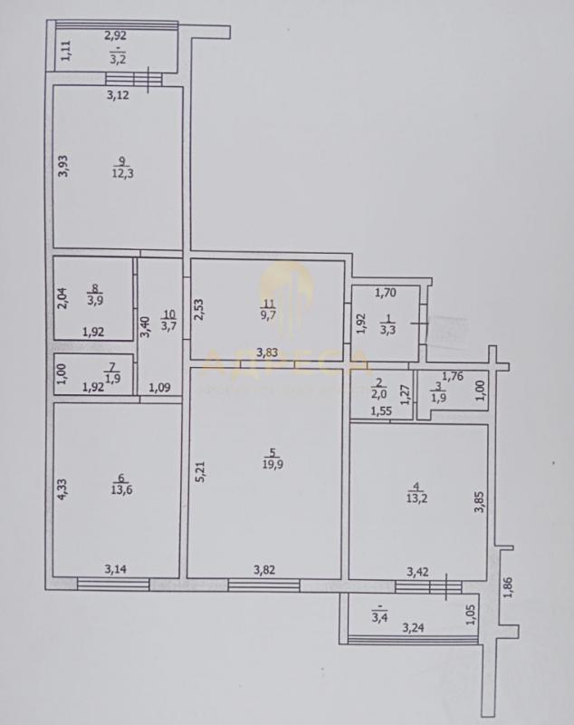
Продаётся просторная трёхкомнатная квартира на комфортном 9 этаже.Район с развитой инфраструктурой: магазины, рынок "Петровский", школа №8, №32, Пушкинский лицей, детский сад №4, №140. В пешей доступности культурный комплекс «Национальная деревня» и парк им. Ю.А. Гагарина.Идеальное предложение для семьи, которая ценит комфортное проживание.Ключевые параметры:· Общая площадь: 85,4 м².· Этаж: 9/16.· Комнаты: изолированные.Описание и преимущества:· Современный ремонт: Полы залиты и выровнены, стены идеально ровные, полностью заменена вся электрическая проводка.· Отделка: Ванная, санузел отделаны современным кафелем.· Комфорт и технологии: В ванной установлен «тёплый пол», в гостиной мощная сплит-система. Высокие потолки 2,9 метра.· Функциональность: Удобная кухня 14 м² с встроенной мебелью "Мария". Есть гардеробная комната со стиральной машинойИнфраструктура и двор:· Во дворе — зона для барбекю, современная детская и спортивная площадки, хоккейная коробка.· В шаговой доступности всё необходимое: аптека, почта, продуктовые магазины.· Круглосуточное видеонаблюдение (Уфанет) в подъездах и лифтах для вашей безопасности.Транспортная развязка:· Остановка общественного транспорта в 3х минутах ходьбы. Автобусы № 7, 20, 79Н, 53Н позволят добраться в любую точку города без проблем.· Рядом расположены улицы: Алтайская, Карагандинская, Пр. Гагарина, Лесозащитная.✅Если у Вас не продан объект недвижимости, но Вы хотите приобрести наш, мы готовы помочь Вам реализовать эту мечту! Наша компания всегда готова предложить Вам лучшие варианты решения, которые соответствуют Вашим потребностям!Звоните и записывайтесь на просмотр!!!
ID объекта в нашей базе: 1726
Тип недвижимости
Адрес
Этажность
Этаж
Площадь
3-комн. квартира
Россия, Оренбургская обл, Оренбург, ул. Мира,3/1
16
9
85.4
ID объявления
Обновлено
Создано
Действительно до
835304
2026-02-26 05:41:40
2026-02-26 05:41:40
2026-05-27 05:41:40

2 200 000 ₽
3-комн. квартира
Оренбургская обл, г Новотроицк, ул Винокурова, д 12

3 650 000 ₽
3-комн. квартира

8 250 000 ₽
Дом
Россия, Оренбургская обл, Оренбург, СНТ Авиато- 3, ул. Десантная 43

5 500 000 ₽
1-комн. квартира
Россия, Оренбургская обл, Пригородный, ул. Студенческая,2г
8 500 000 ₽
Земельный участок
Россия, Оренбургская обл, Оренбург, ул. Весенняя,3

1 350 000 ₽
1-комн. квартира
Оренбургская обл, г Новотроицк, ул Зеленая, д 59

4 900 000 ₽
3-комн. квартира
Оренбургская обл, г Новотроицк, ул Лысова, д 10

4 000 000 ₽
Дом
Оренбургская обл, г Новотроицк, ул Мира
850 000 ₽
2-комн. квартира

4 490 000 ₽
Дом
Россия, Оренбургская обл, Сакмара, ул. Пролетарская,121

2 630 000 ₽
2-комн. квартира
Оренбургская обл, г Новотроицк, ул Уральская, д 32

1 500 000 ₽
2-комн. квартира
Зелёная 63а

5 500 000 ₽
Помещение

700 000 ₽
Дача
Россия, Оренбургская обл, Орск, ул. Ялтинская

договорная

4 500 000 ₽
1-комн. квартира
Россия, Оренбургская обл, Оренбург, ул. Уральская,2/8

2 500 000 ₽
2-комн. квартира
Оренбургская обл, г Гай, ул Спортивная, д 5

4 500 000 ₽
Дом
Россия, Оренбургская обл, Орск, Орск переулок тихий д 8

3 560 000 ₽
1-комн. квартира
Россия, Оренбургская обл, Оренбург, ул. Беляевская,15

550 000 ₽
Земельный участок
Россия, Оренбургская обл, Подгородняя Покровка, Array

1 700 000 ₽
3-комн. квартира
Оренбургская обл, г Новотроицк, ул Орская, д 23

2 200 000 ₽
1-комн. квартира

3 850 000 ₽
3-комн. квартира
Оренбургская обл, г Новотроицк, ул Марии Корецкой, д 33А

2 600 000 ₽
2-комн. квартира