АН АДРЕСА
a.borisova-adresa@yandex.ru
Скажите продавцу, что вы нашли объявление на 156.ru
1
/
3
9 161 690 ₽
17
Оренбург
АН АДРЕСА
Документы готовы, быстрый выход на сделку!!!!ДоступностьСемейная ипотека 6 %, сельская ипотека 3 %
Наши дома подходят под субсидированные ипотечные программы, военной ипотекой, различными жилищными сертификатами и материнским капиталом. Все это делает покупку максимально удобной и комфортной для наших клиентов, а самое главное выгодной!
Материал стен: газоблоки
Терраса или веранда: покрыты керамогранитом
Лестница: металлический каркас
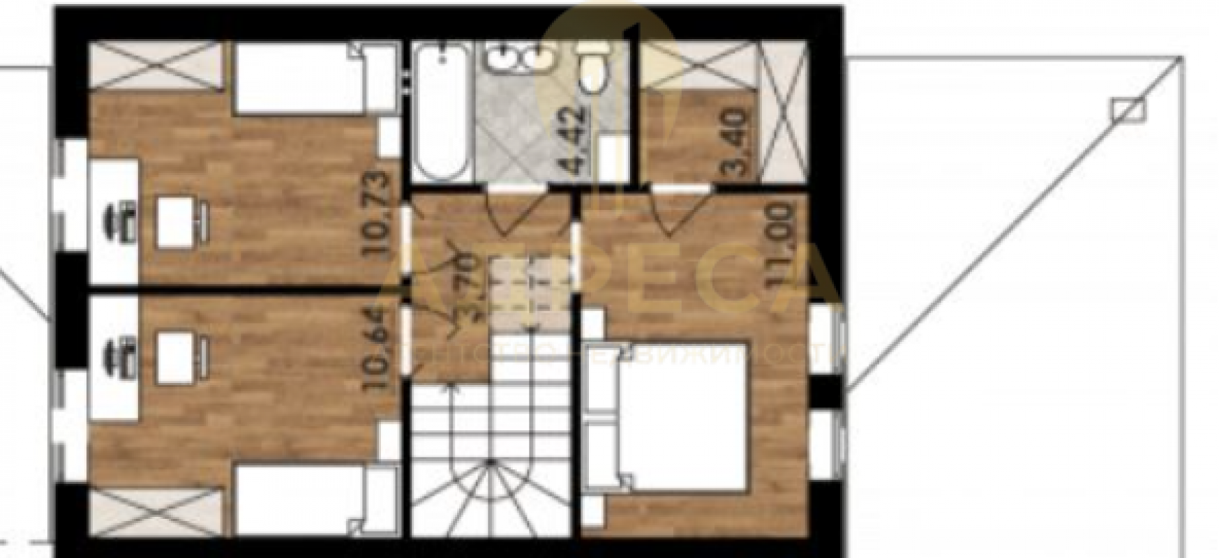
Санузел: на 1 и 2 этажах
Коммуникации: электричество, газ, отопление, канализация
Ремонт: улучшенная предчистовая отделка
Интернет и ТВ: Wi-Fi, телевидение
Парковка: парковочное место
Транспортная доступность: асфальтированная дорога, остановка общественного транспорта
Инфраструктура: магазин, аптека, детский сад, школа
Расстояние до центра города: 12 км
В подарок: территория участка огорожена забором, смонтированы въездные ворота под автомобиль и калитка с электромеханическим замком, уличное освещение, установлен почтовый ящик. Вокруг дома залита бетонная отмостка, бетонная дорожка и площадка под автомобиль, выполнено уличное освещение.
Внутренная отделка
стены оштукатурены по маякам, отшпатлеваны под обои
полы – утепленная армированная бетонная стяжка с последующим устройством наливного пола
установлена пластиковая подоконная доска, дверные и оконные откосы облагорожены
Качество
Наши дома построены из заводского газобетонного блока КОТТЕДЖ, а фасад облицован керамическим кирпичом. Установлены качественные ПВХ окна с двойным мультифункциональным стеклопакетом и надежная металлическая дверь с терморазрывом. В качестве кровельного покрытия выбрана двухслойная гибкая черепица Shinglas от компании ТЕХНОНИКОЛЬ, карниз подшит металлическими софитами, смонтирована водосточная система производства ТЕХНОНИКОЛЬ.
Инфраструктура
Поселок имеет развитую инфраструктуру, в шаговой доступности школа, детский сад, сетевые магазины, аптеки и ФАП. Поселок имеет хорошую транспортную доступность, ходит общественный транспорт. Сельская прописка и тарифы гарантируют вам экономию бюджета на обслуживание дома.
ОТ НАС: помощь в одобрении ипотеки ,полное юридическое сопровождение, помощь в продаже вашей недвижимости, работа с сертификатами.ПРОСМОТР В УДОБНОЕ ДЛЯ ВАС ВРЕМЯ, ПО ПРЕДВАРИТЕЛЬНОЙ ДОГОВОРЕННОСТИ!
ID объекта в нашей базе: 1537
Адрес
Этажность
Площадь
Россия, Оренбургская обл, Оренбург, 41 а
2
102
ID объявления
Обновлено
Создано
Действительно до
834140
2026-02-24 05:33:47
2026-02-24 05:33:47
2026-05-25 05:33:47

1 850 000 ₽
Дача
Оренбургская обл, г Новотроицк, тер. СНТ Утес № 31

450 000 ₽
Комната
Оренбургская обл, г Новотроицк, ул Железнодорожная, д 4
75 000 ₽
Гараж
Оренбургская обл, г Новотроицк, ул Зеленая, д 22

2 200 000 ₽
2-комн. квартира
462363, Оренбургская обл, г Новотроицк, ул. Фрунзе

1 570 000 ₽
2-комн. квартира
Оренбургская обл, г Новотроицк, ул Мичурина, д 18А

2 190 000 ₽
1-комн. квартира
Россия, Оренбургская обл, Орск, Ялтинская 95

2 400 000 ₽
2-комн. квартира
Россия, Оренбургская обл, Орск, пер. 1-й Домбаровский,29

1 850 000 ₽
2-комн. квартира
Оренбургская обл, г Новотроицк, ул Зеленая, д 53

1 650 000 ₽
2-комн. квартира
Оренбургская обл, г Новотроицк, ул Зеленая, д 37

50 000 ₽
Сад

4 490 000 ₽
Дом
Россия, Оренбургская обл, Сакмара, ул. Пролетарская,121

3 900 000 ₽
Дом
Оренбургская обл, г Гай, ул Елшанская

600 000 ₽
Земельный участок
Россия, Оренбургская обл, Орск, ул. Каспийская ул. Тихорецкая участок 61
615 ₽
Комната
Оренбургская обл, г Новотроицк, ул Пушкина, д 59

3 500 000 ₽
3-комн. квартира
Россия, Оренбургская обл, Орск, ул. Добровольского,33

5 000 000 ₽
3-комн. квартира

1 400 000 ₽
1-комн. квартира

120 000 ₽
Сад

950 000 ₽
1-комн. квартира
Оренбургская обл, г Новотроицк, ул Губина, д 6
1 750 000 ₽
3-комн. квартира
Оренбургская обл, г Новотроицк, ул Советская

2 100 000 ₽
2-комн. квартира
Оренбургская обл, г Гай, Парковый пер, д 1

7 200 000 ₽
Дом
Россия, Оренбургская обл, Благословенка, ул. Солнечная,88

1 699 000 ₽
1-комн. квартира
Россия, Оренбургская обл, Оренбург, ул. 1 Мая,148

5 500 000 ₽
2-комн. квартира
Оренбургская обл, г Новотроицк, ул Советская, д 85