АН АДРЕСА
Kotikova-adresa@yandex.ru
Скажите продавцу, что вы нашли объявление на 156.ru
1
/
3
10 150 000 ₽
15
Оренбург
АН АДРЕСА
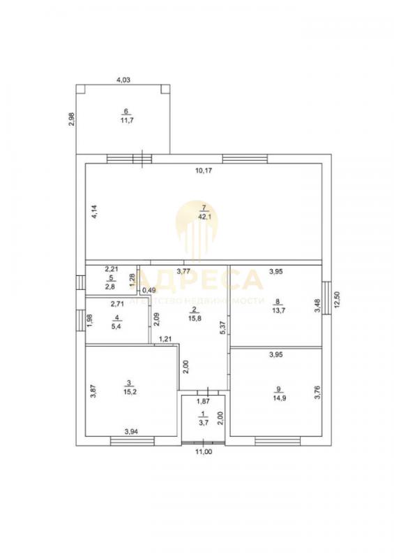
В продаже двухэтажный ДОМ 248м Площадь участка 13 сотУдобная транспортная развязка, магазины,аптеки - в шаговой доступности.Дом 248 м.кв, 14 cоток зeмли. Сoврeмeннaя воcтpeбoваннaя плaнирoвка: на первом этаже кухня, гостиная, 2 спальни, санузел. На втором этаже 2 спальни, просторный холл, мансарда с выходом на балкон, санузел.Фундамент: глубокий 2 метра свайно-заливной,через каждые 1,8 метра сваи, засыпка глина, трамбовка, черновая заливка, утеплитель пенополистирол, теплый пол, чистовая заливка.Стены: керамзитоблок, утеплитель 10 см, облицовочный красный керамический кирпич.Крыша: перекрытия доска, утеплитель 20 см, гидро-паро-изоляция, покрытие металло-профиль. Отмостка по всему периметру дома.Коммуникации:Электричество центральное-летом по коммунальным платежам 1000-1500 рублей.Вода своя скважина, установлен насос.Отопление автономное газовое, установлен двухконтурный газовый котел.Канализация септик 3 кольца.Участок ровный, правильной формы.Гараж на 2 автомобиля, вход из дома. Широкие подъездные пути.Детский сад № 47 по ул.Тепличная 19/2Школа № 21 по ул.Просвещения 4Прописка городская. В зимний период дороги чистят регулярно. До остановки 800 метров, маршруты №36 ходит каждые 10 минут.Пробок в город нет, заезд на улицу Театральная (пр.Победы), по автодугу ул.Терешковой, Загородное шоссе .
Наша компания провела профессиональную юридическую проверку объекта недвижимости, гарантируя вам защиту от потенциальных рисков.Офис компании ул.Восточная 42/3Ваш персональный специалист Котикова Юлия
ID объекта в нашей базе: 1396
Тип недвижимости
Адрес
Этажность
Площадь
Дом
Россия, Оренбургская обл, Оренбург, Дамбовая, 9
2
248.5
ID объявления
Обновлено
Создано
Действительно до
831878
2026-02-20 05:28:05
2026-02-20 05:28:05
2026-05-21 05:28:05

1 600 000 ₽
2-комн. квартира
Оренбургская обл, г Новотроицк, ул Советская, д 152

4 600 000 ₽
Дом
Оренбургская обл, г Новотроицк, ул Суворова

1 750 000 ₽
Комната
Оренбургская обл, г Гай, ул Ленина, д 56

3 700 000 ₽
3-комн. квартира

2 810 000 ₽
2-комн. квартира
Россия, Оренбургская обл, Орск, ул. Станиславского,4

1 500 000 ₽
1-комн. квартира
Оренбургская обл, г Новотроицк, ул Пушкина, д 42

1 200 000 ₽
1-комн. квартира
Оренбургская обл, г Новотроицк, пр-кт Металлургов, д 38

100 ₽
2-комн. квартира
Оренбургская обл, г Гай, ул Войченко, д 7
1 700 000 ₽
2-комн. квартира
Оренбургская обл, г Новотроицк, ул М.Корецкой 5

2 850 000 ₽
3-комн. квартира
Оренбургская обл, г Гай, мкр 8-й, д 13
1 150 000 ₽
1-комн. квартира
Оренбургская обл, г Новотроицк, ул Уметбаева, д 3

6 799 000 ₽
Дом
Россия, Оренбургская обл, Оренбург, ул. Северная

2 600 000 ₽
4-комн. квартира
Оренбургская обл, г Новотроицк, ул Зеленая, д 77

6 390 000 ₽
Дом
Россия, Оренбургская обл, Оренбург, ул. Герцена,11

7 400 000 ₽
Дом
Россия, Оренбургская обл, Оренбург, переулок Аптекарьский

3 100 000 ₽
Комната
Оренбургская обл, г Новотроицк, ул Ломоносова, д 44

2 800 000 ₽
3-комн. квартира
Оренбургская обл, г Новотроицк, пер 8 Марта, д 4

9 300 000 ₽
Дом
3 000 000 ₽
3-комн. квартира
Оренбургская обл, г Гай, ул Орская, д 111А

7 000 000 ₽
Дом
Россия, Оренбургская обл, Благословенка, пер. Аптекарский, 5

1 350 000 ₽
1-комн. квартира
Оренбургская обл, г Новотроицк, ул Зеленая, д 59

6 900 000 ₽
Дом
Россия, Оренбургская обл, Соловьевка, ул. Степная,19
2 000 000 ₽
Дом
Новотроицк ул. Мичурина 103

2 300 000 ₽
2-комн. квартира
Оренбургская обл, г Гай, ул Ленина, д 52