АН АДРЕСА
strel.921-adresa56@yandex.ru
Скажите продавцу, что вы нашли объявление на 156.ru
1
/
3
7 200 000 ₽
11
Оренбург
АН АДРЕСА
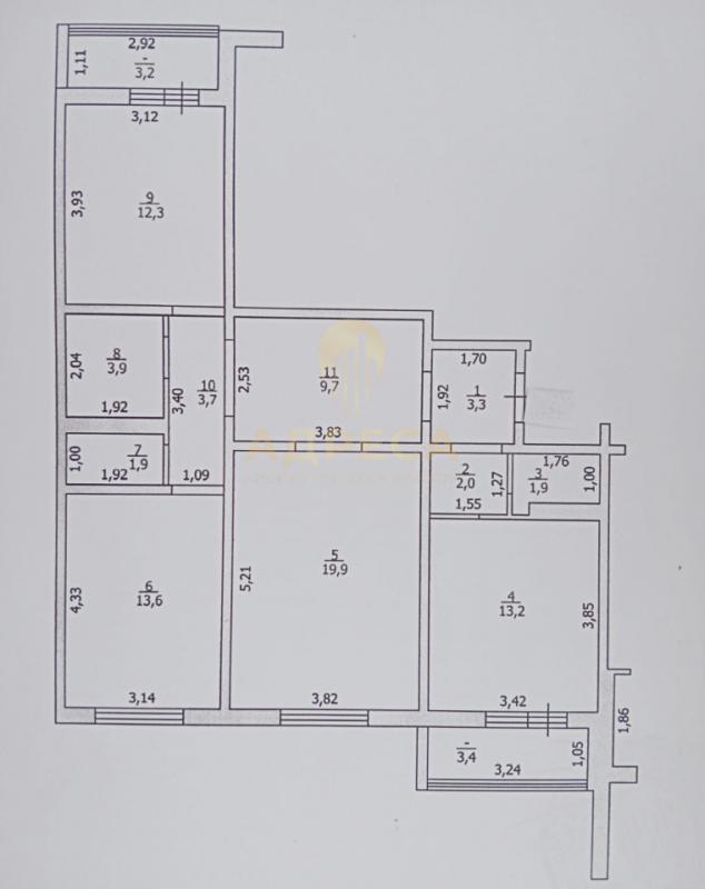
Продаётся просторная трёхкомнатная квартира на комфортном 9 этаже.Район с развитой инфраструктурой: магазины, рынок "Петровский", школа №8, №32, Пушкинский лицей, детский сад №4, №140. В пешей доступности культурный комплекс «Национальная деревня» и парк им. Ю.А. Гагарина.Идеальное предложение для семьи, которая ценит комфортное проживание.Ключевые параметры:· Общая площадь: 85,4 м².· Этаж: 9/16.· Комнаты: изолированные.Описание и преимущества:· Современный ремонт: Полы залиты и выровнены, стены идеально ровные, полностью заменена вся электрическая проводка.· Отделка: Ванная, санузел отделаны современным кафелем.· Комфорт и технологии: В ванной установлен «тёплый пол», в гостиной мощная сплит-система. Высокие потолки 2,9 метра.· Функциональность: Удобная кухня 14 м² с встроенной мебелью "Мария". Есть гардеробная комната со стиральной машинойИнфраструктура и двор:· Во дворе — зона для барбекю, современная детская и спортивная площадки, хоккейная коробка.· В шаговой доступности всё необходимое: аптека, почта, продуктовые магазины.· Круглосуточное видеонаблюдение (Уфанет) в подъездах и лифтах для вашей безопасности.Транспортная развязка:· Остановка общественного транспорта в 3х минутах ходьбы. Автобусы № 7, 20, 79Н, 53Н позволят добраться в любую точку города без проблем.· Рядом расположены улицы: Алтайская, Карагандинская, Пр. Гагарина, Лесозащитная.✅Если у Вас не продан объект недвижимости, но Вы хотите приобрести наш, мы готовы помочь Вам реализовать эту мечту! Наша компания всегда готова предложить Вам лучшие варианты решения, которые соответствуют Вашим потребностям!Звоните и записывайтесь на просмотр!!!
ID объекта в нашей базе: 1726
Тип недвижимости
Адрес
Этажность
Этаж
Площадь
3-комн. квартира
Россия, Оренбургская обл, Оренбург, ул. Мира,3/1
16
9
85.4
ID объявления
Обновлено
Создано
Действительно до
831403
2026-02-19 05:41:52
2026-02-19 05:41:52
2026-05-20 05:41:52

2 190 000 ₽
1-комн. квартира
Россия, Оренбургская обл, Орск, Ялтинская 95

350 000 ₽
Комната
Россия, Оренбургская обл, Орск, ул. Виноградная,3
4 620 240 ₽
2-комн. квартира
, , ,
100 000 ₽
Комната
Оренбургская обл, г Гай, ул Декабристов

6 500 000 ₽
3-комн. квартира
Оренбургская обл, г Новотроицк, ул Советская, д 97

3 120 000 ₽
2-комн. квартира
Оренбургская обл, г Новотроицк, ул Зеленая, д 5

1 300 000 ₽
2-комн. квартира
Оренбургская обл, г Новотроицк, ул Ломоносова, д 46

1 100 000 ₽
1-комн. квартира

350 000 ₽
Земельный участок
Оренбургская обл, Гайский р-н, село Банное, ул Центральная, д 1

2 000 000 ₽
2-комн. квартира
Оренбургская обл, г Новотроицк, ул Советская, д 55А

2 800 000 ₽
2-комн. квартира
Оренбургская обл, г Новотроицк, ул Гагарина, д 6

4 300 000 ₽
2-комн. квартира
Россия, Оренбургская обл, Сорочинск, пр-кт. Парковый,29/1
590 000 ₽
Сад

4 300 000 ₽
Дом
Россия, Оренбургская обл, Оренбург, г. Оренбург, с. Пруды, ул. Береговая 25, к.2

6 146 000 ₽
Дом
Россия, Оренбургская обл, Оренбург, Подгородняя Покровка, ул. Яблоневая, д 300

3 480 000 ₽
Комната
Оренбургская обл, г Новотроицк, ул Уметбаева, д 5А
1 ₽
Земельный участок
Оренбургская обл, г Новотроицк

2 600 000 ₽
3-комн. квартира
Оренбургская обл, г Новотроицк, ул Железнодорожная, д 4
2 000 000 ₽
2-комн. квартира
Оренбургская обл, г Новотроицк, Комсомольский пр-кт, д 26
11 500 000 ₽
Помещение
Оренбургская обл, г Ясный, ул Ленина, д 6Б

1 050 000 ₽
1-комн. квартира
Оренбургская обл, г Новотроицк, ул Ситкина, д 13
950 ₽
1-комн. квартира
Декабристов

1 130 000 ₽
Комната
Россия, Оренбургская обл, Оренбург, ул. Плеханова,17

3 850 000 ₽
4-комн. квартира
Оренбургская обл, г Новотроицк, ул Советская, д 57