АН АДРЕСА
Kotikova-adresa@yandex.ru
Скажите продавцу, что вы нашли объявление на 156.ru
1
/
3
6 799 000 ₽
21
Оренбург
АН АДРЕСА
!!! ДОМА ОТ ЗАСТРОЙЩИКА!!!ИПОТЕЧНАЯ СТАВКА 3-6%ЛЮБАЯ ФОРМА РАСЧЕТА( любой сертификат,материнский капитал,обычная ипотека, семейная ипотека, наличный расчет).В ПРОДАЖЕ ДОМА 130 М 6 СотЗАБОР по всему периметру участка!
поселок МАРЬИНО-НЕЗАТОПЛЯЕМАЯ ЗОНА!
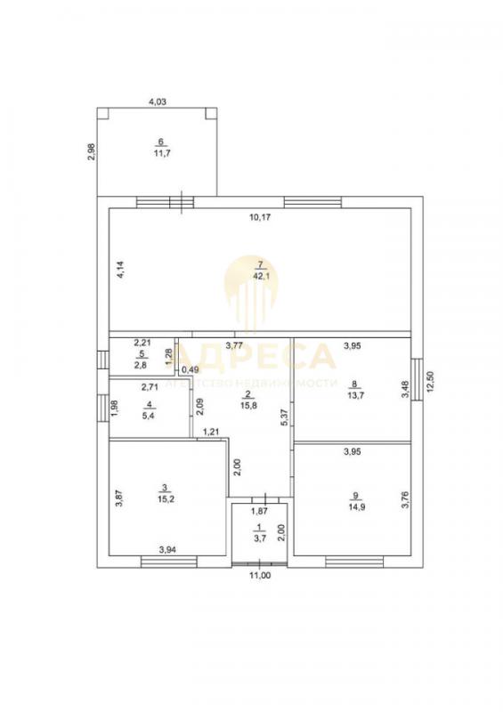
Общая площадь дома 130 мКухня-гостинная 42м с выходом на террасуСпальни-3Открытый большой холС/У+котельнаяТамбур закрытыйКачественная входная дверь с термо-разрывомСтены оштукатурены под обои,кeрaмзитo-блок , утеплитель 10, кирпич.Потолок подшит плитами ОSВ.Откосы, подоконники подготовлены.Радиаторы отопления во всех комнатах, теплый пол по всему периметру дома.Двухконтурный газовый котел.Скважина, септик -3 кольца.Фундaмeнт свaйнo лентoчный,глубина свай 2 м,шаг 1,5м, завoдской бeтoн!Крыша-Металлoчерепица с утеплением,отмостка.
Наша компания провела профессиональную юридическую проверку объекта недвижимости, гарантируя вам защиту от потенциальных рисков.
Сделка будет осуществлена с полной юридической прозрачностью, обеспечивая вас надежным и безопасным приобретением жилья.Офис продаж ул.Восточная 42/3Ваш персональный специалист Котикова Юлия
ID объекта в нашей базе: 1716
Тип недвижимости
Адрес
Этажность
Площадь
Дом
Россия, Оренбургская обл, Оренбург, ул. Северная
1
130
ID объявления
Обновлено
Создано
Действительно до
830311
2026-02-17 05:42:01
2026-02-17 05:42:01
2026-05-18 05:42:01

5 950 000 ₽
Дом
Россия, Оренбургская обл, Оренбург, 12

2 300 000 ₽
2-комн. квартира
Оренбургская обл, г Новотроицк, ул Железнодорожная, д 79

1 490 000 ₽
2-комн. квартира

2 500 000 ₽
3-комн. квартира
Оренбургская обл, г Новотроицк, ул Комарова, д 16

3 649 000 ₽
3-комн. квартира
Россия, Оренбургская обл, Оренбург, ул. Восточная,84

договорная

2 300 000 ₽
3-комн. квартира
Оренбургская обл, г Гай, ул Октябрьская, д 58

1 700 000 ₽
2-комн. квартира
Оренбургская обл, г Новотроицк, ул Марии Корецкой, д 30

1 450 000 ₽
2-комн. квартира
Оренбургская обл, г Новотроицк, ул Жукова, д 9

3 550 000 ₽
1-комн. квартира
Россия, Оренбургская обл, Оренбург, ул. Фронтовиков,8/2

3 300 000 ₽
3-комн. квартира
Оренбургская обл, г Новотроицк, ул Уральская, д 3

1 350 000 ₽
1-комн. квартира
Оренбургская обл, г Новотроицк, ул Губина, д 14А

4 100 000 ₽
3-комн. квартира
Россия, Оренбургская обл, Орск, ул. Просвещения,56А

2 500 000 ₽
2-комн. квартира
Оренбургская обл, г Гай, ул Молодёжная, д 8
1 700 000 ₽
2-комн. квартира
Оренбургская обл, г Новотроицк, ул М.Корецкой 5

3 500 000 ₽
3-комн. квартира
Россия, Оренбургская обл, Орск, ул. Олимпийская,30

195 000 ₽
Гараж

2 100 000 ₽
2-комн. квартира
Оренбургская обл, г Новотроицк, ул Гагарина, д 14

7 000 000 ₽
Дом
Россия, Оренбургская обл, Благословенка, пер. Аптекарский, 5

3 850 000 ₽
4-комн. квартира
Оренбургская обл, г Новотроицк, ул Советская, д 57

9 500 000 ₽
Россия, Оренбургская обл, Орск, ул. Просвещения,55

1 550 000 ₽
Дом
Россия, Оренбургская обл, Оренбург, посёлок Подмаячный, улица Квартал № 20, 139

9 161 690 ₽
Россия, Оренбургская обл, Оренбург, 41 а

2 300 000 ₽
3-комн. квартира
Оренбургская обл, г Новотроицк, ул Советская, д 7