АН АДРЕСА
Lilia.k-adresa@yandex.ru
Скажите продавцу, что вы нашли объявление на 156.ru
1
/
3
3 850 000 ₽
13
Оренбург
АН АДРЕСА
ПРЕДЛАГАЕМ ВАШЕМУ ВНИМАНИЮ ПРОСТОРНУЮ И УЮТНУЮ ДВУХКОМНАТНУЮ КВАРТИРУ!
КВАРТИРА С НОВЫМ ОТЛИЧНЫМ РЕМОНТОМ, ЧТО ПОЗВОЛЯЕТ ЗАЕХАТЬ и ЖИТЬ!
О КВАРТИРЕ:
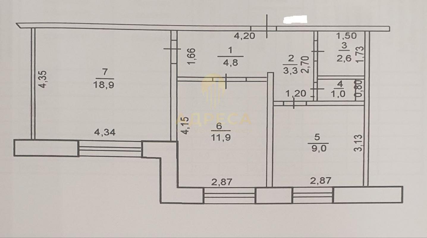
Общая площадь квартиры – 51.5 кв.м Очень хорошая планировка – квадратный просторный зал площадью 18.9 кв.м,, светлая спальня 11,9 кв.м., и уютная кухня 9 кв.м. В квартире выполнен качественный ремонт. Во всех комнатах пластиковые окна. С/У раздельный в кафеле. Качественные деревянные двери. Полы с подогревом! Из мебели остается вместительный угловой кухонный гарнитур. Сплит система. Коммуникации все центральные. Квартира очень теплая. Соседи очень хорошие и дружные.
ИНФРАСТРУКТУРА:
—д/с 106.
—СОШ №11
—Магазины Пятерочка, Магнит, Красное/белое, аптеки и др.;
Остановка общественного транспорта в шаговой доступности: маршруты: 78Н (62), 23.Рассмотрим все формы расчета: ипотека, сертификаты, наличный и безналичный расчет.
- Поможем купить в ипотеку! Узнавайте по телефону подробные условия.
Юридическое сопровождение сделки.
Если вам понравился этот вариант, но у вас ещё не продана своя недвижимость, предложите нам, возможно у нас прямо сейчас есть на неё покупатель.
ID объекта в нашей базе: 1394
Тип недвижимости
Адрес
Этажность
Этаж
Площадь
2-комн. квартира
Россия, Оренбургская обл, Оренбург, ул. Авиационная,20
5
1
51.5
ID объявления
Обновлено
Создано
Действительно до
829669
2026-02-16 05:28:25
2026-02-16 05:28:25
2026-05-17 05:28:25
1 150 000 ₽
1-комн. квартира
Оренбургская обл, г Новотроицк, ул Уметбаева, д 3

1 930 000 ₽
2-комн. квартира

1 700 000 ₽
2-комн. квартира
Оренбургская обл, г Новотроицк, ул Зеленая, д 55а

6 000 000 ₽
Земельный участок

1 800 000 ₽
1-комн. квартира
Россия, Оренбургская обл, Орск, пер. Нежинский,13

1 600 000 ₽
2-комн. квартира
Оренбургская обл, г Гай, ул Коммунистическая, д 14
1 ₽
Дом

17 000 000 ₽
Земельный участок
Россия, Оренбургская обл, Орск, ул. Ферганская

350 000 ₽
Земельный участок
Оренбургская обл, Гайский р-н, село Банное, ул Центральная, д 1

2 200 000 ₽
3-комн. квартира
Оренбургская обл, г Новотроицк, ул Железнодорожная, д 4

7 000 000 ₽
Дом
Россия, Оренбургская обл, Соловьевка, ул. Степная

2 200 000 ₽
1-комн. квартира

2 200 000 ₽
Дом
Россия, Оренбургская обл, Дворики, ул. Степная,16

9 000 000 ₽
Дом
Россия, Оренбургская обл, Ивановка, Оренбургский р-он, Ивановский сельсовет, ул. Рублева, д. 44
1 300 000 ₽
1-комн. квартира

2 100 000 ₽
Земельный участок
Россия, Оренбургская обл, Орск, ул. Осиновская,10

1 620 000 ₽
2-комн. квартира
Оренбургская обл, г Новотроицк, ул Свистунова, д 17

3 400 000 ₽
2-комн. квартира
Россия, Оренбургская обл, Орск, Оренбургская обл. г. Орск, ул. Стасова 4а кв.42

2 700 000 ₽
Дом
Россия, Оренбургская обл, Ударник, Орская д 5

3 950 000 ₽
3-комн. квартира

2 800 000 ₽
3-комн. квартира
Россия, Оренбургская обл, Орск, ул. Ю.Фучика,11

2 990 000 ₽
Земельный участок
Россия, Оренбургская обл, имени 9 Января, ул. Журавлиная,34

5 500 000 ₽
3-комн. квартира
Оренбургская обл, г Новотроицк, Студенческий пер, д 6

1 650 000 ₽
1-комн. квартира
Оренбургская обл, г Новотроицк, ул Гагарина, д 11